Ambleside Close, Wistaston, CW2

£220,000

5 reasons we love this property

  1. Spacious kitchen/diner with integrated oven, gas hob, appliance space, and handy under-stairs storage cupboard.
  2. Bright conservatory accessed via French doors, creating a warm living space with further doors opening onto the garden.
  3. Three well-proportioned bedrooms, including a generous main bedroom with built-in wardrobes for added storage.
  4. Enclosed rear garden with lawn, patio seating area, and a shed with electricity ideal for storage or a workshop.
  5. Large driveway providing convenient off-road parking for multiple vehicles.

About this property

This attractive three-bedroom semi-detached home in Wistaston offers a well-balanced combination of space, comfort, and practicality, making it ideal for modern family living.

Read more

This attractive three-bedroom semi-detached home in Wistaston offers a well-balanced combination of space, comfort, and practicality, making it ideal for modern family living.

To the front, the property benefits from a generous driveway with space for multiple cars, providing convenient off-road parking. You are welcomed inside via a porch that leads into a spacious and inviting living room, perfect for relaxing evenings or entertaining guests, with a pleasant bay window allowing in plenty of natural light.

To the rear of the property, the kitchen/diner serves as the heart of the home. It is thoughtfully laid out and fitted with an integrated oven and four-ring gas hob, along with ample space for a washing machine, dryer, and fridge/freezer. There is also access to a useful storage cupboard beneath the stairs, ideal for keeping household items neatly tucked away.

From the kitchen/diner, French doors open into a wonderful conservatory, creating a fantastic bright and warm additional living space. This area is perfect for use as a second sitting room, dining area, or even a home office, thanks to the abundance of natural light. The conservatory further enhances the indoor-outdoor flow, with its own set of French doors leading directly out into the garden.

Upstairs, the property comprises three bedrooms. The main bedroom is generously proportioned and benefits from built-in wardrobes, offering excellent storage without compromising on space. The second bedroom provides a comfortable double or guest room, while the third bedroom is ideal as a child’s room, nursery, or home office. The family bathroom is fitted with a bath and overhead dual showerheads, combining practicality with a touch of luxury.

Externally, the rear garden is designed for both relaxation and entertaining, featuring a lawned area alongside a patio space ideal for outdoor seating and dining. A useful shed with electricity provides excellent additional storage or potential for use as a workshop or hobby space.

Location:

The charming Cheshire village of Wistaston offers a range of handy and convenient amenities while the larger market town of Nantwich is just a short drive away and boasts a plethora of independent businesses including cafes, restaurants, pubs, bars and boutiques, as well as larger supermarkets and highly accredited primary and secondary schools. Those needing to commute will have little concern thanks to the conveniently accessible A500 and M6 road links while Crewe railway station offers direct links to larger cities all across the country.

Council Tax Band: B

Tenure: Freehold

Additional Information

Useful Links
Broadband and mobile phone coverage checker - https://checker.ofcom.org.uk/

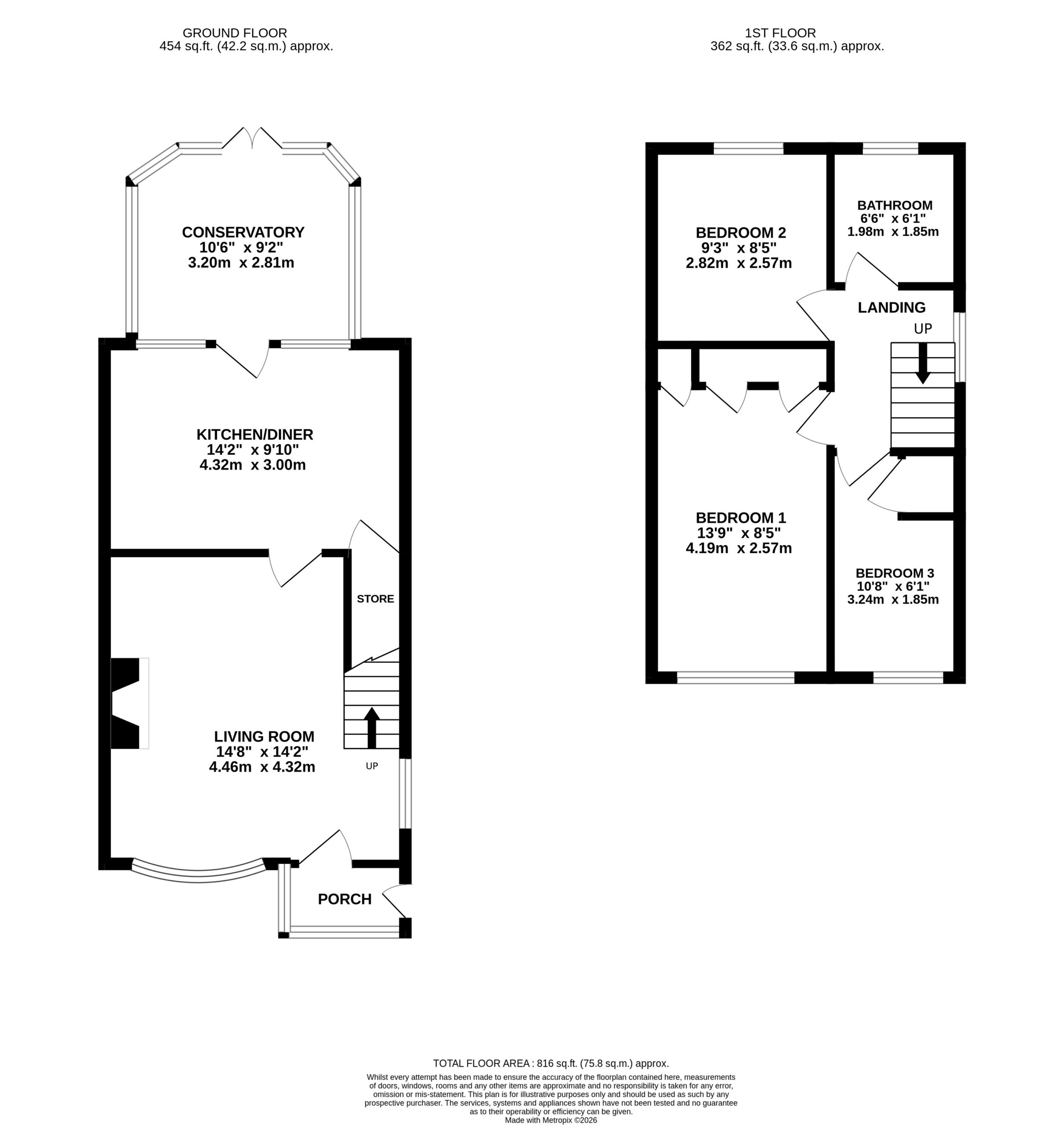
Floor Plans
Please note that floor plans are provided to give an overall impression of the accommodation offered by the property. They are not to be relied upon as a true, scaled and precise representation. Whilst we make every attempt to ensure the accuracy of the floor plan, measurements of doors, windows, rooms and any other item are approximate. This plan is for illustrative purposes only and should only be used as such by any prospective purchaser.

Agent's Notes
Although we try to ensure accuracy, these details are set out for guidance purposes only and do not form part of a contract or offer. Please note that some photographs have been taken with a wide-angle lens. A final inspection prior to exchange of contracts is recommended. No person in the employment of James Du Pavey Ltd has any authority to make any representation or warranty in relation to this property.

ID Checks
Please note we charge £50 inc VAT for ID Checks and verification for each person financially involved with the transaction when purchasing a property through us.

Referrals
We can recommend excellent local solicitors, mortgage advice and surveyors as required. At no time are you obliged to use any of our services. We recommend Gent Law Ltd for conveyancing, they are a connected company to James Du Pavey Ltd but their advice remains completely independent. We can also recommend other solicitors who pay us a referral fee of £240 inc VAT. For mortgage advice we work with RPUK Ltd, a superb financial advice firm with discounted fees for our clients. RPUK Ltd pay James Du Pavey 25% of their fees. RPUK Ltd is a trading style of Retirement Planning (UK) Ltd, Authorised and Regulated by the Financial Conduct Authority. Your Home is at risk if you do not keep up repayments on a mortgage or other loans secured on it. We receive £120 inc VAT for each survey referral.

James Latham

James Latham BA (Hons)

Nantwich Branch

01270 445678