Ashbourne Road, Cheadle, ST10

£265,000

5 reasons we love this property

  1. A newly updated kitchen sleek white glossy cabinets for all your storage needs topped with a black work top. Featuring under cabinet lighting and room for a breakfast table.
  2. Two spacious double bedrooms.
  3. Two paved driveways and two gardens, a mixture of patio and lush green lawn bordered with mature shrubs.
  4. A conservatory to relax and enjoy your morning brew with views of the garden and beyond.
  5. Situated in the beating heart of Cheadle where you will find modern convenience such as shops, supermarkets and eateries all at your fingertips.

About this property

Set sail on your new adventure and drop hook on Ashbourne Road. This beautiful bungalow is situated in the beating heart of Cheadle, where you will find modern convenience such as shops, supermarkets

Read more

Set sail on your new adventure and drop hook on Ashbourne Road. This beautiful bungalow is situated in the beating heart of Cheadle, where you will find modern convenience such as shops, supermarkets and eateries all at your fingertips. This property boasts tall ceilings throughout, featuring two double bedrooms, light and bright thanks to the large windows. A family bathroom serves the home. The lounge is spacious featuring a fire surround for that cosy touch, a chandelier for some modern glam and bright double doors that open on to the garden beyond. At the heart of the bungalow, you have the kitchen. Recently updated with sleek white glossy cabinets for all your storage needs topped with a black work top. Under cabinet lighting and room for a breakfast table, the perfect space to cook up a happy storm. For further relaxation you have the conservatory that basks in natural light, sip your favourite tipple and take in the gorgeous scenery. In addition, this bungalow boasts a versatile boarded out loft, perfect for that extra space. For parking this bungalow boasts not one, but two driveways, perfect for multiple vehicles. If that wasn’t luxurious enough this property also has two gardens. The perfect combination of paving and lush green manicured lawn bordered with walls and mature shrubs. Book your viewing today and let the adventure begin.

Council Tax Band: C

Tenure: Freehold

Additional Information

Useful Links
Broadband and mobile phone coverage checker - https://checker.ofcom.org.uk/

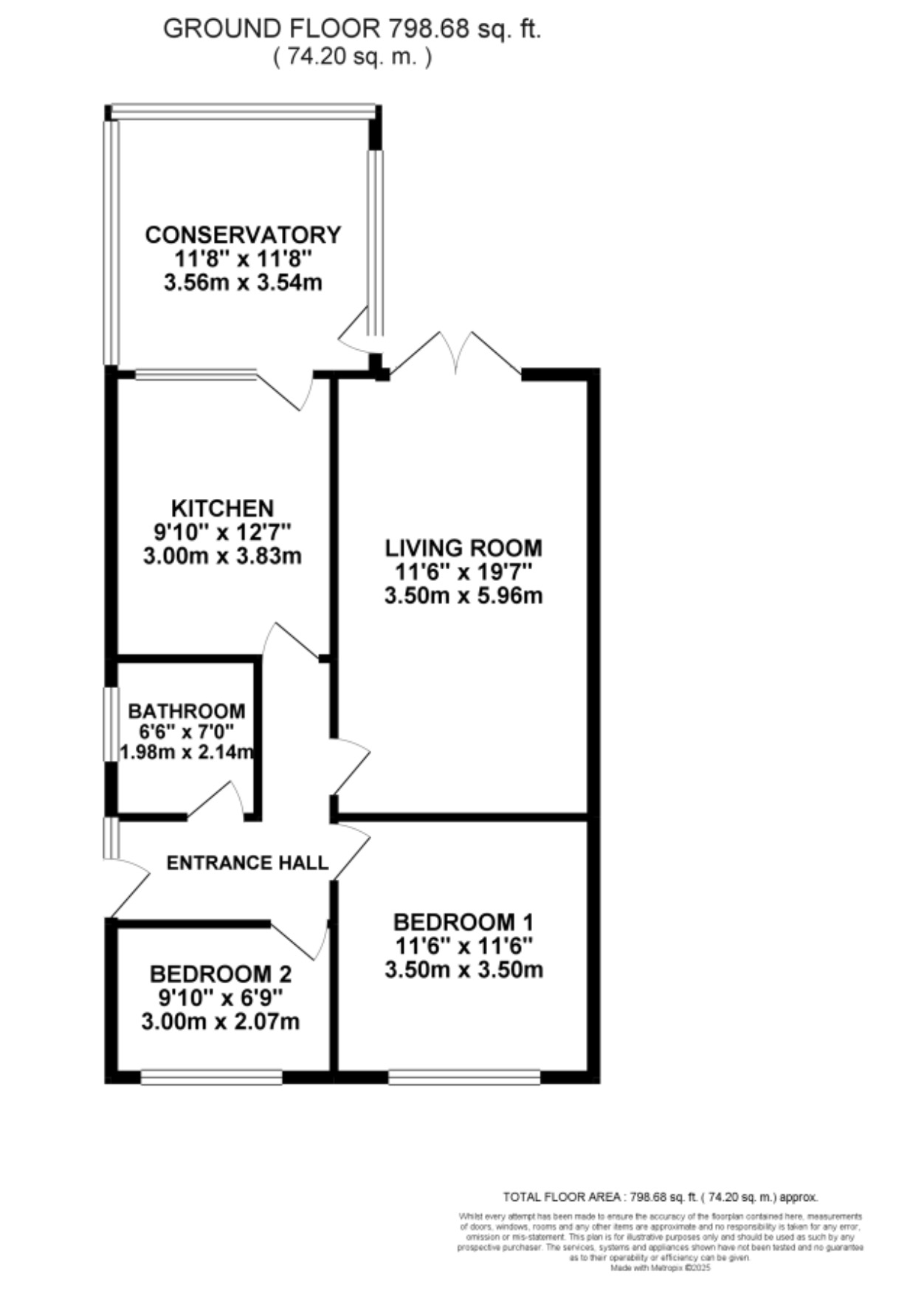
Floor Plans
Please note that floor plans are provided to give an overall impression of the accommodation offered by the property. They are not to be relied upon as a true, scaled and precise representation. Whilst we make every attempt to ensure the accuracy of the floor plan, measurements of doors, windows, rooms and any other item are approximate. This plan is for illustrative purposes only and should only be used as such by any prospective purchaser.

Agent's Notes
Although we try to ensure accuracy, these details are set out for guidance purposes only and do not form part of a contract or offer. Please note that some photographs have been taken with a wide-angle lens. A final inspection prior to exchange of contracts is recommended. No person in the employment of James Du Pavey Ltd has any authority to make any representation or warranty in relation to this property.

ID Checks
Please note we charge £50 inc VAT for ID Checks and verification for each person financially involved with the transaction when purchasing a property through us.

Referrals
We can recommend excellent local solicitors, mortgage advice and surveyors as required. At no time are you obliged to use any of our services. We recommend Gent Law Ltd for conveyancing, they are a connected company to James Du Pavey Ltd but their advice remains completely independent. We can also recommend other solicitors who pay us a referral fee of £240 inc VAT. For mortgage advice we work with RPUK Ltd, a superb financial advice firm with discounted fees for our clients. RPUK Ltd pay James Du Pavey 25% of their fees. RPUK Ltd is a trading style of Retirement Planning (UK) Ltd, Authorised and Regulated by the Financial Conduct Authority. Your Home is at risk if you do not keep up repayments on a mortgage or other loans secured on it. We receive £120 inc VAT for each survey referral.

Jasmine Horsley

Jasmine Horsley BA (Hons)

Cheadle Branch

01538 711400