Audlem Road, Nantwich, CW5

£290,000

5 reasons we love this property

  1. Bright living room with bay window and cosy fireplace.
  2. Flexible dining room currently used as a lounge, with built-in storage.
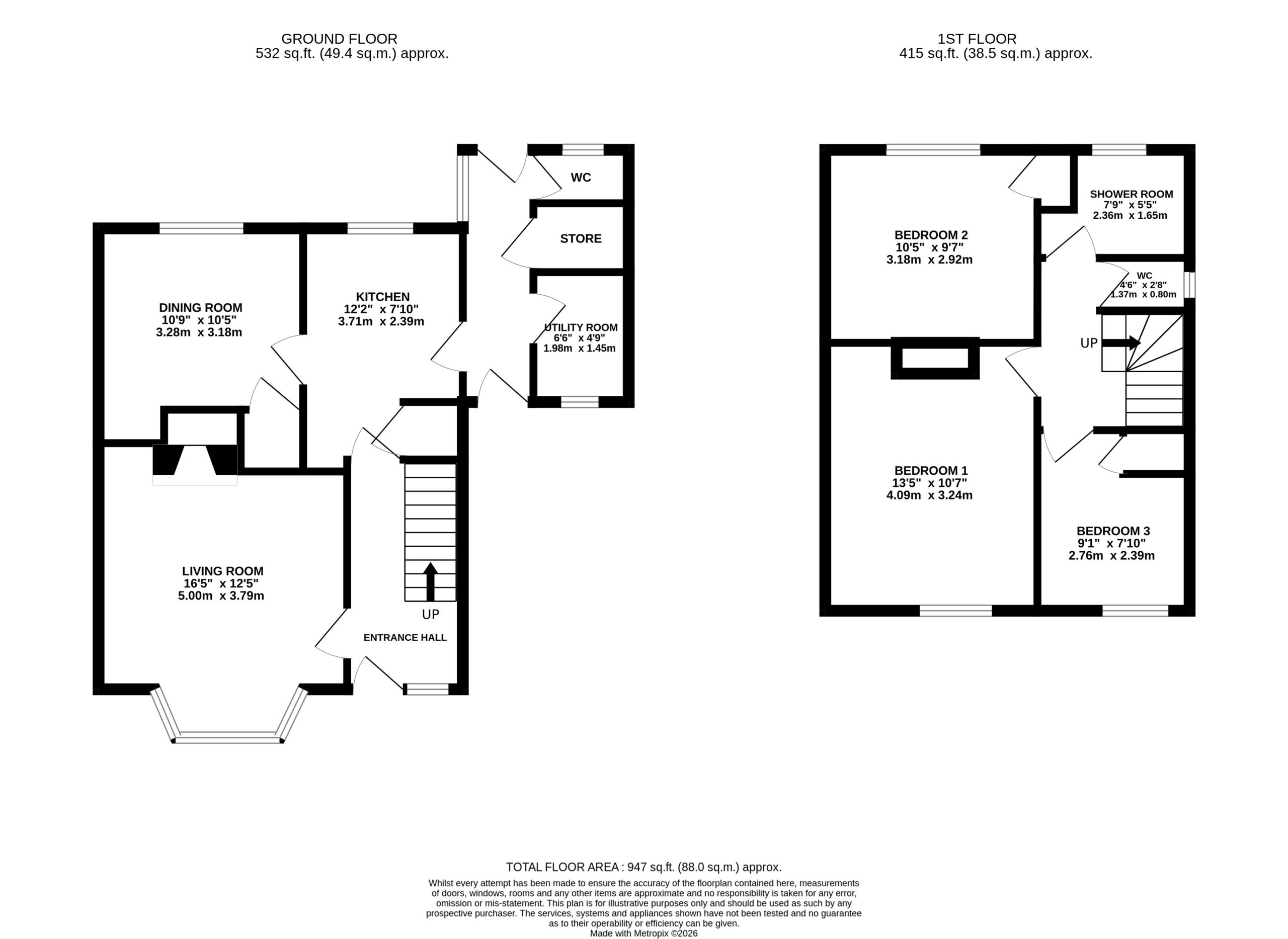
  3. Practical layout including kitchen with ample cupboards, utility room, storage areas, and WC.
  4. Generous garden with patio and lawn, plus front garden and driveway parking for multiple vehicles.
  5. Historic Nantwich location, offering riverside walks, a vibrant town centre, excellent schools, and strong transport links including rail services and easy access to the M6.

About this property

Situated in Nantwich, this well-proportioned three-bedroom semi-detached home offers flexible living space, plenty of natural light, and excellent outdoor areas.

Read more

Situated in Nantwich, this well-proportioned three-bedroom semi-detached home offers flexible living space, plenty of natural light, and excellent outdoor areas, making it ideal for families, first-time buyers, or those looking to put their own stamp on a property.

The living room is spacious and welcoming, featuring a bay window that allows plenty of natural light to fill the room, along with a cosy fireplace that creates a warm and comfortable atmosphere. Adjacent to this, the dining room is currently used as an additional lounge but could easily accommodate a dining table, offering versatility to suit a range of lifestyles. A useful storage cupboard is also located within the dining room.

The kitchen provides space for a fridge, oven, and washing machine, along with a plentiful amount of cupboard storage, making it a practical and functional area for everyday use. Connecting the main living areas is a hallway that leads to three additional rooms: a utility room, a storage cupboard, and a conveniently positioned downstairs WC.

Upstairs, bedroom one is a large double room with ample space for additional furniture and the potential to install built-in wardrobes if desired. Bedroom two is another comfortable double, while bedroom three is a single bedroom that benefits from a built-in cupboard, ideal for storage. This floor also features a WC and a separate shower room, adding to the home’s practicality.

Externally, the garden is a generous size, offering a patio area that is perfect for outdoor dining or socialising, alongside a substantial lawn providing plenty of space for relaxation or play. To the front of the property, there is a small lawn and a driveway with space for multiple vehicles.

Location:

Nantwich is a historic market town located in the county of Cheshire, England. It lies on the banks of the River Weaver and is approximately 5 miles south-west of the larger town of Crewe. Nantwich has a rich history that dates back to Roman times, and it is known for its well-preserved medieval architecture and charming streets.

One of the most prominent features of Nantwich is its black and white timber-framed buildings, which give the town a distinctive character. The town centre is filled with historic structures, including the Nantwich Town Walls, St. Mary's Church, and the Queen's Aid House. The Nantwich Museum, located in a restored Georgian townhouse, offers visitors an opportunity to explore the town's history and heritage.

Nantwich is also famous for its annual food and drink festival, which takes place in September and attracts thousands of visitors. The festival showcases a variety of local and regional produce, including Cheshire cheese, pies, and real ale. Additionally, the town holds a traditional market on Tuesdays and Saturdays, where locals and tourists can browse a range of goods, from fresh produce to antiques.

The River Weaver, which runs through Nantwich, provides opportunities for leisurely walks along the waterfront and offers a picturesque setting for boat trips. The town is surrounded by beautiful Cheshire countryside, with plenty of scenic trails and paths for outdoor enthusiasts to explore.

Nantwich has a thriving community and offers a range of amenities, including shops, restaurants, cafes, and pubs. It also has several primary and secondary schools, making it an attractive place to live for families.

Nantwich is conveniently placed for commuter travel, with excellent road links including access to the M6 motorway network via the A500. Rail travel is offered via Nantwich train station which has direct services to Manchester and Shrewsbury, and Crewe Railway Station which is within 8 miles and provides direct services to a host of major cities including London, Manchester, Liverpool, Birmingham, and Glasgow.

In summary, Nantwich is a charming market town in Cheshire, England, known for its rich history, medieval architecture, annual food festival, and picturesque surroundings. It's a place where visitors can immerse themselves in the past while enjoying the amenities of a vibrant community.

Council Tax Band: C

Tenure: Freehold

Additional Information

Useful Links
Broadband and mobile phone coverage checker - https://checker.ofcom.org.uk/

Floor Plans
Please note that floor plans are provided to give an overall impression of the accommodation offered by the property. They are not to be relied upon as a true, scaled and precise representation. Whilst we make every attempt to ensure the accuracy of the floor plan, measurements of doors, windows, rooms and any other item are approximate. This plan is for illustrative purposes only and should only be used as such by any prospective purchaser.

Agent's Notes
Although we try to ensure accuracy, these details are set out for guidance purposes only and do not form part of a contract or offer. Please note that some photographs have been taken with a wide-angle lens. A final inspection prior to exchange of contracts is recommended. No person in the employment of James Du Pavey Ltd has any authority to make any representation or warranty in relation to this property.

ID Checks
Please note we charge £50 inc VAT for ID Checks and verification for each person financially involved with the transaction when purchasing a property through us.

Referrals
We can recommend excellent local solicitors, mortgage advice and surveyors as required. At no time are you obliged to use any of our services. We recommend Gent Law Ltd for conveyancing, they are a connected company to James Du Pavey Ltd but their advice remains completely independent. We can also recommend other solicitors who pay us a referral fee of £240 inc VAT. For mortgage advice we work with RPUK Ltd, a superb financial advice firm with discounted fees for our clients. RPUK Ltd pay James Du Pavey 25% of their fees. RPUK Ltd is a trading style of Retirement Planning (UK) Ltd, Authorised and Regulated by the Financial Conduct Authority. Your Home is at risk if you do not keep up repayments on a mortgage or other loans secured on it. We receive £120 inc VAT for each survey referral.

James Latham

James Latham BA (Hons)

Nantwich Branch

01270 445678