Cedar Close, Cheadle, ST10

£200,000 Guide Price

5 reasons we love this property

  1. Charming two-bedroom bungalow offering magical single-level living.
  2. Peaceful cul-de-sac setting, tucked away like a hidden retreat in the market town of Cheadle.
  3. Cosy living room and sunlit conservatory, perfect for watching the garden change with the seasons.
  4. Stylish kitchen and elegant shower room, beautifully finished with sparkling surfaces and marble-effect tiles.
  5. Enchanted low-maintenance garden, with patio seating, artificial lawn, driveway parking, and a garage.

About this property

“A dream is a wish your heart makes.”

Read more

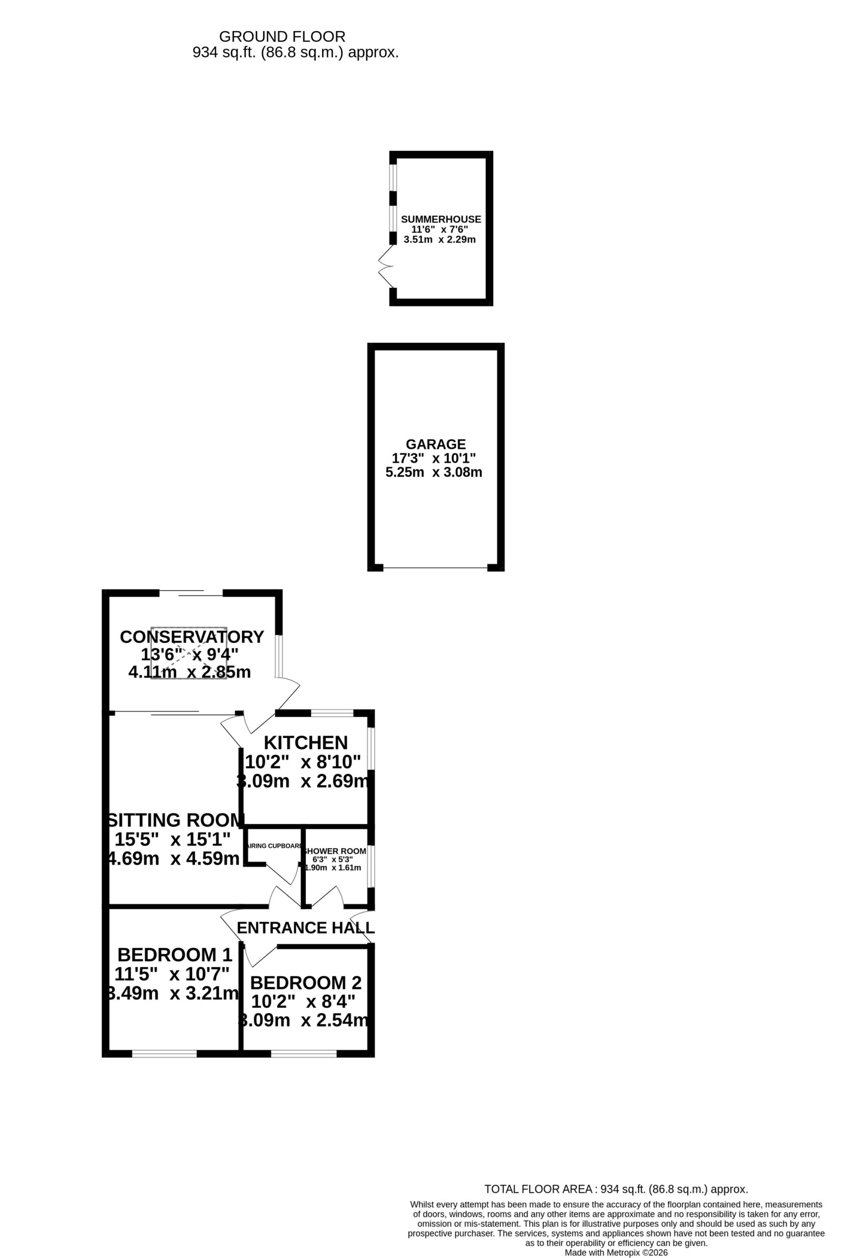
“A dream is a wish your heart makes. If you’re dreaming of the next chapter of your life and a bungalow ready to move straight into, this charming home could be just what you’re looking for. Tucked away on a quiet cul-de-sac in the market town of Cheadle, this delightful bungalow offers comfortable living all on one convenient level. An attractive gravel frontage creates a smart and welcoming first impression. Step down the driveway and through the front door and you are greeted by a bright entrance hall that sets the tone for the rest of the home. To your right, the modern shower room awaits, beautifully finished with light, white marble-effect tiles that create a fresh and airy feel. To the left, the property offers two well-proportioned double bedrooms, perfect spaces to relax and unwind. Continue along the hallway and you are welcomed into a spacious yet cosy living room, with views through to the conservatory and the peaceful garden beyond. It’s the ideal spot to settle down with a cup of tea and enjoy the comforts of home. At the heart of the property is the stylish kitchen, featuring glossy white cabinets paired with sleek, sparkling grey worktops, offering both practicality and plenty of storage while you cook up a storm. Completing the interior is the lovely conservatory, a light-filled space where you can sit back with a good book and watch the seasons gently change in the garden. Outside, the multi-layered landscaped garden provides a beautiful yet low-maintenance retreat, thanks to the combination of patio areas and artificial lawn. It’s a wonderful place to enjoy the best of the British weather and relax outdoors or indoors thanks to the summer house. Parking is well catered for with a tarmac driveway and a garage, offering space for an additional vehicle or useful extra storage. All of this is set within the welcoming market town of Cheadle, known for its strong community spirit. The town offers a great range of everyday amenities including supermarkets, shops, and eateries, while excellent bus links make getting around simple and convenient. Think this bungalow ticks your wish list? Book your viewing

Council Tax Band: B

Tenure: Freehold

Additional Information

Useful Links
Broadband and mobile phone coverage checker - https://checker.ofcom.org.uk/

Floor Plans
Please note that floor plans are provided to give an overall impression of the accommodation offered by the property. They are not to be relied upon as a true, scaled and precise representation. Whilst we make every attempt to ensure the accuracy of the floor plan, measurements of doors, windows, rooms and any other item are approximate. This plan is for illustrative purposes only and should only be used as such by any prospective purchaser.

Agent's Notes
Although we try to ensure accuracy, these details are set out for guidance purposes only and do not form part of a contract or offer. Please note that some photographs have been taken with a wide-angle lens. A final inspection prior to exchange of contracts is recommended. No person in the employment of James Du Pavey Ltd has any authority to make any representation or warranty in relation to this property.

ID Checks
Please note we charge £50 inc VAT for ID Checks and verification for each person financially involved with the transaction when purchasing a property through us.

Referrals
We can recommend excellent local solicitors, mortgage advice and surveyors as required. At no time are you obliged to use any of our services. We recommend Gent Law Ltd for conveyancing, they are a connected company to James Du Pavey Ltd but their advice remains completely independent. We can also recommend other solicitors who pay us a referral fee of £240 inc VAT. For mortgage advice we work with RPUK Ltd, a superb financial advice firm with discounted fees for our clients. RPUK Ltd pay James Du Pavey 25% of their fees. RPUK Ltd is a trading style of Retirement Planning (UK) Ltd, Authorised and Regulated by the Financial Conduct Authority. Your Home is at risk if you do not keep up repayments on a mortgage or other loans secured on it. We receive £120 inc VAT for each survey referral.

Jasmine Horsley

Jasmine Horsley BA (Hons)

Cheadle Branch

01538 711400