Church Street, Eccleshall, ST21

£350,000

5 reasons we love this property

  1. A charming two bedroom cottage in the heart of Eccleshall.
  2. Two double bedrooms and a family bathroom on the first floor allows plenty of space to relax and unwind.
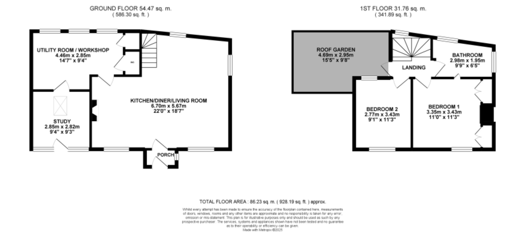
  3. On the ground floor find an open plan kitchen/diner/living area, utility/workshop, study and W.C.
  4. A roof garden is the perfect entertaining spot, while a driveway and garden to the front makes parking a breeze.
  5. Located in Eccleshall, be close by to excellent local amenities, schools and travel links.

About this property

Straight from the pages of a storybook, this enchanting detached period cottage is ready to steal your heart and start its next chapter with you.

Read more

Straight from the pages of a storybook, this enchanting detached period cottage is ready to steal your heart and start its next chapter with you. Brimming with character, comfort and a touch of modern magic, it unfolds across two generous reception rooms and two dreamy bedrooms. Outside, its charming cottage façade, complete with a bold red front door and timeless architectural details, sits nestled among lush greenery and mature gardens.

Open the front door and step into a warm, welcoming narrative where exposed beams, wooden floors and period touches harmonise with contemporary finishes. The open-plan kitchen/living/dining area is anchored by a wood-burning stove, the true heart of the home, perfect for cosy evenings and timeless memories. Thoughtful built-in shelving and clever storage solutions appear throughout like helpful woodland guides. The modern kitchen, with its sleek cabinetry and integrated appliances, offers a delightful dining nook beneath rustic beams, ideal for family feasts or gatherings worthy of a fairy-tale banquet. A spacious utility room/workshop and a handy cloakroom keep daily life organised, while a dedicated office, flooded with natural light and offering access to the front garden, provides a productive hideaway for work or creativity.

Upstairs, both bedrooms are bright, inviting sanctuaries, spaces where sweet dreams happily ever after. The modern bathroom features a bathtub with shower overhead, elegant tiling and a heated towel rail, all resting on wood-effect flooring. And for a little extra magic, a door on the landing opens onto a roof garden/balcony, a serene perch perfect for morning coffee, evening stars or hosting intimate gatherings under open skies.

Blending period charm, modern comforts and generous indoor-outdoor living, this cottage is a rare find for those seeking a home with heart and character in every corner. Set in the heart of Eccleshall, you have local amenities, schools and travel links just a short stroll away, with Stone and Stafford only minutes by car for all your wider adventures.

Turn the page, your happily ever after begins here. Call today to book your viewing!

Location
Eccleshall is a very much sought after village with a bustling high street with numerous shops, pubs, restaurants and small businesses along with a vibrant community spirit with annual events held locally including the well known Eccleshall Show held every summer. Eccleshall High Street, with many Georgian and earlier buildings, is a conservation area creating a truly unique setting that should remain untouched into the future. The village also benefits from having a fantastic primary school with High Schools accessible in nearby Stone and Stafford. The A519 road runs through the town allowing access to both Junction 14 of the M6 motorway south of Eccleshall and Junction 15, North of Eccleshall. The nearest operational railway stations are Stafford and Stone.

Agent Note
The cottage was formerly part of the Churcj estate (probably the gardeners cottage). Restrictive covenant that forbids any "deed matter or thing" that "may be or become a nuisance to the minister or the congregation attending the divine service in the Parish Church". This also prevents the cottage being used as "a place of amusement hotel tavern inn or public house, nor shall any spiritus or fermented liquors be sold".

Council Tax Band: D

Tenure: Freehold

Additional Information

Useful Links
Broadband and mobile phone coverage checker - https://checker.ofcom.org.uk/

Floor Plans
Please note that floor plans are provided to give an overall impression of the accommodation offered by the property. They are not to be relied upon as a true, scaled and precise representation. Whilst we make every attempt to ensure the accuracy of the floor plan, measurements of doors, windows, rooms and any other item are approximate. This plan is for illustrative purposes only and should only be used as such by any prospective purchaser.

Agent's Notes
Although we try to ensure accuracy, these details are set out for guidance purposes only and do not form part of a contract or offer. Please note that some photographs have been taken with a wide-angle lens. A final inspection prior to exchange of contracts is recommended. No person in the employment of James Du Pavey Ltd has any authority to make any representation or warranty in relation to this property.

ID Checks
Please note we charge £50 inc VAT for ID Checks and verification for each person financially involved with the transaction when purchasing a property through us.

Referrals
We can recommend excellent local solicitors, mortgage advice and surveyors as required. At no time are you obliged to use any of our services. We recommend Gent Law Ltd for conveyancing, they are a connected company to James Du Pavey Ltd but their advice remains completely independent. We can also recommend other solicitors who pay us a referral fee of £240 inc VAT. For mortgage advice we work with RPUK Ltd, a superb financial advice firm with discounted fees for our clients. RPUK Ltd pay James Du Pavey 25% of their fees. RPUK Ltd is a trading style of Retirement Planning (UK) Ltd, Authorised and Regulated by the Financial Conduct Authority. Your Home is at risk if you do not keep up repayments on a mortgage or other loans secured on it. We receive £120 inc VAT for each survey referral.

Lee Davies

Lee Davies MNAEA

Eccleshall Branch

01785 851886