Church Walks, Norton-In-Hales, TF9

£600,000 Offers Over

5 reasons we love this property

  1. Spacious Family Home - Exceptional four-bedroom detached property offering versatile and spacious living in a beautiful village setting.
  2. Three versatile reception rooms including a cosy lounge with a log-burning stove, a separate study, and an additional reception room ideal for relaxing, working, or entertaining.
  3. Garden Views and Ample Parking - Rear garden overlooking surrounding fields, along with a driveway for up to three vehicles and a double garage for secure parking or storage.
  4. Open Kitchen & Dining Area - A light-filled kitchen leading into an open dining area
  5. Ideal Village Location - Located in Norton-in-Hales an idyllic, beautiful rural village within easy commutable distance of Market Drayton, Nantwich & Shrewsbury

About this property

Roses are red, violets are blue, your dream home is waiting just for you. Step inside Rose Cottage, where dreams really do come true.

Read more

Roses are red, violets are blue, your dream home is waiting just for you. Step inside Rose Cottage, where dreams really do come true.

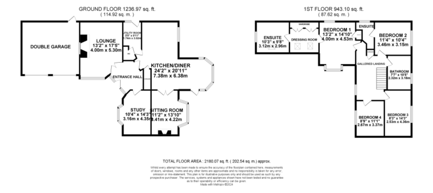
This exceptional four-bedroom detached property presents an outstanding opportunity for those seeking versatile and spacious living in a beautiful village setting. Upon entering, you are welcomed by a spacious hallway that leads you to the cosy lounge, complete with a log-burning stove, perfect for relaxing evenings with family and friends. Situated opposite the lounge at the front of the house is the study, offering a versatile space ideal for use as a home office or a playroom for younger members of the family. The true heart of the home is the kitchen, which flows seamlessly into the open dining area – a light-filled space that connects effortlessly to the third reception room, making it ideal for both everyday family living and more formal entertaining, with easy access to the rear garden for summer evenings and family barbecues. The ground floor also benefits from a convenient cloakroom/WC, adding practicality to the well-designed layout.

Upstairs, the property continues to impress with four double bedrooms, two of which benefit from en-suite facilities. The principal bedroom is a true retreat, featuring a private walk-through dressing room that leads to a luxurious en-suite bathroom, beautifully appointed with a roll-top bath and separate shower – a standout feature that adds a touch of indulgence to everyday living. The remaining bedrooms are served by a large family bathroom equipped with both bath and shower, designed with both style and practicality in mind.

Externally, the property offers a driveway providing parking for up to three vehicles along with a double garage, offering secure parking or valuable additional storage. To the rear, the garden provides a peaceful setting with views across the surrounding fields, enhancing the tranquillity of village life. A further highlight is the gated access at the rear of the garden, leading directly to the village clubhouse and recreational grounds, including cricket pitches, two grass tennis courts and a bowling green – perfect for those who enjoy an active and sociable lifestyle.

With its versatile reception rooms, luxurious principal suite and elegant yet practical layout, this property is certain to appeal to those seeking a forever home that adapts to every stage of family life without compromising on comfort or style. Early viewing is highly recommended to fully appreciate the thoughtful design and enviable setting on offer in this outstanding residence. Please contact the Eccleshall office today on 01785 851886 to arrange your viewing.

Location
Norton-in-Hales is an idyllic, beautiful rural village within easy commutable distance of Market Drayton, Nantwich & Shrewsbury along with nearby motorway Junctions providing easy access to Manchester, Liverpool & Birmingham. Having won numerous titles within floral display competitions such as Britain in Bloom, Norton-in-Hales achieved first prize & became Champion of Champions in 2015 helping to put the village on the map! With prizes like this only achieved by the community pulling together this village really is one to be a part of. The village benefits from having a primary school, church, local pub and cricket club with further amenities in the nearby local villages and Market Drayton just minutes drive away.

Council Tax Band: G

Tenure: Freehold

Additional Information

Useful Links
Broadband and mobile phone coverage checker - https://checker.ofcom.org.uk/

Floor Plans
Please note that floor plans are provided to give an overall impression of the accommodation offered by the property. They are not to be relied upon as a true, scaled and precise representation. Whilst we make every attempt to ensure the accuracy of the floor plan, measurements of doors, windows, rooms and any other item are approximate. This plan is for illustrative purposes only and should only be used as such by any prospective purchaser.

Agent's Notes
Although we try to ensure accuracy, these details are set out for guidance purposes only and do not form part of a contract or offer. Please note that some photographs have been taken with a wide-angle lens. A final inspection prior to exchange of contracts is recommended. No person in the employment of James Du Pavey Ltd has any authority to make any representation or warranty in relation to this property.

ID Checks
Please note we charge £50 inc VAT for ID Checks and verification for each person financially involved with the transaction when purchasing a property through us.

Referrals
We can recommend excellent local solicitors, mortgage advice and surveyors as required. At no time are you obliged to use any of our services. We recommend Gent Law Ltd for conveyancing, they are a connected company to James Du Pavey Ltd but their advice remains completely independent. We can also recommend other solicitors who pay us a referral fee of £240 inc VAT. For mortgage advice we work with RPUK Ltd, a superb financial advice firm with discounted fees for our clients. RPUK Ltd pay James Du Pavey 25% of their fees. RPUK Ltd is a trading style of Retirement Planning (UK) Ltd, Authorised and Regulated by the Financial Conduct Authority. Your Home is at risk if you do not keep up repayments on a mortgage or other loans secured on it. We receive £120 inc VAT for each survey referral.

Lee Davies

Lee Davies MNAEA

Eccleshall Branch

01785 851886