Congleton Road, Talke, ST7

£135,000

5 reasons we love this property

  1. Two generously sized double bedrooms, both offering comfortable living space with flexibility for wardrobes, home working, or guest accommodation.
  2. Bright and inviting living room featuring a large rear-facing window that fills the space with natural light and creates a cosy atmosphere.
  3. Spacious and modern bathroom fitted with a bath and dual-shower system, including a luxurious rain shower.
  4. Enclosed rear garden with a patio seating area, lawned section, and shed/outbuilding providing useful outdoor space and storage
  5. Well-positioned in the popular village of Talke, with excellent access to the A500, A34, and M6, and within easy reach of Newcastle-under-Lyme and Stoke-on-Trent.

About this property

This charming two-bedroom semi-detached home in Talke offers well-balanced living space with plenty of natural light and a warm, welcoming feel throughout.

Read more

This charming two-bedroom semi-detached home in Talke offers well-balanced living space with plenty of natural light and a warm, welcoming feel throughout.

The living room is a cosy yet bright space, benefitting from a large rear-facing window that floods the room with natural light, making it ideal for relaxing at the end of the day. Adjacent to this is the dining room, similar in size and perfectly suited for hosting guests or enjoying family meals. Decorative panelling on the back wall adds character and a stylish focal point to the room.

The kitchen is compact and thoughtfully arranged, featuring an integrated oven and induction hob. There is space to accommodate a fridge/freezer, dishwasher, and washing machine, making it both practical and efficient for everyday use. A shared hallway with the neighbouring property provides additional, useful storage space.

Upstairs, the first bedroom is a comfortable double with ample room for wardrobes and a dressing table, along with the added benefit of a small built-in storage closet. The second bedroom is also a well-proportioned double, offering flexibility for use as a guest room, home office, or second bedroom. The bathroom is generously sized and fitted with a bath and a dual-shower system, including a rain shower, creating a relaxing and modern space.

To the rear, the garden features a paved patio area ideal for outdoor seating, leading onto a lawn that extends to the back of the garden where a shed or outbuilding provides further storage. Parking is available on the road, with no designated off-road parking for the property.

Agents Notice - There is a private car park across the road which can be used for parking for £30 a month.

Location:

Talke is a well-regarded village combining a semi-rural feel with excellent accessibility. The area offers a range of local amenities including shops, schools, and public transport links, while nearby Newcastle-under-Lyme and Stoke-on-Trent provide a wider selection of shopping, leisure, and employment opportunities. The property is conveniently located for access to the A34, A500, and M6, making it an ideal choice for commuters. Additionally, surrounding countryside, canal walks, and green spaces offer plenty of options for outdoor recreation.

Council Tax Band: A

Tenure: Freehold

Additional Information

Useful Links
Broadband and mobile phone coverage checker - https://checker.ofcom.org.uk/

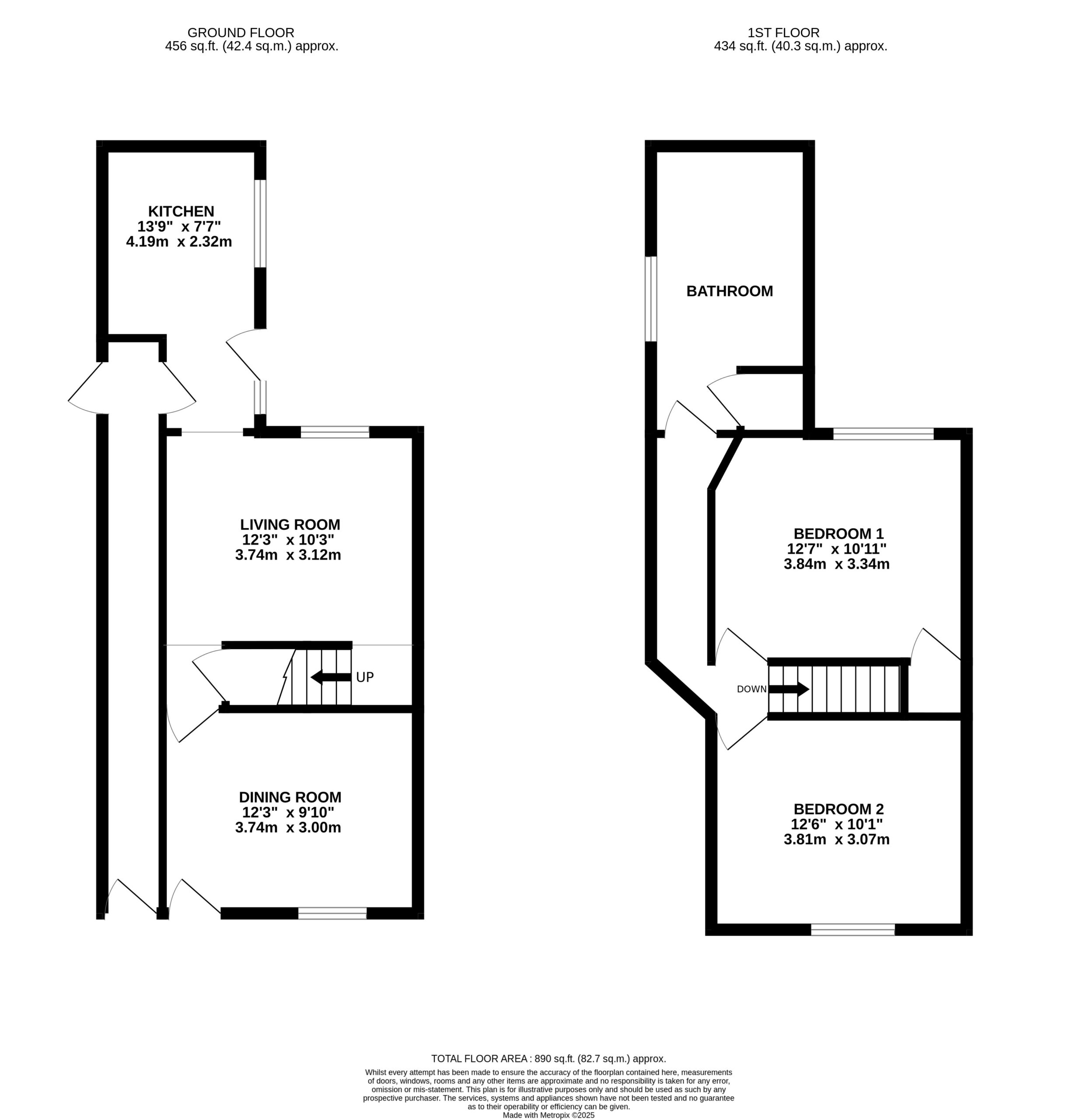
Floor Plans
Please note that floor plans are provided to give an overall impression of the accommodation offered by the property. They are not to be relied upon as a true, scaled and precise representation. Whilst we make every attempt to ensure the accuracy of the floor plan, measurements of doors, windows, rooms and any other item are approximate. This plan is for illustrative purposes only and should only be used as such by any prospective purchaser.

Agent's Notes
Although we try to ensure accuracy, these details are set out for guidance purposes only and do not form part of a contract or offer. Please note that some photographs have been taken with a wide-angle lens. A final inspection prior to exchange of contracts is recommended. No person in the employment of James Du Pavey Ltd has any authority to make any representation or warranty in relation to this property.

ID Checks
Please note we charge £50 inc VAT for ID Checks and verification for each person financially involved with the transaction when purchasing a property through us.

Referrals
We can recommend excellent local solicitors, mortgage advice and surveyors as required. At no time are you obliged to use any of our services. We recommend Gent Law Ltd for conveyancing, they are a connected company to James Du Pavey Ltd but their advice remains completely independent. We can also recommend other solicitors who pay us a referral fee of £240 inc VAT. For mortgage advice we work with RPUK Ltd, a superb financial advice firm with discounted fees for our clients. RPUK Ltd pay James Du Pavey 25% of their fees. RPUK Ltd is a trading style of Retirement Planning (UK) Ltd, Authorised and Regulated by the Financial Conduct Authority. Your Home is at risk if you do not keep up repayments on a mortgage or other loans secured on it. We receive £120 inc VAT for each survey referral.

James Latham

James Latham BA (Hons)

Nantwich Branch

01270 445678