Eastwick Crescent, Stoke-On-Trent, ST4

£450,000

5 reasons we love this property

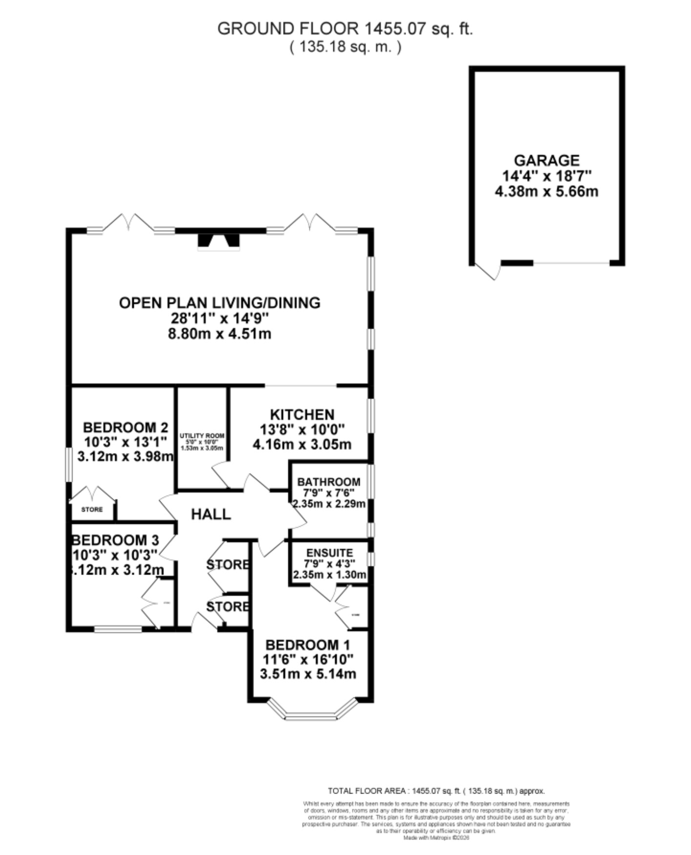
  1. Stunning 3-bed detached bungalow, extended & modernised, single-storey, low-maintenance, solar panels, perfect for downsizers in sought-after Trentham.
  2. Expansive open-plan living/dining room with log burner, French doors, modern kitchen with navy cabinetry and integrated appliances, utility with fridge freezer and room for more!
  3. Three generous bedrooms with fitted wardrobes, master with ensuite shower room, bathroom with panelled bath, shower, WC & vanity basin.
  4. Rear garden with artificial lawn & patio, garage plus tarmacked driveway with front & side parking, easy low-maintenance outdoor living for relaxing & entertaining.
  5. Close to shops, cafes, Trentham Gardens, parks, schools, and excellent transport links... a prime location for convenience and lifestyle.

About this property

Beautifully extended 3-bed detached bungalow with open-plan sitting/dining, modern kitchen, ensuite shower room & bathroom, garden, garage, driveway & solar panels. Perfect for downsizers seeking low-maintenance Trentham living near shops, cafes, parks & schools.

Read more

North, South, West… none of them matter. True happiness points to Eastwick Crescent.

Set your compass and chart a course to something extraordinary. Eastwick Crescent isn’t just any bungalow, it’s a 3-bedroom detached home that proves single-level living can be spacious, modern, and full of surprises. Extended, beautifully updated, fitted with solar panels, and benefiting from a main heating system of an ASHP with radiators, plus hot and cold air conditioning, perfect for summer months, it’s the ideal destination for downsizers or anyone seeking easy, low-maintenance living in the sought-after Trentham.

Step inside and prepare to be guided through a home that feels as expansive as a journey. The generously sized, open plan Living and dining room is a navigator’s dream, flowing seamlessly into the modern kitchen. Two sets of French doors open onto the rear garden, bringing the outdoors in, while the log burner sets the perfect anchor point for cosy nights and shared stories.

The kitchen is fully equipped for any culinary expedition, featuring navy cabinetry with a breakfast bar, two ovens, microwave, dishwasher, fridge freezer, induction hob with extractor hood, and a stainless-steel sink with 4-in-1 boiling water tap. Just off the kitchen, a utility room with grey cabinetry, handy sink, fridge/freezer, and room for more, ensures every day is smooth sailing.

All three generously sized bedrooms come with fitted wardrobes, ready to host restful retreats after a day of exploring your new home. One bedroom boasts a luxurious ensuite shower room with electric walk-in shower, vanity wash hand basin, WC, and modern tiling, whilst the other bathroom offers a panelled bath, sleek shower, WC, and vanity basin, combining style with practicality.

Venture outside and discover a rear garden designed for both adventure and relaxation. A beautifully laid artificial lawn stretches out, perfect for alfresco dining, or quiet mornings with a coffee. The patio area provides the perfect basecamp for barbecues or sunset gatherings, while the garage offers excellent additional storage or secure parking, keeping vehicles sheltered and belongings neatly tucked away. To the front, the tarmacked driveway provides parking to the front and side, ensuring arrival is always smooth and effortless.

Location

Trentham lies to the South of Stoke-on-Trent and offers a perfect mix of modern living, green surroundings and excellent amenities. Known for its attractive residential streets and family-friendly atmosphere with local schools, including well regarded Trentham Academy and several highly rated primaries

At the heart of the area is Trentham Gardens and Shopping Village, a renowned destination featuring independent boutiques, restaurants, cafés, a garden centre and the award-winning Trentham Estate — ideal for walks, leisure and family days out. Additional amenities include shops, bars and eateries as well as the popular 18-hole Trentham Golf Club.

Trentham benefits from easy access to the A34, A50 and M6, as well as main line rail stations in Stoke and Stafford making it ideal for commuters.

Council Tax Band: C

Tenure: Freehold

Additional Information

Useful Links
Broadband and mobile phone coverage checker - https://checker.ofcom.org.uk/

Floor Plans
Please note that floor plans are provided to give an overall impression of the accommodation offered by the property. They are not to be relied upon as a true, scaled and precise representation. Whilst we make every attempt to ensure the accuracy of the floor plan, measurements of doors, windows, rooms and any other item are approximate. This plan is for illustrative purposes only and should only be used as such by any prospective purchaser.

Agent's Notes
Although we try to ensure accuracy, these details are set out for guidance purposes only and do not form part of a contract or offer. Please note that some photographs have been taken with a wide-angle lens. A final inspection prior to exchange of contracts is recommended. No person in the employment of James Du Pavey Ltd has any authority to make any representation or warranty in relation to this property.

ID Checks
Please note we charge £50 inc VAT for ID Checks and verification for each person financially involved with the transaction when purchasing a property through us.

Referrals
We can recommend excellent local solicitors, mortgage advice and surveyors as required. At no time are you obliged to use any of our services. We recommend Gent Law Ltd for conveyancing, they are a connected company to James Du Pavey Ltd but their advice remains completely independent. We can also recommend other solicitors who pay us a referral fee of £240 inc VAT. For mortgage advice we work with RPUK Ltd, a superb financial advice firm with discounted fees for our clients. RPUK Ltd pay James Du Pavey 25% of their fees. RPUK Ltd is a trading style of Retirement Planning (UK) Ltd, Authorised and Regulated by the Financial Conduct Authority. Your Home is at risk if you do not keep up repayments on a mortgage or other loans secured on it. We receive £120 inc VAT for each survey referral.

Catrina Horsley

Catrina Horsley MNAEA

Stone Branch

01785 814917