Elford Heath, Eccleshall, ST21

£585,000 Offers Over

5 reasons we love this property

  1. Three double bedrooms, with the master bedroom offering French windows with a Juliet balcony showing off the stunning views.
  2. A spacious lounge and a separate dining room, both oozing with cottage charm and character.
  3. An impressive kitchen/family room with ample space for cooking up a storm and separate utility room for convenience. A cozy feel with a stunning solid fuel burner filling the room with warmth.
  4. Large, well maintained gardens, substantial garage and workshop and ample parking.
  5. Prime location within walking distance of the Eccleshall high street and also offering excellent transport links.

About this property

Charming three bed detached house near Eccleshall. Spacious rooms, Juliet balcony, garage, workshop, ample parking, cosy lounge, and prime location close to shops and transport links.

Read more

If you have ever dreamt of living in a home where every room whispers, “put your feet up and stay awhile,” this three bedroom detached house on the outskirts of Eccleshall might just be your next address. Step inside and discover three double bedrooms, each roomy enough to accommodate even the most ambitious pillow collections, with the master bedroom taking things up a notch with French windows opening onto a Juliet balcony admiring the stunning views. The lounge and separate dining room ooze cottage charm and character, making every dinner party feel like a scene from a cosy British romcom. The impressive kitchen and family room offer ample space for culinary adventures, whether you’re whipping up a full roast or just making toast with a flourish. The solid fuel burner here is not only a conversation starter but also a reliable provider of warmth. There’s even a separate utility room, so the laundry can be hidden from view. Storage is no issue, thanks to a substantial garage and workshop ideal for car enthusiasts, DIY dabblers, or anyone who just needs a place to hide from the in-laws. Parking is plentiful, so invite your friends, your family, and even that one neighbour who always needs to borrow a cup of sugar. The location is prime, with Eccleshall high street just a stroll away, meaning you’re never far from artisan coffee, a cheeky bakery treat, or a spontaneous shopping spree. Excellent transport links make commuting a breeze, or at least as breezy as it gets in Staffordshire. In short, this house has all the ingredients for comfortable, character filled living and is waiting for you to come and see for yourself.

Location
Living in Elford Heath on the outskirts of Eccleshall offers the perfect balance between peaceful countryside living and convenient access to local amenities. Surrounded by rolling Staffordshire farmland, Elford Heath provides a quiet, community focused setting ideal for families and professionals alike. Residents enjoy scenic walks, fresh air, and a slower pace of life, while still being just minutes from Eccleshall’s charming high street, independent shops, cafés, and well regarded schools. With excellent road links to Stafford and the M6, Elford Heath combines rural tranquillity with practical connectivity, making it an attractive and desirable place to call home.

Council Tax Band: E

Tenure: Freehold

Additional Information

Useful Links
Broadband and mobile phone coverage checker - https://checker.ofcom.org.uk/

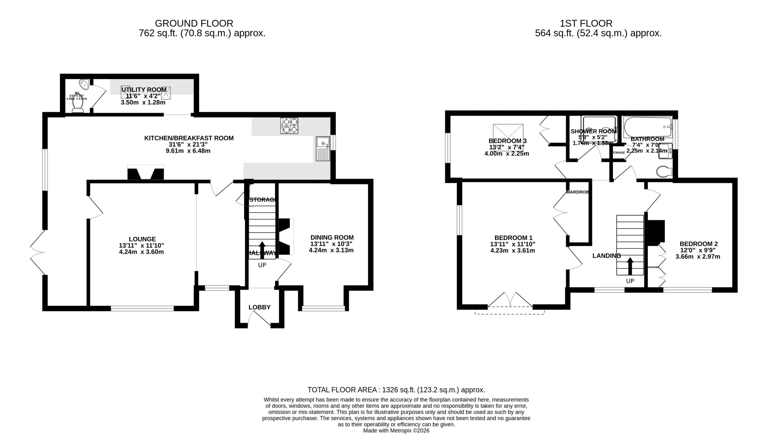
Floor Plans
Please note that floor plans are provided to give an overall impression of the accommodation offered by the property. They are not to be relied upon as a true, scaled and precise representation. Whilst we make every attempt to ensure the accuracy of the floor plan, measurements of doors, windows, rooms and any other item are approximate. This plan is for illustrative purposes only and should only be used as such by any prospective purchaser.

Agent's Notes
Although we try to ensure accuracy, these details are set out for guidance purposes only and do not form part of a contract or offer. Please note that some photographs have been taken with a wide-angle lens. A final inspection prior to exchange of contracts is recommended. No person in the employment of James Du Pavey Ltd has any authority to make any representation or warranty in relation to this property.

ID Checks
Please note we charge £50 inc VAT for ID Checks and verification for each person financially involved with the transaction when purchasing a property through us.

Referrals
We can recommend excellent local solicitors, mortgage advice and surveyors as required. At no time are you obliged to use any of our services. We recommend Gent Law Ltd for conveyancing, they are a connected company to James Du Pavey Ltd but their advice remains completely independent. We can also recommend other solicitors who pay us a referral fee of £240 inc VAT. For mortgage advice we work with RPUK Ltd, a superb financial advice firm with discounted fees for our clients. RPUK Ltd pay James Du Pavey 25% of their fees. RPUK Ltd is a trading style of Retirement Planning (UK) Ltd, Authorised and Regulated by the Financial Conduct Authority. Your Home is at risk if you do not keep up repayments on a mortgage or other loans secured on it. We receive £120 inc VAT for each survey referral.

Lee Davies

Lee Davies MNAEA

Eccleshall Branch

01785 851886