Imperial Court, Nantwich, CW5

£325,000

5 reasons we love this property

  1. Four-bedroom end-of-terrace home arranged over three spacious floors.
  2. Modern kitchen with integrated appliances and French doors to dining conservatory.
  3. Two bathrooms plus ground floor WC for added convenience.
  4. Generous living room and built-in wardrobes to multiple bedrooms.
  5. Private, low-maintenance garden and driveway parking for two vehicles.

About this property

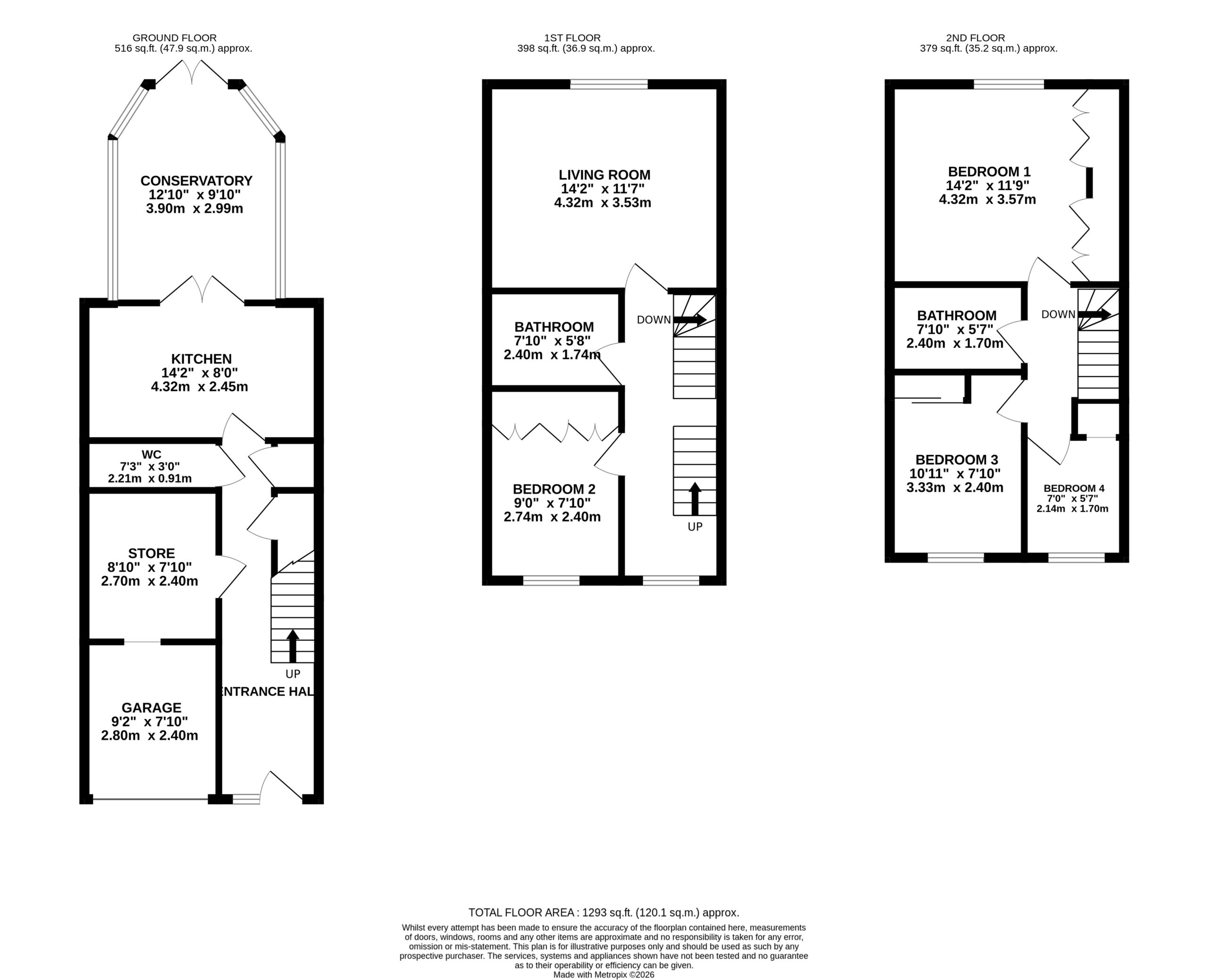
Situated in the charming market town of Nantwich, this beautifully presented four-bedroom end-of-terrace property offers spacious and versatile accommodation arranged over three floors.

Read more

Situated in the charming market town of Nantwich, this beautifully presented four-bedroom townhouse offers spacious and versatile accommodation arranged over three floors, ideal for modern family living.

The ground floor welcomes you with a well-appointed kitchen featuring a range of integrated appliances including a fridge, freezer, dishwasher, oven, and four-ring gas hob. French doors lead seamlessly into the conservatory, currently utilised as a bright and airy dining room, creating a wonderful space for entertaining. A second set of French doors opens out onto the garden, allowing natural light to flood the space and providing an easy indoor-outdoor flow.

Practicality has been carefully considered, with a convenient downstairs WC, a handy under-stairs storage cupboard, and an additional storage cupboard complete with plumbing for both a washing machine and dryer, neatly tucked away to maintain a clean, uncluttered finish. The garage has been thoughtfully divided into two sections and is currently used for storage, offering excellent additional space.

On the first floor, the generously sized living room provides plenty of space to relax, socialise, and enjoy cosy evenings in. Bedroom two is also located on this floor and comfortably accommodates a double bed, complemented by built-in wardrobe space. A family bathroom serves this level and features a bath with overhead shower.

The second floor hosts three further bedrooms. Bedroom one is a large double, boasting built-in wardrobes spanning an entire wall while still offering ample room for additional furnishings. Bedroom three mirrors the proportions of bedroom two, again benefiting from built-in wardrobes and space for a double bed. Bedroom four is a smaller room currently arranged as a home office, but equally suitable as a guest room or hobby space. A second bathroom, identical in layout to the first-floor bathroom and complete with a bath and overhead shower, completes the upper level.

Externally, the property enjoys a private, low-maintenance garden — perfect for relaxing in peaceful surroundings without the burden of extensive upkeep and a garden shed for any gardening wares or to be used for extra storage. There is also a storage shed on the right hand side of the property perfect for storing away tools, bikes, etc. To the front, a driveway provides off-road parking for two vehicles, ensuring convenient and secure parking as well as additional on street parking for guests.

Location

Nantwich is a historic market town located in the county of Cheshire, England. It lies on the banks of the River Weaver and is approximately 5 miles south-west of the larger town of Crewe. Nantwich has a rich history that dates back to Roman times, and it is known for its well-preserved medieval architecture and charming streets.

One of the most prominent features of Nantwich is its black and white timber-framed buildings, which give the town a distinctive character. The town centre is filled with historic structures, including the Nantwich Town Walls, St. Mary's Church, and the Queen's Aid House. The Nantwich Museum, located in a restored Georgian townhouse, offers visitors an opportunity to explore the town's history and heritage.

Nantwich is also famous for its annual food and drink festival, which takes place in September and attracts thousands of visitors. The festival showcases a variety of local and regional produce, including Cheshire cheese, pies, and real ale. Additionally, the town holds a traditional market three times a week, where locals and tourists can browse a range of goods, from fresh produce to antiques.

The River Weaver, which runs through Nantwich, provides opportunities for leisurely walks along the waterfront and offers a picturesque setting for boat trips. The town is surrounded by beautiful Cheshire countryside, with plenty of scenic trails and paths for outdoor enthusiasts to explore.

Nantwich has a thriving community and offers a range of amenities, including shops, restaurants, cafes, and pubs. It also has several primary and secondary schools, making it an attractive place to live for families.

Nantwich is conveniently placed for commuter travel, with excellent road links including access to the M6 motorway network via the A500. Rail travel is offered via Nantwich train station which has direct services to Manchester and Shrewsbury, and Crewe Railway Station which is within 8 miles and provides direct services to a host of major cities including London, Manchester, Liverpool, Birmingham, and Glasgow.

In summary, Nantwich is a charming market town in Cheshire, England, known for its rich history, medieval architecture, annual food festival, and picturesque surroundings. It's a place where visitors can immerse themselves in the past while enjoying the amenities of a vibrant community.

Council Tax Band: D

Tenure: Freehold

Additional Information

Useful Links
Broadband and mobile phone coverage checker - https://checker.ofcom.org.uk/

Floor Plans
Please note that floor plans are provided to give an overall impression of the accommodation offered by the property. They are not to be relied upon as a true, scaled and precise representation. Whilst we make every attempt to ensure the accuracy of the floor plan, measurements of doors, windows, rooms and any other item are approximate. This plan is for illustrative purposes only and should only be used as such by any prospective purchaser.

Agent's Notes
Although we try to ensure accuracy, these details are set out for guidance purposes only and do not form part of a contract or offer. Please note that some photographs have been taken with a wide-angle lens. A final inspection prior to exchange of contracts is recommended. No person in the employment of James Du Pavey Ltd has any authority to make any representation or warranty in relation to this property.

ID Checks
Please note we charge £50 inc VAT for ID Checks and verification for each person financially involved with the transaction when purchasing a property through us.

Referrals
We can recommend excellent local solicitors, mortgage advice and surveyors as required. At no time are you obliged to use any of our services. We recommend Gent Law Ltd for conveyancing, they are a connected company to James Du Pavey Ltd but their advice remains completely independent. We can also recommend other solicitors who pay us a referral fee of £240 inc VAT. For mortgage advice we work with RPUK Ltd, a superb financial advice firm with discounted fees for our clients. RPUK Ltd pay James Du Pavey 25% of their fees. RPUK Ltd is a trading style of Retirement Planning (UK) Ltd, Authorised and Regulated by the Financial Conduct Authority. Your Home is at risk if you do not keep up repayments on a mortgage or other loans secured on it. We receive £120 inc VAT for each survey referral.

James Latham

James Latham BA (Hons)

Nantwich Branch

01270 445678