Masefield Close, Cheadle, ST10

£200,000 Offers Over

5 reasons we love this property

  1. Wake Up Refreshed in a Modern Retreat – A fully modernised bungalow offering easy, one-level living with a fresh, uplifting feel.
  2. Sun-Filled Living Space – A bright lounge/diner where the large front window lets the morning light pour in, perfect for starting your day right.
  3. Shine in the Sleek Kitchen – Recently updated with crisp cabinets, warm oak-effect worktops, and integrated appliances for effortless mornings.
  4. Rest Easy, Rise Bright – Two peaceful double bedrooms with fitted wardrobes and calming garden views for a clutter-free, restful night.
  5. Soak Up the Sunshine Outdoors – A South-facing garden made for sunny days, plus generous parking to keep life running smoothly.

About this property

“Rise and shine!” This bungalow has had a modern awakening with a fresh yet relaxing feel.

Read more

“Rise and shine!” This bungalow has had a modern awakening with a fresh yet relaxing feel. Modernised throughout, this bungalow is the perfect package, conveniently situated on one neat level. Spacious and bright, this is a home you won’t want to miss making your own. The front porch welcomes you as you step into the lounge/diner, which transports you into a relaxing space.  A large front window floods the room with light; curl up and watch a film or people-watch to your heart's content. From here, the opening leads to a recently updated kitchen. Sleek cabinets topped with a light oak-effect worktop for all your storage needs. Integrated appliances give it that neat, tidy finish, whip up those weekday wonders, and enjoy. For your slumber, two double bedrooms, each with fitted wardrobes, allow you to sleep easily with no visible clutter. With views of the rear garden, you will be dreaming of those Summer days. A family shower room serves the home, with a walk-in shower for those early-morning rise-and-shine. To the rear a neatly manicured South-facing garden, a mixture of porcelain patio and lush green lawn. A fenced and secure sun trap that will have everyone wanting to visit on a sunny day. For parking, you have a large tandem driveway as well as a gravel front. A driveway to the side of the property offers further parking or storage; whatever you choose, it’s a handy addition. Masefield Close offers a well presented bungalow with the current owners having recently replaced the roof, boiler, electrical work and windows! All this is situated on a quiet cul-de-sac on the outskirts of Cheadle. Despite being a town with lots of modern conveniences, it has a strong sense of community. Whether you drive or not, getting further afield is easy by either the vast array of bus routes or the strong access to the A50. The world is your Oyster. Want a Bungalow that shines? Book your viewing today.

Council Tax Band: B

Tenure: Freehold

Additional Information

Useful Links
Broadband and mobile phone coverage checker - https://checker.ofcom.org.uk/

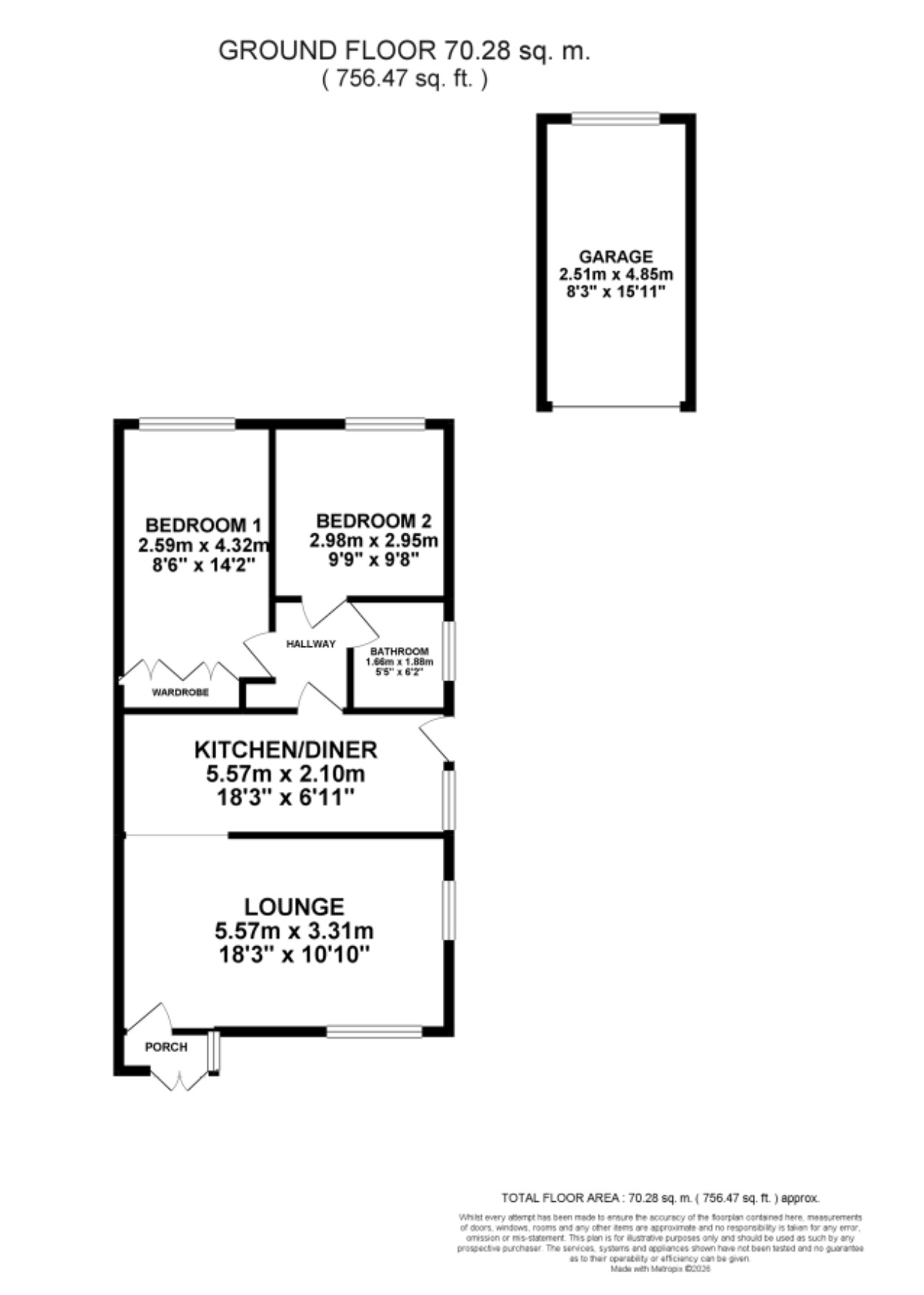
Floor Plans
Please note that floor plans are provided to give an overall impression of the accommodation offered by the property. They are not to be relied upon as a true, scaled and precise representation. Whilst we make every attempt to ensure the accuracy of the floor plan, measurements of doors, windows, rooms and any other item are approximate. This plan is for illustrative purposes only and should only be used as such by any prospective purchaser.

Agent's Notes
Although we try to ensure accuracy, these details are set out for guidance purposes only and do not form part of a contract or offer. Please note that some photographs have been taken with a wide-angle lens. A final inspection prior to exchange of contracts is recommended. No person in the employment of James Du Pavey Ltd has any authority to make any representation or warranty in relation to this property.

ID Checks
Please note we charge £50 inc VAT for ID Checks and verification for each person financially involved with the transaction when purchasing a property through us.

Referrals
We can recommend excellent local solicitors, mortgage advice and surveyors as required. At no time are you obliged to use any of our services. We recommend Gent Law Ltd for conveyancing, they are a connected company to James Du Pavey Ltd but their advice remains completely independent. We can also recommend other solicitors who pay us a referral fee of £240 inc VAT. For mortgage advice we work with RPUK Ltd, a superb financial advice firm with discounted fees for our clients. RPUK Ltd pay James Du Pavey 25% of their fees. RPUK Ltd is a trading style of Retirement Planning (UK) Ltd, Authorised and Regulated by the Financial Conduct Authority. Your Home is at risk if you do not keep up repayments on a mortgage or other loans secured on it. We receive £120 inc VAT for each survey referral.

Jasmine Horsley

Jasmine Horsley BA (Hons)

Cheadle Branch

01538 711400