Merrivale Road, Stafford, ST17

£210,000

5 reasons we love this property

  1. Semi-detached home within walking distance of top-rated schools, shops, supermarkets, eateries, and excellent travel links, all being offered for sale with no upward chain.
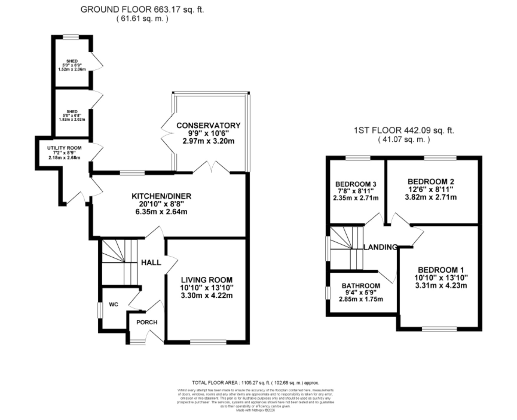
  2. Three generously sized bedrooms, perfect for growing families or those simply looking for a little extra space, plus a bathroom with bath/shower duo, sink, W/C and separate vanity area.
  3. Open-plan kitchen/dining room with shaker-style kitchen and dining area with glazed French doors to the conservatory. Bright living room, plus separate utility, W/C, and porch.
  4. Beautifully-maintained garden with block-paved patio seating area, lush grass lawns, mature shrubberies and two outdoor storage spaces.
  5. This home sits on the quiet yet conveniently placed Merrivale Raod, with an extended block-paved driveway with off-road parking for several vehicles.

About this property

Well-presented three-bed semi-detached home with open-plan kitchen, conservatory, garden, driveway, and sheds. Central Stafford location. No upward chain. Great for families or commuters.

Read more

Step right up, ladies and gentlemen, and take a spin on the most delightful home on Merrivale Road. This well-presented three-bedroom semi-detached home is the perfect ride: steady, charming, and guaranteed to bring a smile to your face every time you come home, all being offered for sale with no upward chain!

Step onto a convenient porch with plenty of space to kick off your coats and shoes before stepping into the home. The internal hallway leads you into the open-plan kitchen/dining room with a traditional shaker-style kitchen complementing worktops and a dining space with glazed French doors leading into the conservatory. Here, you have a lovely view and doors leading out to the garden, making this the ideal space for entertaining both friends and family. The living room is flooded with natural light and offers plenty of room for relaxing. Completing the ground floor is a handy under-stairs storage space, along with a W/C and a separate utility that sits just off the kitchen.

Upstairs is home to three generously sized bedrooms that are perfect for growing families or those who simply enjoy a little extra space, plus a bathroom with a bath/shower duo, sink, W/C, and separate vanity area.

Outside, a gorgeous rear garden awaits with a block-paved seating space, a path leading through the garden, lush green lawns and mature shrubberies. Two outdoor shed spaces offer plenty of storage space for your outdoor goods. At the front, an extended, block-paved driveway provides off-road parking for several vehicles.

Location

Living in central Stafford combines character, heritage, and modern amenities, it’s an ideal location for those seeking a lively atmosphere with everything on their doorstep. Offering vibrant, convenient living at the heart of one of Staffordshire’s most historic and attractive market towns.

The town centre boasts an excellent range of shops, cafés, restaurants, and leisure facilities, including independent boutiques, national retailers, and a selection of popular bars and eateries.

For commuters, Stafford railway station offers direct services to London, Birmingham, Manchester, and Liverpool, while the nearby M6 motorway (Junctions 13 and 14) provides easy road access across the Midlands and beyond.

Stafford town centre is also rich in history, with landmarks such as Stafford Castle, Victoria Park, and the Ancient High House offering culture and green space within easy reach. Residential options range from stylish apartments and period terraces to modern townhouses, appealing to families, professionals, downsizers, and investors alike.

Council Tax Band: B

Tenure: Freehold

Additional Information

Useful Links
Broadband and mobile phone coverage checker - https://checker.ofcom.org.uk/

Floor Plans
Please note that floor plans are provided to give an overall impression of the accommodation offered by the property. They are not to be relied upon as a true, scaled and precise representation. Whilst we make every attempt to ensure the accuracy of the floor plan, measurements of doors, windows, rooms and any other item are approximate. This plan is for illustrative purposes only and should only be used as such by any prospective purchaser.

Agent's Notes
Although we try to ensure accuracy, these details are set out for guidance purposes only and do not form part of a contract or offer. Please note that some photographs have been taken with a wide-angle lens. A final inspection prior to exchange of contracts is recommended. No person in the employment of James Du Pavey Ltd has any authority to make any representation or warranty in relation to this property.

ID Checks
Please note we charge £50 inc VAT for ID Checks and verification for each person financially involved with the transaction when purchasing a property through us.

Referrals
We can recommend excellent local solicitors, mortgage advice and surveyors as required. At no time are you obliged to use any of our services. We recommend Gent Law Ltd for conveyancing, they are a connected company to James Du Pavey Ltd but their advice remains completely independent. We can also recommend other solicitors who pay us a referral fee of £240 inc VAT. For mortgage advice we work with RPUK Ltd, a superb financial advice firm with discounted fees for our clients. RPUK Ltd pay James Du Pavey 25% of their fees. RPUK Ltd is a trading style of Retirement Planning (UK) Ltd, Authorised and Regulated by the Financial Conduct Authority. Your Home is at risk if you do not keep up repayments on a mortgage or other loans secured on it. We receive £120 inc VAT for each survey referral.

Catrina Horsley

Catrina Horsley MNAEA

Stone Branch

01785 814917