Queen Street, Cheadle, ST10

£165,000

5 reasons we love this property

  1. Off-road parking via a rear driveway, a rare and valuable addition.
  2. Private rear South-East facing garden with patio area, ideal for relaxing or entertaining.
  3. Four well-proportioned bedrooms across three floors, offering flexible living space.
  4. Spacious dining room with a patio door creating a bright indoor–outdoor flow.
  5. Convenient location in the popular market town of Cheadle, close to schools, shops, and transport links.

About this property

Spacious four-bedroom terraced home on Queen Street offers generous living space, a private garden, and the rare benefit of off-road parking

Read more

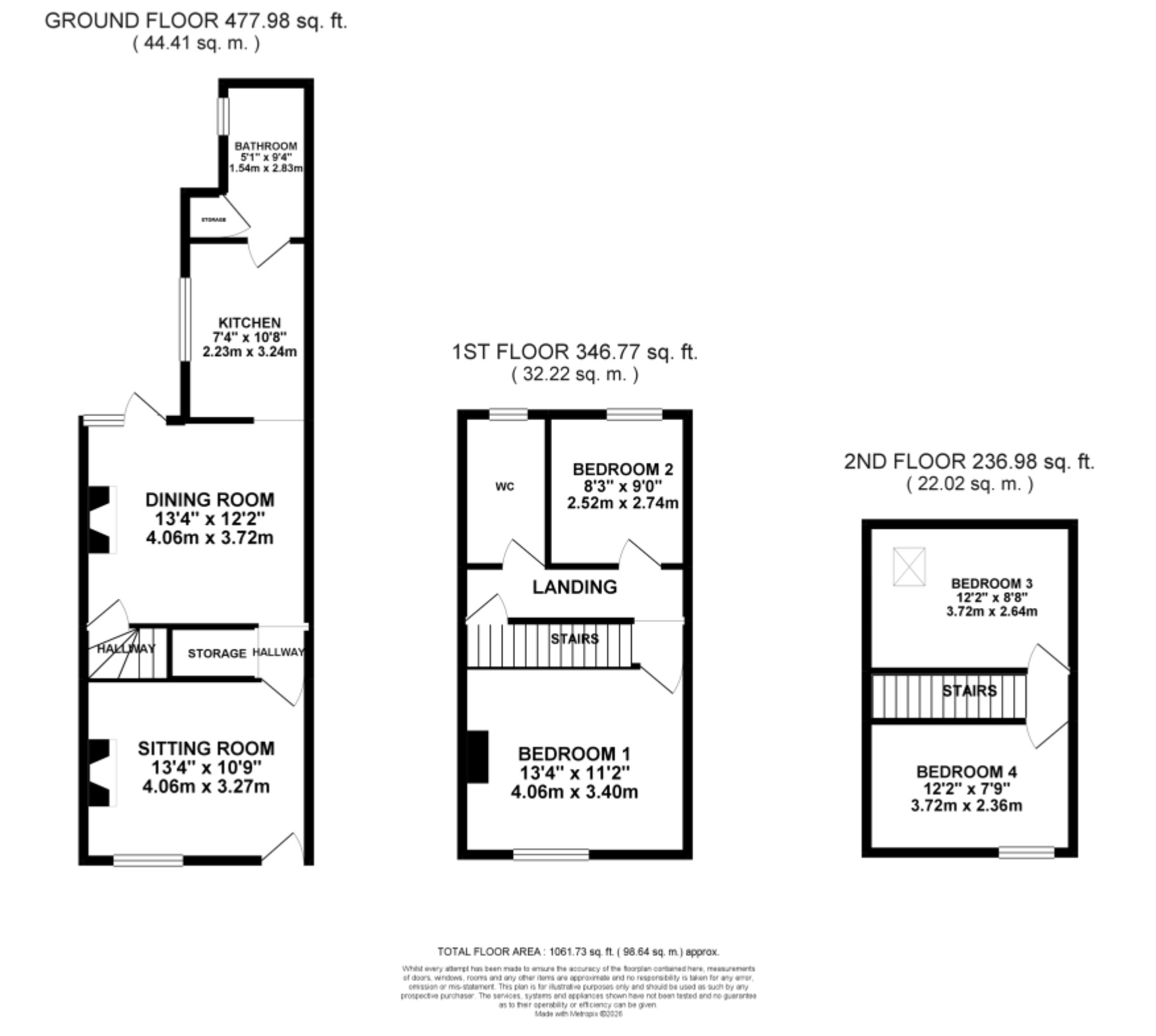
This spacious four-bedroom terraced home on Queen Street offers generous living space, a private garden, and the rare benefit of off-road parking, perfectly positioned in the sought-after market town of Cheadle. Whether you’re a first-time buyer, growing family, or savvy investor, this versatile property is ready to welcome its next owners. Step through the front door into a warm and inviting sitting room, complete with a charming gas fire, ideal for relaxing evenings at home. This flows seamlessly into the dining room, where there’s ample space for a large table, making it perfect for hosting family dinners or entertaining guests. A patio door opens onto the garden, allowing natural light to pour in and creating a wonderful indoor–outdoor feel. The kitchen features crisp white cabinetry paired with wood-effect worktops, offering a bright and practical space with plenty of storage for everyday living. The ground floor is completed by a family bathroom, fitted with a bath and overhead shower for convenience. On the first floor, you’ll find a generously sized master bedroom, along with a versatile single bedroom, ideal as a nursery, home office, or dressing room. A separate WC adds further practicality. The second floor provides two additional well-proportioned double bedrooms, offering flexibility for family living or guest accommodation. Outside, the low-maintenance rear South-East facing garden features a patio area bordered by stone walling and fencing, perfect for enjoying warmer days. A driveway to the rear provides valuable off-road parking. Located in the thriving market town of Cheadle, the property benefits from excellent local schools, a wide range of shops, supermarkets, bars, and eateries, and convenient transport links to the A50 for easy commuting. Could this be the setting for your next chapter? Arrange your viewing today.

Council Tax Band: A

Tenure: Freehold

Additional Information

Useful Links
Broadband and mobile phone coverage checker - https://checker.ofcom.org.uk/

Floor Plans
Please note that floor plans are provided to give an overall impression of the accommodation offered by the property. They are not to be relied upon as a true, scaled and precise representation. Whilst we make every attempt to ensure the accuracy of the floor plan, measurements of doors, windows, rooms and any other item are approximate. This plan is for illustrative purposes only and should only be used as such by any prospective purchaser.

Agent's Notes
Although we try to ensure accuracy, these details are set out for guidance purposes only and do not form part of a contract or offer. Please note that some photographs have been taken with a wide-angle lens. A final inspection prior to exchange of contracts is recommended. No person in the employment of James Du Pavey Ltd has any authority to make any representation or warranty in relation to this property.

ID Checks
Please note we charge £50 inc VAT for ID Checks and verification for each person financially involved with the transaction when purchasing a property through us.

Referrals
We can recommend excellent local solicitors, mortgage advice and surveyors as required. At no time are you obliged to use any of our services. We recommend Gent Law Ltd for conveyancing, they are a connected company to James Du Pavey Ltd but their advice remains completely independent. We can also recommend other solicitors who pay us a referral fee of £240 inc VAT. For mortgage advice we work with RPUK Ltd, a superb financial advice firm with discounted fees for our clients. RPUK Ltd pay James Du Pavey 25% of their fees. RPUK Ltd is a trading style of Retirement Planning (UK) Ltd, Authorised and Regulated by the Financial Conduct Authority. Your Home is at risk if you do not keep up repayments on a mortgage or other loans secured on it. We receive £120 inc VAT for each survey referral.

Jasmine Horsley

Jasmine Horsley BA (Hons)

Cheadle Branch

01538 711400