Sandford, Whitchurch, SY13

£750,000 Offers Over

5 reasons we love this property

  1. A fantastic property and array of outbuildings sat on a substantial plot of approximately 3.52 acres, offering generous space and entertaining bliss throughout.
  2. Two potential annexes within the property allows for multi generational living, guest houses or creative studios.
  3. Within the main house find four double bedrooms, three bathrooms, great reception spaces and endless character throughout.
  4. Along with a detached annexe, outside you'll find a double garage, two large paddocks, a courtyard, agricultural stores and quality home pub with a connecting games/function room.
  5. Located in Sandford, be close by to the excellent amenities, schools and travel links in Whitchurch and Wem.

About this property

With everything you could possibly need right on your doorstep, you may never want to leave home again, and honestly, why would you? Lower College Farm isn’t just a house; it’s an entire lifestyle!

Read more

With everything you could possibly need right on your doorstep, you may never want to leave home again, and honestly, why would you? Lower College Farm isn’t just a house; it’s an entire lifestyle, a place where entertaining doesn’t just happen… it thrives. Set on approximately 3.5 acres, this impressive four-bedroom, three-bathroom detached home blends charming character with modern comfort. And that’s before you even get to the treasure trove of outbuildings, a detached annexe, home pub, function/games room, double garage and agricultural stores. Yes, your future self is already celebrating.

Step inside the main house and you’ll find a collection of versatile reception rooms, each packed with warmth and personality. Think exposed wooden beams, a roaring log burner and generous bay windows that pour in natural light. The modern open-plan kitchen/diner steals the show where bespoke cabinetry, heaps of storage, integrated appliances, a sociable island and rustic wooden flooring all come together to create the ultimate hub for feasts, festivities and family life. Continue through the ground floor to discover two further spacious living rooms and a stylish bathroom, plus a handy home office, cloakroom and utility room with matching kitchen cabinetry.

To the rear, a second kitchen offers incredible annexe potential thanks to its own entrance and staircase. Upstairs it leads to a double bedroom and bathroom, perfect for guests, grandparents or grown-up kids who haven’t quite flown the nest. The remaining first-floor space hosts three additional double bedrooms, including a master with ensuite, plus excellent built-in storage.

But wait, there’s more. The detached annexe is a dream for anyone with vision: currently a blank canvas, it offers room for an entrance hall/utility, kitchen, living room, three bedrooms and two bathrooms. Multigenerational living? Guest house? Creative studio? You decide, the potential is endless.

Outside, the grounds are nothing short of exceptional. Two expansive paddocks, patio areas, a tarmacked second driveway and peaceful courtyards mean alfresco dining and outdoor relaxation are always on the menu. If you’re an entertainer at heart, the home bar and entertainment spaces will make your day, especially with its own W.C and washing-up room. No curfew. No last orders. Just good times. The large patio features a covered section, making year-round socialising a breeze. A spacious driveway and double garage provide ample parking, while agricultural stores keep ride-on mowers and garden gadgets neatly out of sight. This is countryside living at its finest, generous, stylish, versatile and wonderfully tranquil. Positioned in the rural hamlet of Sandford, you’re perfectly placed for the excellent amenities, schools and travel links of both Whitchurch and Wem.

So, why wait? Come and see this phenomenal property for yourself. Give us a call today to book a viewing on 01785 851886.

Location
Situated in the rural hamlet of Sandford, Shropshire, the property enjoys a countryside setting. The area is known for its historic character, with traditional red-brick homes and period buildings nearby, while still offering convenient access to the market towns of Whitchurch and Wem. It’s an ideal location for buyers seeking village living with easy connections to local amenities.

Agent Note
Please note the vendor has made us aware that there is a public bridle way running through the property.

Council Tax Band: G

Tenure: Freehold

Additional Information

Useful Links
Broadband and mobile phone coverage checker - https://checker.ofcom.org.uk/

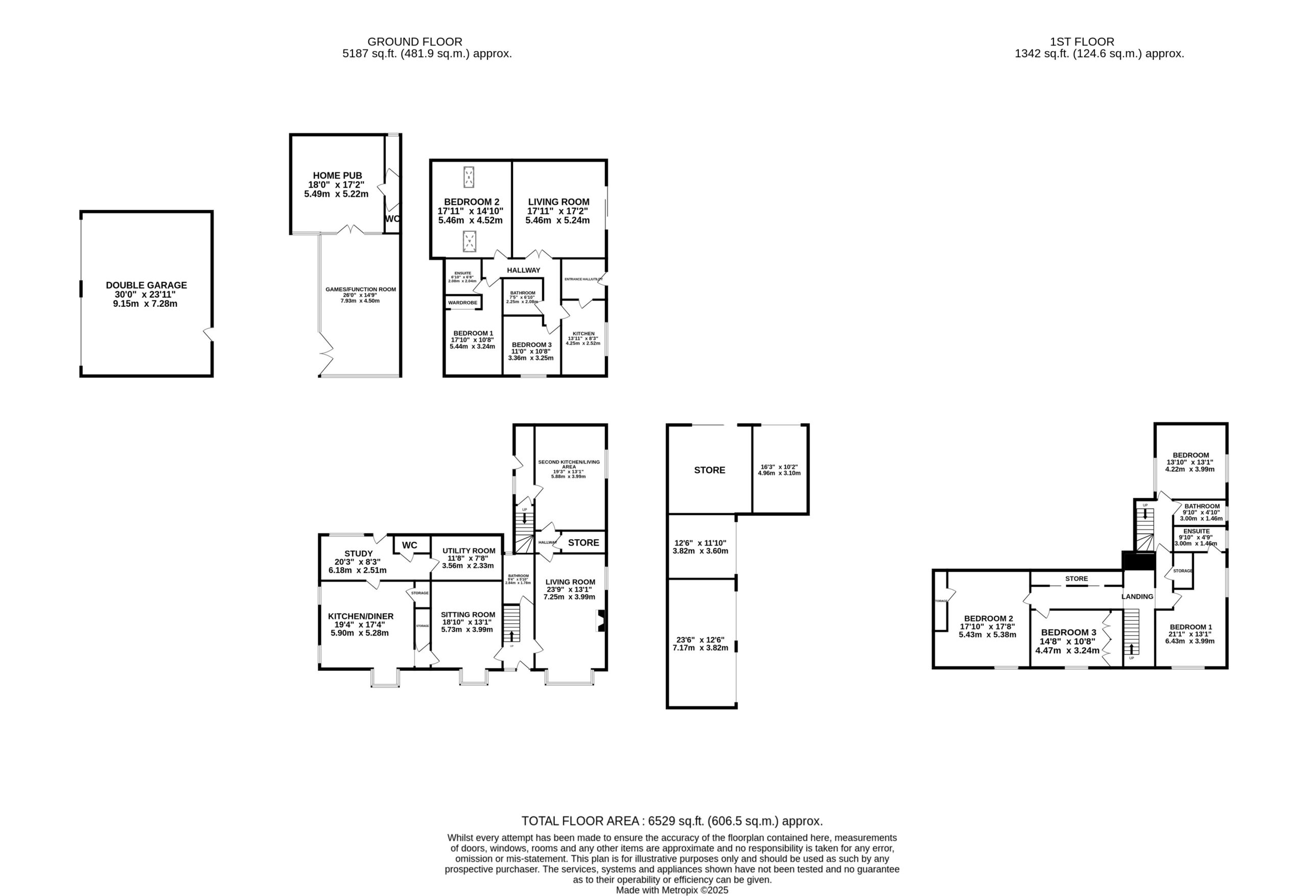
Floor Plans
Please note that floor plans are provided to give an overall impression of the accommodation offered by the property. They are not to be relied upon as a true, scaled and precise representation. Whilst we make every attempt to ensure the accuracy of the floor plan, measurements of doors, windows, rooms and any other item are approximate. This plan is for illustrative purposes only and should only be used as such by any prospective purchaser.

Agent's Notes
Although we try to ensure accuracy, these details are set out for guidance purposes only and do not form part of a contract or offer. Please note that some photographs have been taken with a wide-angle lens. A final inspection prior to exchange of contracts is recommended. No person in the employment of James Du Pavey Ltd has any authority to make any representation or warranty in relation to this property.

ID Checks
Please note we charge £50 inc VAT for ID Checks and verification for each person financially involved with the transaction when purchasing a property through us.

Referrals
We can recommend excellent local solicitors, mortgage advice and surveyors as required. At no time are you obliged to use any of our services. We recommend Gent Law Ltd for conveyancing, they are a connected company to James Du Pavey Ltd but their advice remains completely independent. We can also recommend other solicitors who pay us a referral fee of £240 inc VAT. For mortgage advice we work with RPUK Ltd, a superb financial advice firm with discounted fees for our clients. RPUK Ltd pay James Du Pavey 25% of their fees. RPUK Ltd is a trading style of Retirement Planning (UK) Ltd, Authorised and Regulated by the Financial Conduct Authority. Your Home is at risk if you do not keep up repayments on a mortgage or other loans secured on it. We receive £120 inc VAT for each survey referral.

Lee Davies

Lee Davies MNAEA

Eccleshall Branch

01785 851886