Stock Lane, Wybunbury, CW5

£400,000 Offers Over

6 reasons we love this property

  1. Edge of village position with open field views to the front
  2. Bright dual-aspect lounge with multi-fuel burner
  3. Flexible four/five-bedroom layout, ideal for home working or hobbies
  4. Two upstairs bedrooms with eaves storage; additional craft/dressing rooms
  5. Generous garden plot with raised vegetable beds and summer house
  6. Detached garage with plumbing for washer and space for dryer

About this property

Spacious 4/5 bedroom home in Wybunbury with open field views, flexible living, well-kept gardens, garage, ample parking, and village amenities nearby. Ideal for families or a semi-rural lifestyle.

Read more

Set on the edge of the popular village of Wybunbury, overlooking open fields to the front, this deceptively spacious four/five-bedroom home enjoys a wonderful position on a generous plot and offers highly versatile accommodation alongside well maintained gardens, with direct access nearby to Wybunbury Moss and a variety of picturesque country walks and pathways.

The property is entered via a porch leading into a welcoming entrance hall with stairs to the first floor and useful storage. From here, the main living spaces flow naturally, including a comfortable lounge featuring a multi-fuel burner set into a recessed fireplace. With two windows providing a dual aspect, the room feels particularly bright and airy. A further reception room to the front offers excellent flexibility and is currently used as a sitting room, though it could equally serve as a bedroom or home office if required.

To the rear, the kitchen is well equipped with a range of fitted units, generous work surfaces and a range cooker, making it both practical and ideal for keen cooks. The kitchen also houses a regularly serviced Worcester boiler. This space connects seamlessly to a garden room, currently used as a dining area, which enjoys views over and direct access to the garden. Also on the ground floor is a spacious main bedroom, a further room currently used as a dressing room but easily reinstated as a bedroom if required, and a well-appointed family bathroom featuring an L-shaped bath with shower over.

The first floor offers two additional bedrooms, both benefiting from useful eaves storage and windows to multiple aspects. One of these rooms is currently used as a craft room but could readily revert to a bedroom. A separate WC completes the upstairs accommodation. The property is double glazed throughout.

Outside, the home sits within a generous, well-proportioned plot with gardens to both the front and rear and ample driveway parking to the side for up to 6 cars. The front garden is attractively landscaped with lawn, mature shrubs and flower borders behind a brick boundary wall, while enjoying open field views.

The rear garden is a particular highlight, being south-west facing, enjoying a high degree of privacy and not directly overlooked. It offers an excellent sense of space and seclusion and features patio areas, lawn, raised vegetable beds where the current owner grows a wide variety of produce, mature planting, fruit trees and a small summer house, ideal for hobbies or quiet relaxation. Further enhancing the garden is a toughened glass greenhouse and a charming wildlife pond, creating a haven for keen gardeners and nature lovers alike.

Completing the property is a detached garage with power, lighting and plumbing, providing space for a washing machine and tumble dryer, along with excellent storage or workshop potential.

Overall, this is a wonderfully adaptable home in a sought-after village location, offering space, flexibility, open views, access to beautiful countryside walks and established, private gardens, ideal for families, gardeners or those seeking a peaceful semi-rural lifestyle.

Agents Note: Furniture in Bedrooms 3 and 4 has been digitally removed to illustrate the rooms without furnishings.

Location:

The village of Wybunbury offers a primary school, two public houses, church and post office, all within easy reach of Nantwich town centre. The area is particularly well regarded for its surrounding countryside, with Wybunbury Moss National Nature Reserve and a network of scenic walking routes close by. There are excellent road links to the larger towns of Nantwich, Crewe and Newcastle-under-Lyme, and Junction 16 of the M6 is only 6 miles away providing access to major cities. The nearest train stations are located in Crewe and Nantwich, and the nearest airports are Manchester to the north and Birmingham to the south.

Council Tax Band: D

Tenure: Freehold

Additional Information

Useful Links
Broadband and mobile phone coverage checker - https://checker.ofcom.org.uk/

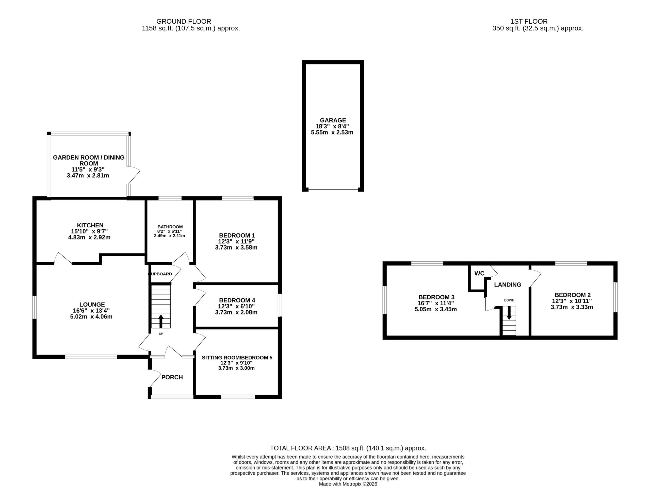
Floor Plans
Please note that floor plans are provided to give an overall impression of the accommodation offered by the property. They are not to be relied upon as a true, scaled and precise representation. Whilst we make every attempt to ensure the accuracy of the floor plan, measurements of doors, windows, rooms and any other item are approximate. This plan is for illustrative purposes only and should only be used as such by any prospective purchaser.

Agent's Notes
Although we try to ensure accuracy, these details are set out for guidance purposes only and do not form part of a contract or offer. Please note that some photographs have been taken with a wide-angle lens. A final inspection prior to exchange of contracts is recommended. No person in the employment of James Du Pavey Ltd has any authority to make any representation or warranty in relation to this property.

ID Checks
Please note we charge £50 inc VAT for ID Checks and verification for each person financially involved with the transaction when purchasing a property through us.

Referrals
We can recommend excellent local solicitors, mortgage advice and surveyors as required. At no time are you obliged to use any of our services. We recommend Gent Law Ltd for conveyancing, they are a connected company to James Du Pavey Ltd but their advice remains completely independent. We can also recommend other solicitors who pay us a referral fee of £240 inc VAT. For mortgage advice we work with RPUK Ltd, a superb financial advice firm with discounted fees for our clients. RPUK Ltd pay James Du Pavey 25% of their fees. RPUK Ltd is a trading style of Retirement Planning (UK) Ltd, Authorised and Regulated by the Financial Conduct Authority. Your Home is at risk if you do not keep up repayments on a mortgage or other loans secured on it. We receive £120 inc VAT for each survey referral.

James Latham

James Latham BA (Hons)

Nantwich Branch

01270 445678