Sydney Road, Crewe, CW1

£250,000 Offers Over

5 reasons we love this property

  1. Three-bedroom semi-detached townhouse arranged over three spacious floors.
  2. Impressive principal suite with built-in wardrobes and ensuite featuring a dual-headed shower.
  3. Modern kitchen/diner with fully integrated appliances.
  4. Bright and generous living room, ideal for relaxing and entertaining.
  5. Low-maintenance private garden, driveway for multiple vehicles, and garage.

About this property

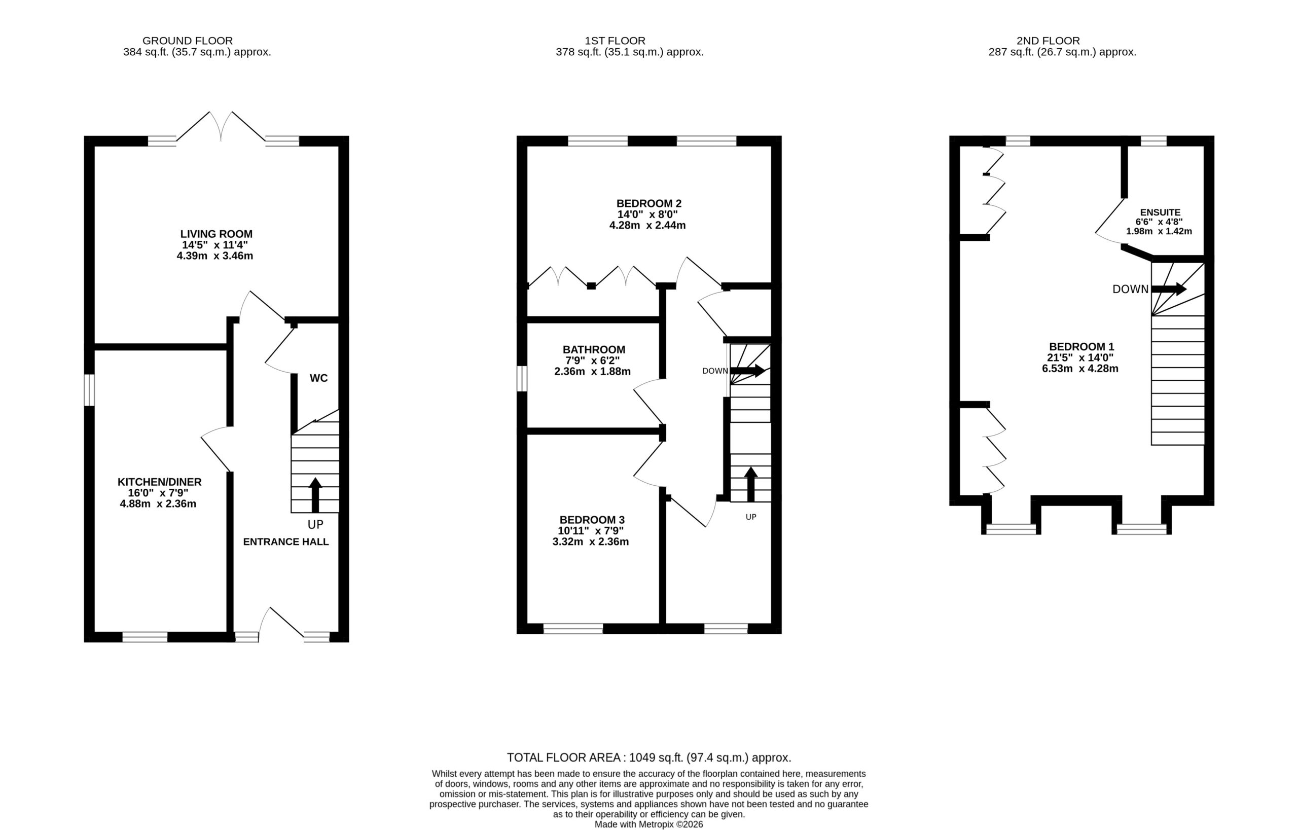
This beautifully presented three-bedroom semi-detached townhouse on the outskirts of Crewe offers generous, well-balanced accommodation arranged over three floors.

Read more

This beautifully presented three-bedroom semi-detached townhouse on the outskirts of Crewe offers generous, well-balanced accommodation arranged over three floors, perfectly suited to modern family living with a strong emphasis on space, comfort, and practicality.

Upon entering, you are welcomed into a bright entrance hall that immediately creates a sense of space and flow. A conveniently located ground floor WC adds everyday practicality, ideal for both residents and guests alike. The living room is a standout feature—spacious, bright, and inviting, with large windows allowing natural light to flood the room, creating a warm and comfortable environment for relaxing or entertaining.

Also on the ground floor is the well-appointed kitchen/diner, thoughtfully designed with both functionality and sociability in mind. It features a comprehensive range of integrated appliances, including a fridge, freezer, washing machine, dishwasher, oven, and a four-ring gas hob. With ample worktop space, storage, and room for dining, this area provides a practical yet welcoming setting for everyday meals and social gatherings.

The first floor hosts two well-proportioned bedrooms and a family bathroom. Bedroom two is a generously sized double and benefits from built-in wardrobes, offering excellent storage while maintaining a clean and uncluttered feel. Bedroom three is a versatile space, ideal as a child’s bedroom, guest room, or home office. The family bathroom is well-appointed and features a bath, providing both comfort and practicality for everyday use.

Occupying the entire second floor, the principal bedroom offers an impressive and private retreat. This spacious room is enhanced by extensive built-in wardrobes, providing superb storage solutions without compromising on floor space. The ensuite adds a touch of luxury, featuring a contemporary shower with a dual shower head—perfect for both convenience and comfort.

Externally, the property continues to impress. The rear garden is a fantastic low-maintenance space, offering a peaceful and private setting ideal for relaxing, entertaining, or enjoying outdoor dining with minimal upkeep required. To the front, a spacious shared driveway provides ample off-road parking for up to three cars.

The semi-detached garage further enhances the home’s practicality, featuring a boarded loft space, racking, and generous storage capacity, along with both internal and external lighting—making it ideal for secure parking, storage, or workshop use.

Altogether, this attractive semi-detached townhouse in Crewe combines spacious living, modern convenience, and a flexible layout, making it an excellent choice for families or buyers seeking a home ready to move straight into.

Location:

The property is situated in the railway town of Crewe, just a few miles from the historic market town of Nantwich and within a short drive of Sandbach. Crewe offers an extensive range of amenities, including shopping, educational, and recreational facilities, as well as excellent transport and commuter links via the A500 and Junction 16 of the M6 motorway. Crewe mainline railway station further enhances connectivity, providing direct access to major cities and towns across the country.

Council Tax Band: C

Tenure: Leasehold

Additional Information

Useful Links
Broadband and mobile phone coverage checker - https://checker.ofcom.org.uk/

Floor Plans
Please note that floor plans are provided to give an overall impression of the accommodation offered by the property. They are not to be relied upon as a true, scaled and precise representation. Whilst we make every attempt to ensure the accuracy of the floor plan, measurements of doors, windows, rooms and any other item are approximate. This plan is for illustrative purposes only and should only be used as such by any prospective purchaser.

Agent's Notes
Although we try to ensure accuracy, these details are set out for guidance purposes only and do not form part of a contract or offer. Please note that some photographs have been taken with a wide-angle lens. A final inspection prior to exchange of contracts is recommended. No person in the employment of James Du Pavey Ltd has any authority to make any representation or warranty in relation to this property.

ID Checks
Please note we charge £50 inc VAT for ID Checks and verification for each person financially involved with the transaction when purchasing a property through us.

Referrals
We can recommend excellent local solicitors, mortgage advice and surveyors as required. At no time are you obliged to use any of our services. We recommend Gent Law Ltd for conveyancing, they are a connected company to James Du Pavey Ltd but their advice remains completely independent. We can also recommend other solicitors who pay us a referral fee of £240 inc VAT. For mortgage advice we work with RPUK Ltd, a superb financial advice firm with discounted fees for our clients. RPUK Ltd pay James Du Pavey 25% of their fees. RPUK Ltd is a trading style of Retirement Planning (UK) Ltd, Authorised and Regulated by the Financial Conduct Authority. Your Home is at risk if you do not keep up repayments on a mortgage or other loans secured on it. We receive £120 inc VAT for each survey referral.

James Latham

James Latham BA (Hons)

Nantwich Branch

01270 445678