The Cedar, Trentham Fields, New Inn Lane, Trentham

£472,495

5 reasons we love this property

  1. Modern four-bedroom home with a calm, harmonious layout
  2. Light-filled kitchen & dining space designed for connection and ease
  3. Tranquil main bedroom with fitted wardrobes and a private en-suite
  4. Flexible additional bedrooms for guests, home-working or creative use
  5. Energy-efficient design with a thoughtful, contemporary finish throughout

About this property

The Cedar is a beautifully designed four-bedroom home where modern living finds its perfect rhythm.

Read more

The Cedar is a beautifully designed four-bedroom home where modern living finds its perfect rhythm. Understated in style yet rich in comfort, Cedar is crafted for those who appreciate tranquillity, light and quiet sophistication.

The kitchen and dining area create a harmonious space anchored in natural light and clean design. Whether hosting or unwinding, this is a room that adapts effortlessly, spacious, welcoming and thoughtfully arranged.

A separate utility room ensures daily tasks stay organised and discreet, while the rest of the ground floor offers a calm, intuitive layout that supports modern life without complication.

Upstairs, the main bedroom feels instantly serene, complete with fitted wardrobes and a private en-suite for a touch of indulgence. The three additional bedrooms offer flexibility for sleep, work, guests or creativity.

Every space feels intentional, gently balancing openness with the comforting definition of a well-designed home.

The Cedar is the kind of home that quietly elevates the everyday, modern, sustainable, beautifully proportioned and filled with possibility.

It’s a home that doesn’t need to shout; its calm confidence speaks for itself.

Tenure: Freehold

Additional Information

Useful Links
Broadband and mobile phone coverage checker - https://checker.ofcom.org.uk/

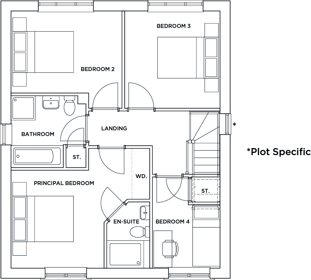
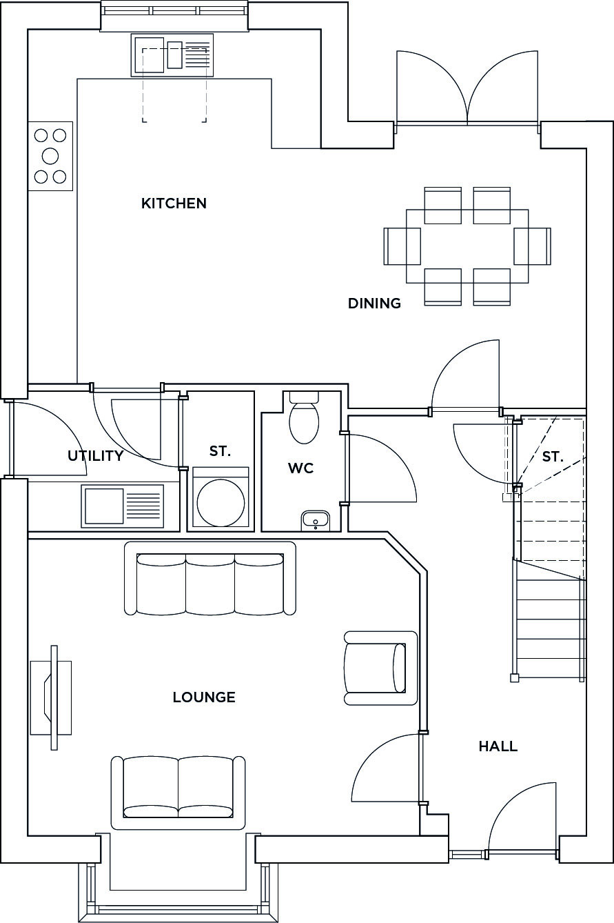
Floor Plans
Please note that floor plans are provided to give an overall impression of the accommodation offered by the property. They are not to be relied upon as a true, scaled and precise representation. Whilst we make every attempt to ensure the accuracy of the floor plan, measurements of doors, windows, rooms and any other item are approximate. This plan is for illustrative purposes only and should only be used as such by any prospective purchaser.

Agent's Notes
Although we try to ensure accuracy, these details are set out for guidance purposes only and do not form part of a contract or offer. Please note that some photographs have been taken with a wide-angle lens. A final inspection prior to exchange of contracts is recommended. No person in the employment of James Du Pavey Ltd has any authority to make any representation or warranty in relation to this property.

ID Checks
Please note we charge £50 inc VAT for ID Checks and verification for each person financially involved with the transaction when purchasing a property through us.

Referrals
We can recommend excellent local solicitors, mortgage advice and surveyors as required. At no time are you obliged to use any of our services. We recommend Gent Law Ltd for conveyancing, they are a connected company to James Du Pavey Ltd but their advice remains completely independent. We can also recommend other solicitors who pay us a referral fee of £240 inc VAT. For mortgage advice we work with RPUK Ltd, a superb financial advice firm with discounted fees for our clients. RPUK Ltd pay James Du Pavey 25% of their fees. RPUK Ltd is a trading style of Retirement Planning (UK) Ltd, Authorised and Regulated by the Financial Conduct Authority. Your Home is at risk if you do not keep up repayments on a mortgage or other loans secured on it. We receive £120 inc VAT for each survey referral.

Catrina Horsley

Catrina Horsley MNAEA

Stone Branch

01785 814917