Waters Upton, Telford, TF6

£680,000

5 reasons we love this property

  1. A beautifully presented newly built four bedroom luxury home located in Waters Upton complete with high quality finishes throughout and expansive living space.
  2. The heart of the home is the spectacular open plan Kitchen/Living/Dining area with Bosch appliances and bi-folding doors out to the rear patio.
  3. A large plot with mature borders offers an abundance of parking options and an oversized double attached garage with an electric roller shutter door.
  4. Surrounded by rolling Shropshire countryside offering stunning views far and wide, yet within easy reach of nearby towns such as Telford and Shrewsbury.
  5. The home is heated by a gas Baxi boiler which powers the underfloor heating throughout the ground floor and radiator heating to the upper floor.

About this property

Read more

Welcome to your new forever home in Waters Upton, where luxury meets practicality and every square foot is designed to make you feel like you’ve arrived. This newly built four bedroom detached house is so beautifully presented you might wonder if you’ve accidentally wandered onto a glossy magazine shoot. Step inside and be greeted by a spectacular open plan kitchen, living, and dining area, featuring Bosch appliances that are so shiny you’ll want to cook just to show them off (even if your signature dish is beans on toast). The bi-folding doors open up to the rear patio, perfect for those moments when you want to impress guests by seamlessly blending indoor and outdoor living or just need a quick escape route from your in-laws. Need a spot for your ever expanding car collection? The oversized double garage, complete with an electric roller shutter door, will house your vehicles, bikes, or perhaps that rowing machine you swore you’d use. Inside, the spacious lounge boasts a large window that floods the room with natural light, so you can bask in the glow of your own good taste. The utility room, conveniently located off the kitchen, comes equipped with a washing machine and dryer, making laundry less of a chore and more of a triumph. Two of the four bedrooms feature en suite facilities, including one conveniently located on the ground floor, ideal for an older relative, a teenager seeking independence, or anyone who likes the idea of rolling out of bed and straight into the shower. The home is kept toasty by a gas Baxi boiler, with underfloor heating downstairs perfect for those chilly Shropshire mornings and radiator heating upstairs. Externally the large plot and elevated position encapsulates the fact that you are surrounded by rolling countryside. You’ll enjoy stunning views that stretch for miles, yet you’re just a short drive from Telford and Shrewsbury. So you can enjoy the peace and quiet without sacrificing your Deliveroo options. With high quality finishes throughout and expansive living space, this home is ready for you to move in, put your feet up, and wonder why you didn’t make the leap to luxury sooner. Book a viewing today and prepare to fall in love, just don’t blame us if you never want to leave.

Location
Waters Upton offers a wonderful balance of rural peace and everyday convenience. Surrounded by beautiful Shropshire countryside, the village has a friendly, close-knit atmosphere where community events and local traditions bring people together. Despite its tranquil setting, it benefits from excellent transport links, with the A442 nearby providing easy road access to Telford, Shrewsbury, and beyond, making commuting and day trips simple. It’s an ideal place for anyone who values space, scenery, strong community spirit, and practical connectivity.

Council Tax Band: F

Tenure: Freehold

Additional Information

Useful Links
Broadband and mobile phone coverage checker - https://checker.ofcom.org.uk/

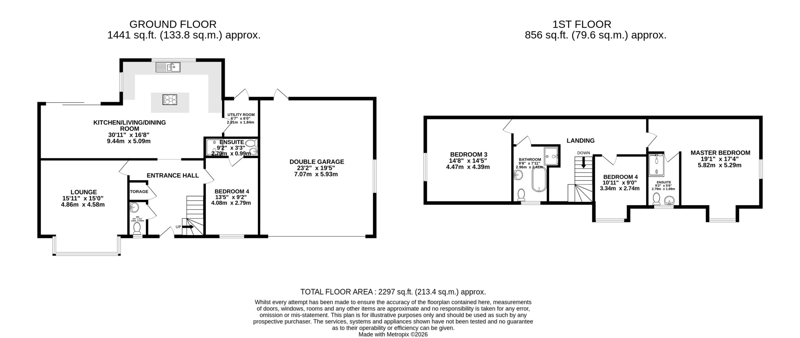
Floor Plans
Please note that floor plans are provided to give an overall impression of the accommodation offered by the property. They are not to be relied upon as a true, scaled and precise representation. Whilst we make every attempt to ensure the accuracy of the floor plan, measurements of doors, windows, rooms and any other item are approximate. This plan is for illustrative purposes only and should only be used as such by any prospective purchaser.

Agent's Notes
Although we try to ensure accuracy, these details are set out for guidance purposes only and do not form part of a contract or offer. Please note that some photographs have been taken with a wide-angle lens. A final inspection prior to exchange of contracts is recommended. No person in the employment of James Du Pavey Ltd has any authority to make any representation or warranty in relation to this property.

ID Checks
Please note we charge £50 inc VAT for ID Checks and verification for each person financially involved with the transaction when purchasing a property through us.

Referrals
We can recommend excellent local solicitors, mortgage advice and surveyors as required. At no time are you obliged to use any of our services. We recommend Gent Law Ltd for conveyancing, they are a connected company to James Du Pavey Ltd but their advice remains completely independent. We can also recommend other solicitors who pay us a referral fee of £240 inc VAT. For mortgage advice we work with RPUK Ltd, a superb financial advice firm with discounted fees for our clients. RPUK Ltd pay James Du Pavey 25% of their fees. RPUK Ltd is a trading style of Retirement Planning (UK) Ltd, Authorised and Regulated by the Financial Conduct Authority. Your Home is at risk if you do not keep up repayments on a mortgage or other loans secured on it. We receive £120 inc VAT for each survey referral.

Lee Davies

Lee Davies MNAEA

Eccleshall Branch

01785 851886