Wellington Road, Nantwich, CW5

£375,000 Guide Price

6 reasons we love this property

  1. Prime location: Within walking distance of Nantwich town centre, local amenities, and excellent schools
  2. Spacious period accommodation: Features high ceilings, picture rails, dado rails, and decorative coving throughout
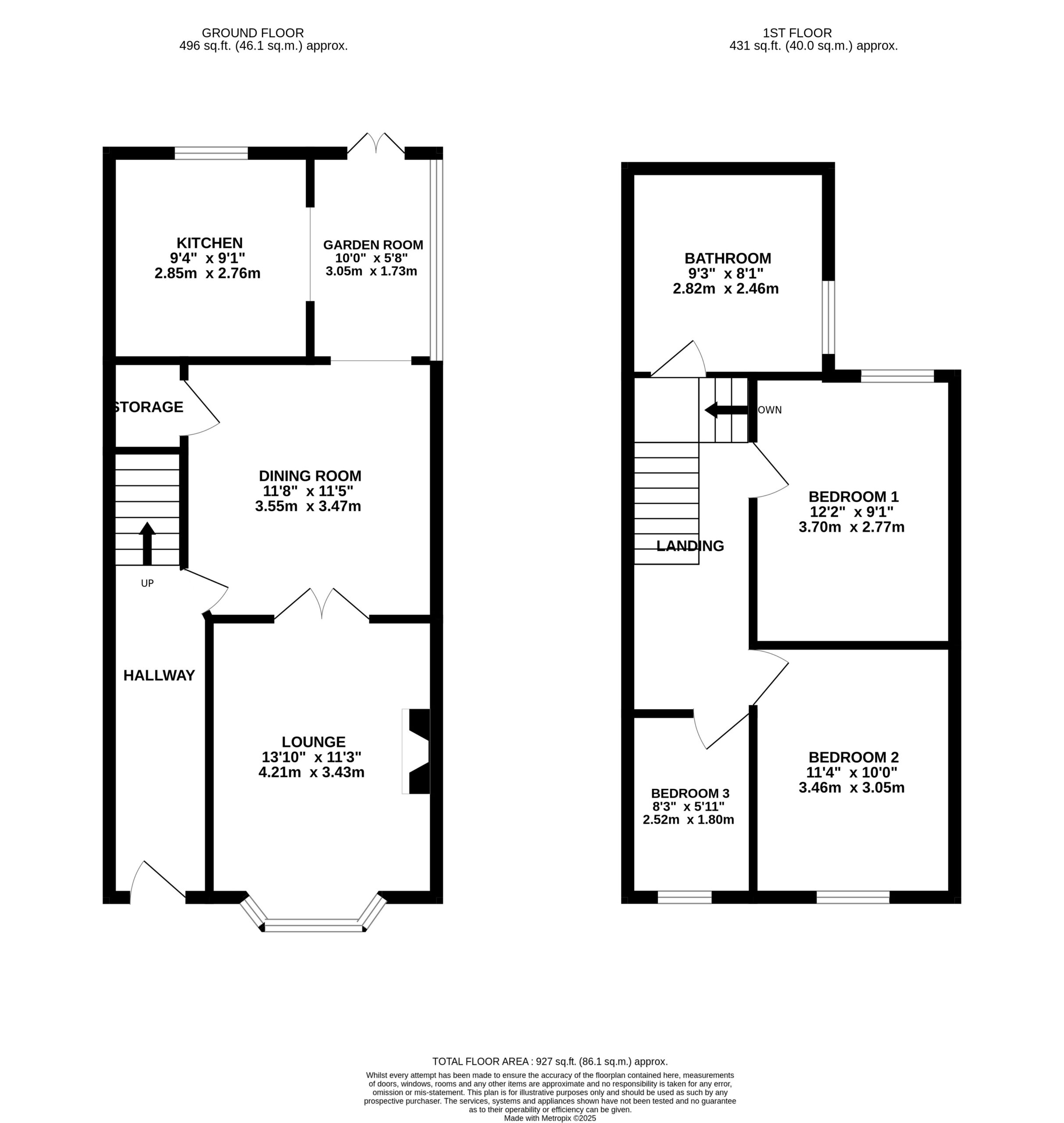
  3. Well-equipped kitchen & garden room: Modern fitted kitchen with space for appliances, flowing into a light-filled garden room
  4. Comfortable living spaces: Separate lounge with log-burner-effect fire and a generous dining room with fireplace
  5. Three versatile bedrooms: Two doubles with fitted wardrobes and a flexible single bedroom, plus a family bathroom with separate shower and bath
  6. Outdoor space & parking: Private rear garden, charming courtyard with outside WC, and parking for two cars

About this property

Spacious period home near Nantwich centre with original features, modern comforts, 3 bedrooms, garden room, parking, and private garden. Ideal for families or professionals.

Read more

This exceptional period property is ideally located within easy walking distance of Nantwich town centre, Nantwich train station, local amenities, and highly regarded schools, offering a rare combination of spacious accommodation, high ceilings, and a wealth of original period features, while enjoying all the comforts of modern living. With its versatile layout and excellent location, this home is sure to appeal to an array of people, from families to professionals, or anyone seeking a stylish, practical home in a convenient setting.

The property is double glazed throughout and benefits from gas central heating, providing a warm, comfortable, and energy-efficient living environment. In addition, the property has owned solar panels installed. These are subject to an existing contract with approximately 10 years remaining, under which the income generated is returned to the vendors.

Inside, the home immediately impresses with its bright, airy rooms and elegant period detailing, including picture rails, dado rails, and decorative coving, creating a sense of timeless style throughout. The fitted kitchen is practical and well-equipped, offering a range of wall and base units, space for a fridge freezer, a four-ring gas hob with electric oven, and a stainless steel sink. It opens seamlessly into the garden room, a versatile space flooded with natural light, ideal for casual dining, relaxing, or enjoying views over the garden.

The dining room is generously proportioned and features a beautiful fireplace with a wooden surround, providing a welcoming setting for family meals or entertaining guests. The separate lounge is equally impressive, with a log-burner-effect fire, picture rails, and high ceilings that amplify the sense of space and comfort. The hallway, with its decorative coving and dado rail, sets the tone for the elegant living areas beyond.

Upstairs, there are three well-proportioned bedrooms. Two spacious doubles include fitted wardrobes, offering excellent storage, while the third room is ideal as a single bedroom, nursery, home office, or dressing room. The family bathroom is generously sized and well-appointed, featuring a separate electric shower, bath, WC, and wash basin.

Externally, the property boasts parking for two cars at the rear, a private and beautifully maintained rear garden, and a pretty courtyard with an outside WC, adding practicality and charm. The combination of outdoor spaces provides flexibility for relaxing, entertaining, or gardening.

This home combines period charm with modern comfort, offering an exceptional opportunity to acquire a property that is both stylish and versatile in one of Nantwich’s most convenient and desirable locations. With its light-filled rooms, elegant features, and excellent transport links, this property must be viewed to be fully appreciated.

Location:

Ideally situated and within walking distance of the historic market town of Nantwich which is renowned for its beautiful architecture and character and offers a good selection of independent shops, eateries, restaurants and bars but also provides more extensive facilities including supermarkets and a leisure centre. Nantwich is conveniently placed for commuters, with a network of excellent road links including access to the M6 motorway network via the A500, and Crewe Railway Station which offers direct access into London, Manchester, Liverpool, and Birmingham.

Council Tax Band: C

Tenure: Freehold

Additional Information

Useful Links
Broadband and mobile phone coverage checker - https://checker.ofcom.org.uk/

Floor Plans
Please note that floor plans are provided to give an overall impression of the accommodation offered by the property. They are not to be relied upon as a true, scaled and precise representation. Whilst we make every attempt to ensure the accuracy of the floor plan, measurements of doors, windows, rooms and any other item are approximate. This plan is for illustrative purposes only and should only be used as such by any prospective purchaser.

Agent's Notes
Although we try to ensure accuracy, these details are set out for guidance purposes only and do not form part of a contract or offer. Please note that some photographs have been taken with a wide-angle lens. A final inspection prior to exchange of contracts is recommended. No person in the employment of James Du Pavey Ltd has any authority to make any representation or warranty in relation to this property.

ID Checks
Please note we charge £50 inc VAT for ID Checks and verification for each person financially involved with the transaction when purchasing a property through us.

Referrals
We can recommend excellent local solicitors, mortgage advice and surveyors as required. At no time are you obliged to use any of our services. We recommend Gent Law Ltd for conveyancing, they are a connected company to James Du Pavey Ltd but their advice remains completely independent. We can also recommend other solicitors who pay us a referral fee of £240 inc VAT. For mortgage advice we work with RPUK Ltd, a superb financial advice firm with discounted fees for our clients. RPUK Ltd pay James Du Pavey 25% of their fees. RPUK Ltd is a trading style of Retirement Planning (UK) Ltd, Authorised and Regulated by the Financial Conduct Authority. Your Home is at risk if you do not keep up repayments on a mortgage or other loans secured on it. We receive £120 inc VAT for each survey referral.

James Latham

James Latham BA (Hons)

Nantwich Branch

01270 445678