Whimbrel Park, Stafford, ST16

£345,000

5 reasons we love this property

  1. Detached corner-plot home in Stafford with excellent commuting links and nearby schools and supermarkets.
  2. Spacious living room with a bay window that brings in lots of natural light.
  3. Modern kitchen/diner with integrated appliances, breakfast bar, and French doors to the rear garden.
  4. Four double bedrooms, including a master bedroom with ensuite and double shower.
  5. Beautifully presented throughout, with an Indian stone patio, summer house, detached garage, and cul-de-sac location.

About this property

Modern 4-bed detached home on a corner plot in Stafford. Features spacious kitchen/diner, ensuite master, utility, garage, garden, and great transport links. Move-in ready for families.

Read more

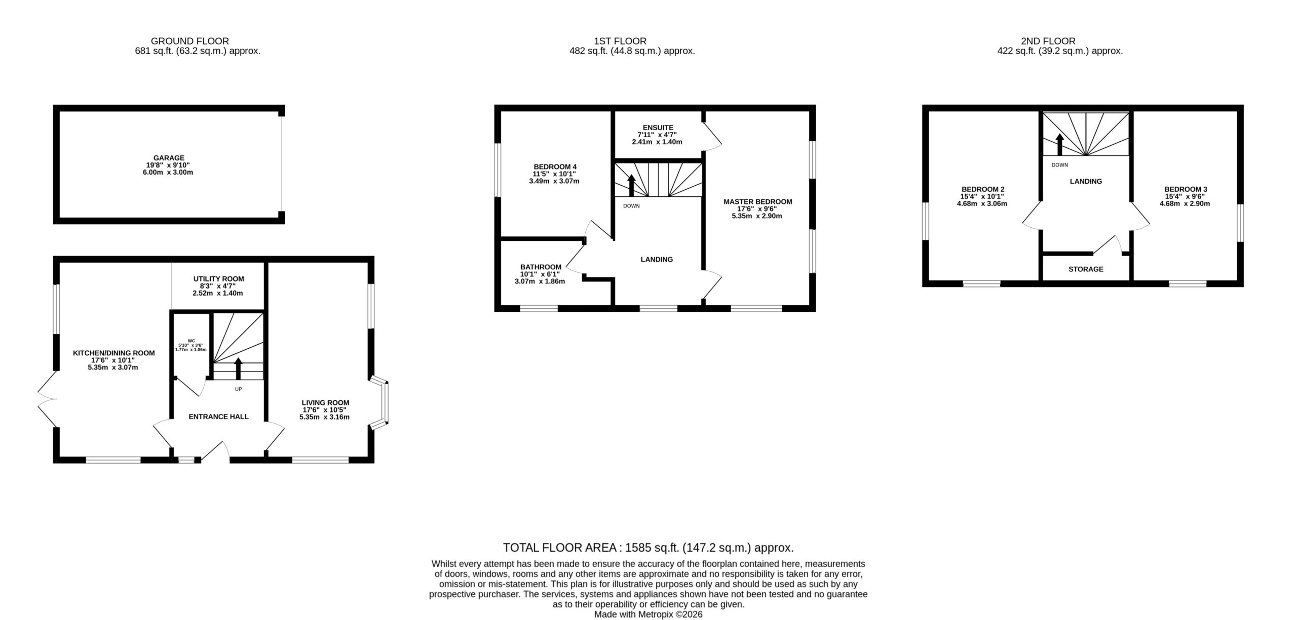
Set on a desirable corner plot in Stafford, this beautifully presented detached home offers modern living across three well-designed floors, perfectly suited for families and commuters alike, with excellent transport links, nearby supermarkets, and highly regarded schools within easy reach.

Upon entering, you are welcomed by a bright entrance hall featuring stylish Karndean flooring, leading through to a generous living room where a charming bay window allows natural light to pour in, creating a warm and inviting atmosphere. The heart of the home is the contemporary kitchen/diner, complete with tiled flooring, ample work surfaces, a breakfast bar, integrated appliances, and a four-ring gas hob with extractor fan above, alongside plentiful storage to keep everything neatly organised.

French doors open seamlessly onto the rear garden, where an Indian stone patio and a delightful summer house provide the perfect setting for relaxing or entertaining.

The ground floor also benefits from a convenient W/C and a separate utility room with space for a washer and dryer.

A turned staircase rises to a spacious landing, giving access to four well-proportioned double bedrooms, including a superb master suite with its own ensuite featuring a double shower, while the remaining bedrooms are served by a modern family bathroom with a separate shower.

Externally, the property is further enhanced by a detached garage and its peaceful cul-de-sac setting. Presented in excellent condition throughout, this home is modern, clean, and truly ready to move into.

Council Tax Band: D

Tenure: Freehold

Additional Information

Useful Links
Broadband and mobile phone coverage checker - https://checker.ofcom.org.uk/

Floor Plans
Please note that floor plans are provided to give an overall impression of the accommodation offered by the property. They are not to be relied upon as a true, scaled and precise representation. Whilst we make every attempt to ensure the accuracy of the floor plan, measurements of doors, windows, rooms and any other item are approximate. This plan is for illustrative purposes only and should only be used as such by any prospective purchaser.

Agent's Notes
Although we try to ensure accuracy, these details are set out for guidance purposes only and do not form part of a contract or offer. Please note that some photographs have been taken with a wide-angle lens. A final inspection prior to exchange of contracts is recommended. No person in the employment of James Du Pavey Ltd has any authority to make any representation or warranty in relation to this property.

ID Checks
Please note we charge £50 inc VAT for ID Checks and verification for each person financially involved with the transaction when purchasing a property through us.

Referrals
We can recommend excellent local solicitors, mortgage advice and surveyors as required. At no time are you obliged to use any of our services. We recommend Gent Law Ltd for conveyancing, they are a connected company to James Du Pavey Ltd but their advice remains completely independent. We can also recommend other solicitors who pay us a referral fee of £240 inc VAT. For mortgage advice we work with RPUK Ltd, a superb financial advice firm with discounted fees for our clients. RPUK Ltd pay James Du Pavey 25% of their fees. RPUK Ltd is a trading style of Retirement Planning (UK) Ltd, Authorised and Regulated by the Financial Conduct Authority. Your Home is at risk if you do not keep up repayments on a mortgage or other loans secured on it. We receive £120 inc VAT for each survey referral.

Lee Davies

Lee Davies MNAEA

Eccleshall Branch

01785 851886