Bibby Street, Rode Heath, ST7

£265,000

7 reasons we love this property

  1. Peaceful canalside location with scenic canal walks right on the doorstep
  2. Generous kitchen/diner with bespoke shaker-style units, solid oak worktops and integrated appliances
  3. Cosy lounge with log burner, creating a warm focal point for the living space
  4. Two double bedrooms, including a principal bedroom with en-suite wet room and excellent fitted storage
  5. Stylish bathroom featuring a traditional cast iron bath, vanity unit and modern fittings
  6. Low-maintenance rear garden with insulated timber-clad home office with light and power, ideal for home working
  7. Gas Central heating and wooden double glazing throughout

About this property

Beautiful canalside home with character features, log burner, bespoke kitchen, two bedrooms, en-suite, garden, home office, and excellent access to schools, M6, and village amenities.

Read more

***Offered for sale with No Chain***

Situated in a peaceful canalside location, this beautifully presented home enjoys scenic canal walks right on the doorstep while remaining conveniently placed for local schools and excellent M6 transport links.

The property is accessed via a welcoming porch and benefits from gas central heating and wooden double glazing throughout.

The ground floor offers well-proportioned and characterful living space. The lounge provides a warm and inviting space to relax, featuring a charming log burner which creates a cosy focal point, perfect for colder evenings. From here, the property flows through to a spacious kitchen/diner, forming the heart of the home.

The kitchen features bespoke shaker-style fitted units with solid oak worktops, a Belfast sink, and a range of integrated appliances including a fridge freezer, additional integrated fridge, and washing machine, along with space for a Range cooker. A Velux window with remote control opening floods the space with natural light, while engineered oak flooring adds warmth and quality throughout. A charming stable door leads out to the garden.

The kitchen also incorporates a useful utility area fitted with granite worktops, providing additional preparation space and practicality for everyday living.

The ground floor bathroom is finished to a high standard and includes a traditional cast iron bath, modern WC, and wash basin set within a vanity unit with additional storage.

Upstairs, the principal bedroom is well equipped with excellent storage, including shelving within a built-in wardrobe and a wardrobe with additional storage over the stairs, and benefits from a private en-suite wet room comprising a mains-fed shower, WC and wash basin. Bedroom two is also generously sized and benefits from a walk-in wardrobe fitted with both hanging rails and shelving.

Externally, the front of the property features an attractive garden with a bike shed and a coal/log store, creating a welcoming approach to the home.

To the rear, the garden offers a pleasant outdoor space with paved seating areas and planted borders, ideal for relaxing or entertaining.

At the end of the garden is a fully insulated timber-clad home office, complete with light and power, making it ideal for home working, hobbies, or a studio.

This delightful home combines character features, modern fittings and a tranquil canalside setting, making it an ideal choice for buyers seeking both comfort and convenience.

Location:

Rode Heath is a desirable Cheshire village known for its canalside charm, welcoming community, and excellent access to countryside walks. The village offers a well-regarded primary school, a convenience store, local pubs, and is just a short drive from the amenities of Sandbach and Alsager. With easy road links to the M6 and strong connections to nearby towns, Rode Heath is ideal for families and commuters alike seeking a balance of rural peace and convenience.

Council Tax Band: B

Tenure: Freehold

Additional Information

Useful Links
Broadband and mobile phone coverage checker - https://checker.ofcom.org.uk/

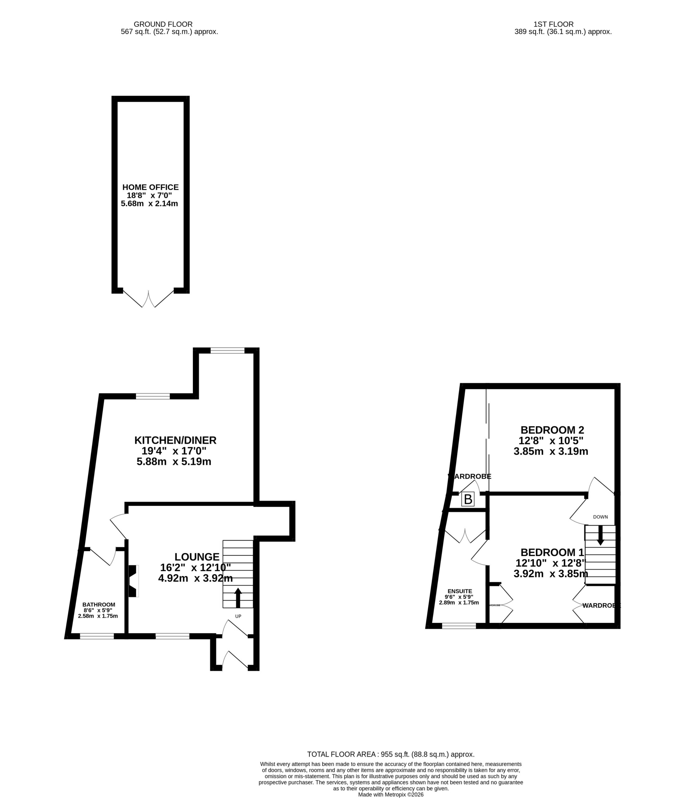
Floor Plans
Please note that floor plans are provided to give an overall impression of the accommodation offered by the property. They are not to be relied upon as a true, scaled and precise representation. Whilst we make every attempt to ensure the accuracy of the floor plan, measurements of doors, windows, rooms and any other item are approximate. This plan is for illustrative purposes only and should only be used as such by any prospective purchaser.

Agent's Notes
Although we try to ensure accuracy, these details are set out for guidance purposes only and do not form part of a contract or offer. Please note that some photographs have been taken with a wide-angle lens. A final inspection prior to exchange of contracts is recommended. No person in the employment of James Du Pavey Ltd has any authority to make any representation or warranty in relation to this property.

ID Checks
Please note we charge £50 inc VAT for ID Checks and verification for each person financially involved with the transaction when purchasing a property through us.

Referrals
We can recommend excellent local solicitors, mortgage advice and surveyors as required. At no time are you obliged to use any of our services. We recommend Gent Law Ltd for conveyancing, they are a connected company to James Du Pavey Ltd but their advice remains completely independent. We can also recommend other solicitors who pay us a referral fee of £240 inc VAT. For mortgage advice we work with RPUK Ltd, a superb financial advice firm with discounted fees for our clients. RPUK Ltd pay James Du Pavey 25% of their fees. RPUK Ltd is a trading style of Retirement Planning (UK) Ltd, Authorised and Regulated by the Financial Conduct Authority. Your Home is at risk if you do not keep up repayments on a mortgage or other loans secured on it. We receive £120 inc VAT for each survey referral.

James Latham

James Latham BA (Hons)

Nantwich Branch

01270 445678