Plot 34 Birchwood Grove, Cheadle

£365,000

5 reasons we love this property

  1. Built by Walton Homes, Augustus Fields is a desirable development in the heart of the market town of Cheadle!
  2. The Leighton: A fabulous newly built four bedroom detached family home offering excellent bedrooms and two bathrooms. Multiple plots available.
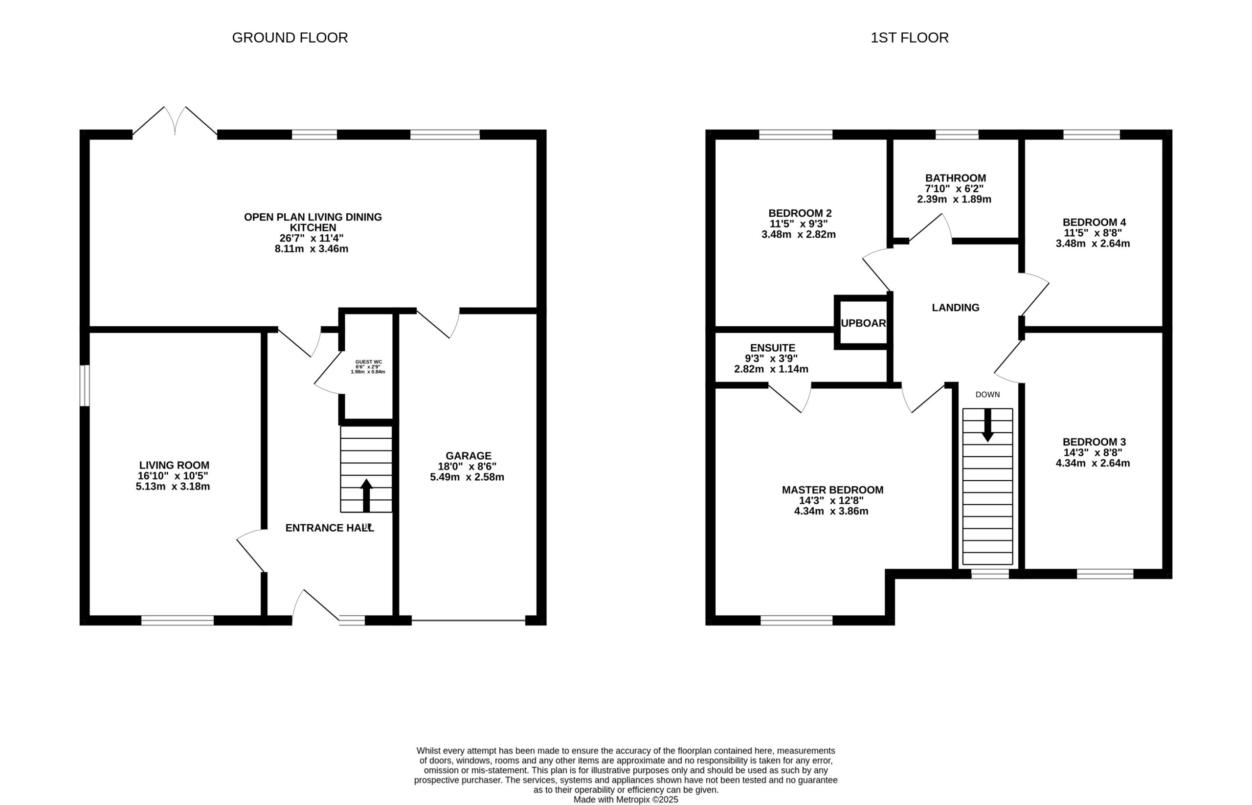
  3. Lovely living space including a generous living room and open plan living dining kitchen, guest WC and integral garage.
  4. Outside benefits from ample parking with integral garage, along with a fully enclosed rear garden with lush green lawn and patio seating area.
  5. Located close to excellent amenities with great Primary and Secondary Schools, handy commuter links and stunning countryside.

Virtual tour

About this property

Step into stylish, stress-free living with this stunning new-build home designed for modern comfort and effortless elegance!

Read more

STAMP DUTY PAID UP TO £8,250!! Step into stylish, stress-free living with this stunning new-build home designed for modern comfort and effortless elegance! The Leighton, a fabulous four bedroom detached family home positioned on the popular Augustus Fields development in the heart of Cheadle. Glide in through the front door where a long entrance hallway welcomes you in. Located to the front is a spacious living room perfect for relaxing and kicking back after a long day whilst to the rear is a beautiful open plan living dining kitchen overlooking the garden. The kitchen is cleverly designed having built in electric oven and integrated fridge freezer with ample worktop space leading to an impressive space for family and friends to gather. A useful Guest WC and integral garage with built in utility area complete the downstairs space. Up on the first floor are four well appointed bedrooms with the largest featuring contemporary en-suite shower room whilst the modern family bathroom finishes the accommodation. Externally we have ample off road parking including a tarmac driveway with a good sized rear garden mainly laid to lawn. Augustus Fields lies close to the heart of Cheadle, being walking distance to an array of independent shops, bars and cafes whilst being close to excellent Primary and Secondary Schools, fantastic commuter links whilst being on the doorstep of the Peak District with stunning countryside to explore, I can assure you, you’ll never be bored!

Tenure: Freehold

Additional Information

Useful Links
Broadband and mobile phone coverage checker - https://checker.ofcom.org.uk/

Floor Plans
Please note that floor plans are provided to give an overall impression of the accommodation offered by the property. They are not to be relied upon as a true, scaled and precise representation. Whilst we make every attempt to ensure the accuracy of the floor plan, measurements of doors, windows, rooms and any other item are approximate. This plan is for illustrative purposes only and should only be used as such by any prospective purchaser.

Agent's Notes
Although we try to ensure accuracy, these details are set out for guidance purposes only and do not form part of a contract or offer. Please note that some photographs have been taken with a wide-angle lens. A final inspection prior to exchange of contracts is recommended. No person in the employment of James Du Pavey Ltd has any authority to make any representation or warranty in relation to this property.

ID Checks
Please note we charge £50 inc VAT for ID Checks and verification for each person financially involved with the transaction when purchasing a property through us.

Referrals
We can recommend excellent local solicitors, mortgage advice and surveyors as required. At no time are you obliged to use any of our services. We recommend Gent Law Ltd for conveyancing, they are a connected company to James Du Pavey Ltd but their advice remains completely independent. We can also recommend other solicitors who pay us a referral fee of £240 inc VAT. For mortgage advice we work with RPUK Ltd, a superb financial advice firm with discounted fees for our clients. RPUK Ltd pay James Du Pavey 25% of their fees. RPUK Ltd is a trading style of Retirement Planning (UK) Ltd, Authorised and Regulated by the Financial Conduct Authority. Your Home is at risk if you do not keep up repayments on a mortgage or other loans secured on it. We receive £120 inc VAT for each survey referral.

Jasmine Horsley

Jasmine Horsley BA (Hons)

Cheadle Branch

01538 711400