Bishops Offley, Stafford, ST21

£315,000

5 reasons we love this property

  1. Located in the hamlet of Bishops Offley, this charming two bedroom semi detached cottage offers a comfortable and modern feel, ideal for those looking to escape to a more rural setting and unwind.
  2. Upon entry, you're welcomed by a cosy sitting room, with a log burning fire and accessible W/C. This leads into spacious and inviting conservatory, filled with an abundance of natural lighting.
  3. The kitchen space is well equipped with top of the range Siemens appliances, brilliant for those who love to cook. The beautiful tiled flooring and vast storage makes this room inviting and practical.
  4. The master bedroom invites you in with a generous amount of space, grand exposed beams above, and a quaint window nook to relax on. Benefitting from an ensuite shower room, filled with natural light.
  5. The second bedroom offers versatility due to it's size which can work as both a spare room or home office. You can also access a mezzanine level from this floor which offers additional storage space.

About this property

Read more

Nestled within an attractive residential setting, this charming two-bedroom semi-detached cottage beautifully combines traditional character with modern-day comfort, creating a warm and inviting home suited to a variety of lifestyles.

Upon entering the property, you are welcomed by a bright and inviting hallway that sets the tone for the rest of the home. This leads through to the cosy yet spacious living room, where a log-burning stove takes centre stage, providing both a striking focal point and a comforting atmosphere, perfect for relaxing evenings or unwinding during the colder months. The living room flows seamlessly into a light-filled conservatory, offering an additional versatile living space. This area is ideal for use as a dining space, reading nook, or simply a peaceful spot to enjoy views of the garden while benefiting from an abundance of natural light throughout the year.

The ground floor also features a well designed kitchen, thoughtfully equipped with ample storage and workspace, making it both practical and enjoyable for everyday cooking and entertaining. Completing the downstairs accommodation is a convenient WC, enhancing the functionality of the home for both residents and guests.

Upstairs, the property continues to impress with two comfortable and tastefully presented bedrooms. The principal bedroom benefits from generous built-in storage and a private ensuite, offering a sense of privacy and convenience. The second bedroom is equally appealing and highly versatile, making it suitable as a guest room, home office, nursery, or hobby space depending on your needs.

Throughout the home, a range of charming cottage-style features—such as exposed beams, warm wood finishes, and carefully selected design touches—enhance its character and create a welcoming, homely feel. These elements are thoughtfully balanced with modern upgrades, ensuring comfort without compromising on charm.

Externally, the property continues to offer practical benefits. The garden is designed to be low-maintenance, making it ideal for those who want to enjoy outdoor space without extensive upkeep. Whether used for relaxing, light gardening, or entertaining, providing an extension of the indoor living space. In addition, a separate garage offers valuable storage for vehicles, tools, or household items.

This delightful home is perfectly suited for those looking to downsize without sacrificing comfort, as well as buyers seeking a manageable property with character and charm. It also appeals to anyone wishing to embrace a quieter, more relaxed lifestyle while still enjoying modern conveniences.

Offering a rare combination of warmth, practicality, and timeless appeal, this cottage presents an excellent opportunity to acquire a truly special home. Early viewing is highly recommended to fully appreciate everything this unique and inviting property has to offer.

AGENT NOTE
Please note the owners have advised the neighbouring property has access from the main road through to the rear of the property

Council Tax Band: D

Tenure: Freehold

Additional Information

Useful Links
Broadband and mobile phone coverage checker - https://checker.ofcom.org.uk/

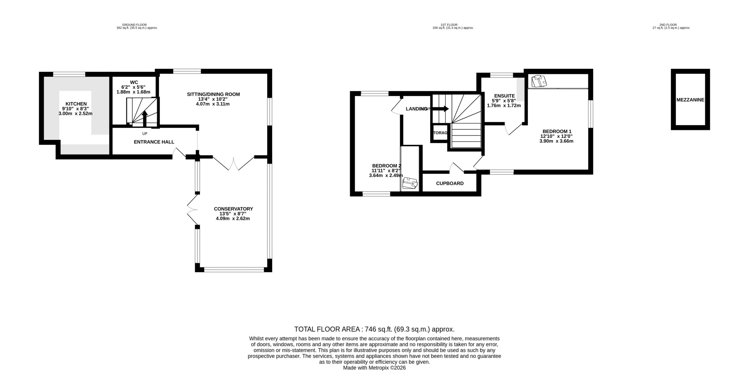
Floor Plans
Please note that floor plans are provided to give an overall impression of the accommodation offered by the property. They are not to be relied upon as a true, scaled and precise representation. Whilst we make every attempt to ensure the accuracy of the floor plan, measurements of doors, windows, rooms and any other item are approximate. This plan is for illustrative purposes only and should only be used as such by any prospective purchaser.

Agent's Notes
Although we try to ensure accuracy, these details are set out for guidance purposes only and do not form part of a contract or offer. Please note that some photographs have been taken with a wide-angle lens. A final inspection prior to exchange of contracts is recommended. No person in the employment of James Du Pavey Ltd has any authority to make any representation or warranty in relation to this property.

ID Checks
Please note we charge £50 inc VAT for ID Checks and verification for each person financially involved with the transaction when purchasing a property through us.

Referrals
We can recommend excellent local solicitors, mortgage advice and surveyors as required. At no time are you obliged to use any of our services. We recommend Gent Law Ltd for conveyancing, they are a connected company to James Du Pavey Ltd but their advice remains completely independent. We can also recommend other solicitors who pay us a referral fee of £240 inc VAT. For mortgage advice we work with RPUK Ltd, a superb financial advice firm with discounted fees for our clients. RPUK Ltd pay James Du Pavey 25% of their fees. RPUK Ltd is a trading style of Retirement Planning (UK) Ltd, Authorised and Regulated by the Financial Conduct Authority. Your Home is at risk if you do not keep up repayments on a mortgage or other loans secured on it. We receive £120 inc VAT for each survey referral.

Lee Davies

Lee Davies MNAEA

Eccleshall Branch

01785 851886