Burchell Avenue, Stone, ST15

£285,000

5 reasons we love this property

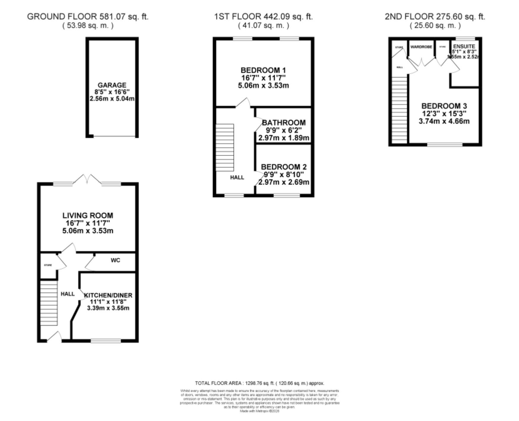
  1. Superb 3-bed semi-detached home on Burchell Avenue, Stone, set over 3 floors, ideal for first-time buyers, growing families or upsizers seeking space, style and practicality throughout.
  2. Stylish kitchen/diner with white units, contrasting worktops & appliances, plus living room with French doors, and a handy WC.
  3. Three bedrooms including one on the top-floor with built-in wardrobes & en-suite shower room, plus family bathroom with bath/shower combo.
  4. South-East facing rear garden with lawn & patio for alfresco dining, fully enclosed by fencing, plus tarmac driveway and garage providing off-road parking & storage.
  5. Located in Stone with excellent commuter links, close to schools, shops & amenities, making it a well-connected place to call home.

About this property

Sunny-side up living on Burchell Avenue! 3-bed semi over 3 floors with kitchen/diner, living room with French doors, bathroom, ensuite shower room + WC, South-East garden, drive & garage. Located in Stone with excellent commuter links, close to schools, shops & amenities. Perfect for first-time buyers, families or upsizers!

Read more

“How do you like your eggs in the morning?”
We like ours sunny-side up… served with a generous helping of space, a sprinkle of style, and a home that’s ready to rise to the occasion.

Welcome to Burchell Avenue in Stone, where this delightful three-bedroom semi-detached home is stacked across three floors like the perfect breakfast tower. Whether you're a first-time buyer ready to get cracking, a growing family in need of more room to spread out, or an upsizer looking for that next delicious chapter, this home serves it all up just right.

Step through the front door and into a welcoming hallway, the perfect place to hang up your coat and kick-start the day. To the right, the kitchen/diner is the true heart of the home, and it’s serving up serious style. Sleek white cabinetry paired with contrasting worktops creates a fresh, contemporary feel, while the full suite of appliances, washing machine/ tumble dryer, four-burner gas hob, oven, cooker hood, dishwasher, and space for more, means you’ve got everything you need to whip up anything from a quick slice of toast to a full-on family feast. There’s even room for a table, ideal for gathering round over morning coffees or weekend brunches. Moving through, the living room is ready for every occasion, whether it’s cosy nights in or entertaining guests. With glazed French doors opening out to the garden, it’s a space that effortlessly brings the outside in. And to complete the ground floor, a handy downstairs WC with pedestal wash hand basin keeps things practical.

Heading upstairs, the first floor continues to serve up a treat, offering two versatile bedrooms ready to be enjoyed however you fancy, whether that’s restful retreats, a home office, or even a nursery for a growing family. Completing this floor is the family bathroom, fitted with a bath and shower combination, WC, and pedestal wash hand basin, ideal for everything from a quick freshen-up to a long, lazy soak. And then… the top tier of this three-storey delight, the second floor, and what a showstopper it is. The third bedroom takes centre stage, a true “chef’s special” of the home, offering a generous and private space to unwind. Even better, it comes complete with built-in wardrobes, keeping everything neatly tucked away, alongside its own en-suite shower room with pedestal wash hand basin and WC.

And just when you think this home couldn’t dish up anything more, step outside to the rear garden, perfectly positioned with a South-East facing aspect, meaning you can enjoy those sunny-side-up mornings well into the day. Predominantly laid to a fresh lawn, it’s a great space for little ones to play or for simply soaking up the sunshine, while the patio area is just the spot for a spot of al fresco dining…think morning coffees, weekend brunches, and evening treats. All neatly bordered by fencing, a slice of outdoor goodness to round off this rather tasty offering. And to the front, the home continues to deliver, with a tarmacked driveway providing off-road parking, alongside a garage sitting neatly ahead perfect for keeping your car tucked away or storing all those everyday essentials. Whether it’s practicality or peace of mind you’re after, this home has it all lined up and ready to serve.

Location

Stone is a charming market and canal town situated on the River Trent, between the larger towns of Stafford and Stoke-on-Trent, close to the A34, M6, and mainline train stations, giving easy access to Stafford, Stoke, and beyond.

The town boasts a vibrant high street filled with independent shops, cafés, and restaurants, alongside regular farmers’ and craft markets. Stone is also celebrated for its thriving food and drink scene, most notably the annual Stone Food & Drink Festival, which showcases local produce and artisan talent.

For leisure and outdoor pursuits, the nearby Trent and Mersey Canal provides scenic towpaths for walking and cycling, while Westbridge Park and surrounding countryside offer plenty of green space.

Stone has a 3-tier schooling system with popular first, middle and high schools all within the town as well as highly regarded independent schools.

With a blend of historic charm, strong community spirit, and convenient access to both rural and urban amenities, Stone offers an attractive place to live, work, and visit in the heart of Staffordshire.

Council Tax Band: C

Tenure: Freehold

Additional Information

Useful Links
Broadband and mobile phone coverage checker - https://checker.ofcom.org.uk/

Floor Plans
Please note that floor plans are provided to give an overall impression of the accommodation offered by the property. They are not to be relied upon as a true, scaled and precise representation. Whilst we make every attempt to ensure the accuracy of the floor plan, measurements of doors, windows, rooms and any other item are approximate. This plan is for illustrative purposes only and should only be used as such by any prospective purchaser.

Agent's Notes
Although we try to ensure accuracy, these details are set out for guidance purposes only and do not form part of a contract or offer. Please note that some photographs have been taken with a wide-angle lens. A final inspection prior to exchange of contracts is recommended. No person in the employment of James Du Pavey Ltd has any authority to make any representation or warranty in relation to this property.

ID Checks
Please note we charge £50 inc VAT for ID Checks and verification for each person financially involved with the transaction when purchasing a property through us.

Referrals
We can recommend excellent local solicitors, mortgage advice and surveyors as required. At no time are you obliged to use any of our services. We recommend Gent Law Ltd for conveyancing, they are a connected company to James Du Pavey Ltd but their advice remains completely independent. We can also recommend other solicitors who pay us a referral fee of £240 inc VAT. For mortgage advice we work with RPUK Ltd, a superb financial advice firm with discounted fees for our clients. RPUK Ltd pay James Du Pavey 25% of their fees. RPUK Ltd is a trading style of Retirement Planning (UK) Ltd, Authorised and Regulated by the Financial Conduct Authority. Your Home is at risk if you do not keep up repayments on a mortgage or other loans secured on it. We receive £120 inc VAT for each survey referral.

Catrina Horsley

Catrina Horsley MNAEA

Stone Branch

01785 814917