Huntley Lane, Cheadle, ST10

£275,000

5 reasons we love this property

  1. Sun-drenched Mediterranean garden retreat. A beautifully tiered garden with palm-lined patios, warm stone borders, and a private setting that evokes the feeling of a tranquil coastal escape.
  2. Flowing, villa-inspired living spaces. A versatile layout with airy rooms that transition seamlessly, perfect for relaxed dining, entertaining, or hosting guests in true Mediterranean style.
  3. Characterful kitchen with metallic-style tiles paired with soft grey cabinetry and wood-effect surfaces create a blend of modern living and character.
  4. Peaceful countryside setting. Surrounded by greenery and open fields, this home offers the calm and escape of a Mediterranean hideaway while remaining conveniently close to modern convenience.
  5. Effortless indoor-outdoor lifestyle with ample space.Generous parking, a double garage, and multiple outdoor seating areas allow for easy, relaxed living-perfect for soaking up the sun morning & night

About this property

“Woah! In the Mediterranean sea”

Read more

“Woah! In the Mediterranean sea” oh no wait, we’re in Huntley on the outskirts of Cheadle but for a moment there, that garden transported me to a beautiful location, my own personal get away in the UK! This two bedroom bungalow is in a beautiful location which has you close enough to local amenities but set within a beautifully rural location. With fields to the rear and woodland and greenery views to the front. As you step through the front door, this home welcomes you in to a large porch, take off that coat, whip off those shoes and to the left, you have the kitchen. Unique textured tiles almost look metallic giving it character whilst the abundance of dove grey cabinetry with a wood effect work top give it a modern touch. Whip up a storm with views of woodlands. Follow it through and you enter in to the lounge. An electric modern fireplace gives it a touch of cosy in a large space designed for you to relax.  Through the archway a hallway separates a dining room which was once the second bedroom. With room for a large dining table or even a double bed, it’s a versatile room perfect for any use. Glazed sliding doors lead on to the garden patio, seamlessly inviting the outside in. Then we have the master bedroom two windows let in lots of natural light whilst the built in storage and wardrobes around the bed frame allows for all those summer hats and kaftans ready for that Mediterranean garden you are to enjoy. This is just off the main family bathroom with a shower over bath duo. Outside a multi layered garden waits, with a patio area first that sweeps around the home takes you up some steps, bordered with plants that come in to full bloom in the summer lead you up to a second level. Patio area trimmed with palm trees in a stone wall border transport you to the Med, gaining the afternoon sun for you to worship in those summer months to come. Not overlooked you can sunbathe in peace. At the end of the garden, sits the garden room. Split in to two you have a seating area used as a reception room to relax and entertain as well as a study. This space has also been used to house friends and family wanting in on a staycation on occasion. To the front of the property, you have a patio area that catches the morning sun, perfect for your breakfast brew. Steps lead down to a large double garage sporting electrics, as well as a driveway with room for multiple vehicles. All this is located in the hamlet of Huntley, on the outskirts of Cheadle as your heading towards Tean. It’s rural location boasting scenic views and charming walks, whilst modern convenience such as supermarkets, shops and eateries just a stones throw away. Cheadle is prime location for transport links to the A50. Think this home could transport you to a happy place? Book your viewing today.

Council Tax Band: C

Tenure: Freehold

Additional Information

Useful Links
Broadband and mobile phone coverage checker - https://checker.ofcom.org.uk/

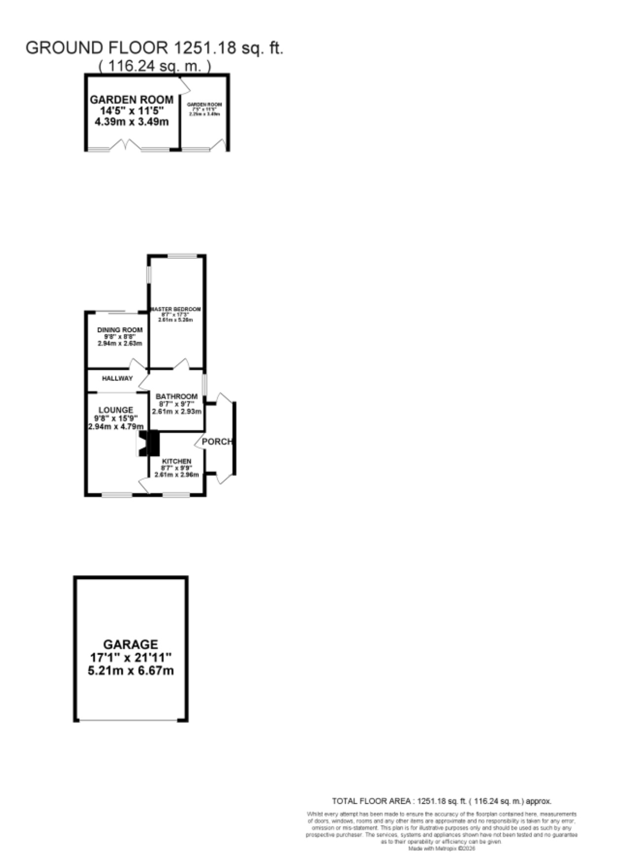
Floor Plans
Please note that floor plans are provided to give an overall impression of the accommodation offered by the property. They are not to be relied upon as a true, scaled and precise representation. Whilst we make every attempt to ensure the accuracy of the floor plan, measurements of doors, windows, rooms and any other item are approximate. This plan is for illustrative purposes only and should only be used as such by any prospective purchaser.

Agent's Notes
Although we try to ensure accuracy, these details are set out for guidance purposes only and do not form part of a contract or offer. Please note that some photographs have been taken with a wide-angle lens. A final inspection prior to exchange of contracts is recommended. No person in the employment of James Du Pavey Ltd has any authority to make any representation or warranty in relation to this property.

ID Checks
Please note we charge £50 inc VAT for ID Checks and verification for each person financially involved with the transaction when purchasing a property through us.

Referrals
We can recommend excellent local solicitors, mortgage advice and surveyors as required. At no time are you obliged to use any of our services. We recommend Gent Law Ltd for conveyancing, they are a connected company to James Du Pavey Ltd but their advice remains completely independent. We can also recommend other solicitors who pay us a referral fee of £240 inc VAT. For mortgage advice we work with RPUK Ltd, a superb financial advice firm with discounted fees for our clients. RPUK Ltd pay James Du Pavey 25% of their fees. RPUK Ltd is a trading style of Retirement Planning (UK) Ltd, Authorised and Regulated by the Financial Conduct Authority. Your Home is at risk if you do not keep up repayments on a mortgage or other loans secured on it. We receive £120 inc VAT for each survey referral.

Jasmine Horsley

Jasmine Horsley BA (Hons)

Cheadle Branch

01538 711400