Mount Road, Stone, ST15

£199,950

5 reasons we love this property

  1. Recently modernised 3-bed semi on Mount Road, Stone. Ideal for first-time buyers, downsizers, or upsizers seeking a stylish home.
  2. Warm living room with sliding doors to bright dining area. Dining room has glazed French doors to rear garden, perfect for entertaining or family meals.
  3. Modern cream kitchen with wood-grain worktops, oven, 5-burner gas hob, plus utility room and downstairs WC. Upstairs: 3 bedrooms, shower room with corner walk-in shower, vanity and WC.
  4. South-West facing rear garden with lush lawn, patio. Tarmacked driveway to front with tidy lawn, providing off-road parking.
  5. Situated in Stone, walking distance to the town centre, local amenities, shops, cafés, and well-regarded schools.

About this property

3-bed semi on Mount Road. Having recently undergone significant improvements inside and out, the property features a living room, dining room, kitchen, utility, downstairs WC, 3 bedrooms and a shower room. Outside offers a South-West facing garden and driveway. Walking distance to the town centre, amenities & schools. Ideal for first-time buyers, upsizers or downsizers.

Read more

The starting pistol has fired, and this house on Mount Road is sprinting for gold! Having recently undergone significant improvements inside and out this three-bedroom semi-detached home in Stone is ready to win over first-time buyers, downsizers, and upsizers looking for their next champion home, all within walking distance of the town centre, local amenities, and well-regarded schools.

The first event… the living room! Step into a warm and inviting space that takes centre stage, perfect for relaxing, entertaining, or cheering on your favourite team. Sliding doors lead into the dining area, keeping the energy flowing seamlessly through the home. Bright, airy, and full of energy, it features glazed French doors leading to the rear garden, letting sunlight beam in like a spotlight on your winning performance. Whether it’s a family dinner, a homework relay, or cheering on your champions, this room is always ready for the next big event. The kitchen takes the gold! Fitted with modern cream cabinetry and wood-grain effect worktops, there’s plenty of space to prepare your medal-winning meals. With an oven, 5-burner gas hob, and room for more, this kitchen can handle everything from quick sprints to full culinary marathons, a true champion of style and practicality! Just off the kitchen, a quick pit stop! Here you’ll find a handy utility room, ready to take on extra appliances and storage like a true relay champion. There’s even a downstairs WC, keeping everything running smoothly behind the scenes so the home can perform at its very best.

Heading upstairs to the final events! You’ll discover three versatile bedrooms, perfect for resting, working, or cheering on your champions-in-training. One room even boasts built-in wardrobes to keep all your gear neatly tucked away. The shower room is a real star of the show, featuring a walk-in corner shower, pedestal wash hand basin with stylish vanity unit, and WC, ready to help you freshen up and start each day feeling like a true champion.

And for the grand finale, the outdoor events! Step outside to a private South-West facing garden, where a lush lawn and patio area create the perfect arena for relaxing, entertaining, or practicing your victory lap. To the front, a tarmacked driveway keeps your car ready for action, alongside a tidy front lawn that gives the home top marks for kerb appeal.

Please note that this property is non standard construction and mortgage lenders should be advised of this at the outset.

Location

Stone is a charming market and canal town situated on the River Trent, between the larger towns of Stafford and Stoke-on-Trent, close to the A34, M6, and mainline train stations, giving easy access to Stafford, Stoke, and beyond.

The town boasts a vibrant high street filled with independent shops, cafés, and restaurants, alongside regular farmers’ and craft markets. Stone is also celebrated for its thriving food and drink scene, most notably the annual Stone Food & Drink Festival, which showcases local produce and artisan talent.

For leisure and outdoor pursuits, the nearby Trent and Mersey Canal provides scenic towpaths for walking and cycling, while Westbridge Park and surrounding countryside offer plenty of green space.

Stone has a 3-tier schooling system with popular first, middle and high schools all within the town as well as highly regarded independent schools.

With a blend of historic charm, strong community spirit, and convenient access to both rural and urban amenities, Stone offers an attractive place to live, work, and visit in the heart of Staffordshire.

Non standard construction
Please note that this property is non standard construction and mortgage lenders should be advised of this at the outset.

Council Tax Band: A

Tenure: Freehold

Additional Information

Useful Links
Broadband and mobile phone coverage checker - https://checker.ofcom.org.uk/

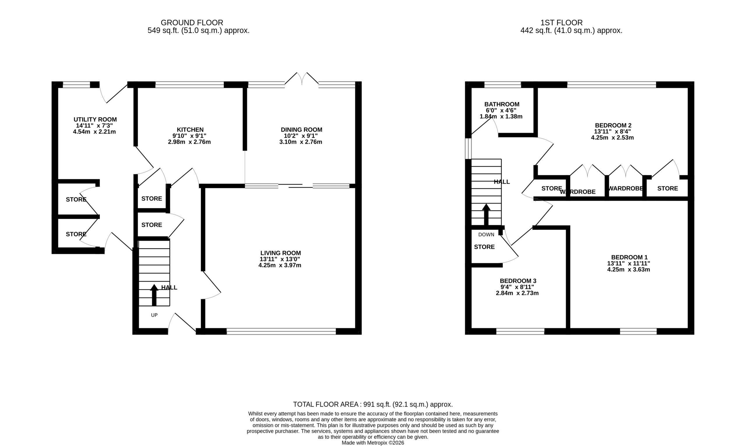
Floor Plans
Please note that floor plans are provided to give an overall impression of the accommodation offered by the property. They are not to be relied upon as a true, scaled and precise representation. Whilst we make every attempt to ensure the accuracy of the floor plan, measurements of doors, windows, rooms and any other item are approximate. This plan is for illustrative purposes only and should only be used as such by any prospective purchaser.

Agent's Notes
Although we try to ensure accuracy, these details are set out for guidance purposes only and do not form part of a contract or offer. Please note that some photographs have been taken with a wide-angle lens. A final inspection prior to exchange of contracts is recommended. No person in the employment of James Du Pavey Ltd has any authority to make any representation or warranty in relation to this property.

ID Checks
Please note we charge £50 inc VAT for ID Checks and verification for each person financially involved with the transaction when purchasing a property through us.

Referrals
We can recommend excellent local solicitors, mortgage advice and surveyors as required. At no time are you obliged to use any of our services. We recommend Gent Law Ltd for conveyancing, they are a connected company to James Du Pavey Ltd but their advice remains completely independent. We can also recommend other solicitors who pay us a referral fee of £240 inc VAT. For mortgage advice we work with RPUK Ltd, a superb financial advice firm with discounted fees for our clients. RPUK Ltd pay James Du Pavey 25% of their fees. RPUK Ltd is a trading style of Retirement Planning (UK) Ltd, Authorised and Regulated by the Financial Conduct Authority. Your Home is at risk if you do not keep up repayments on a mortgage or other loans secured on it. We receive £120 inc VAT for each survey referral.

Catrina Horsley

Catrina Horsley MNAEA

Stone Branch

01785 814917