Snape Hall Road, Whitmore, ST5

£1,100,000

5 reasons we love this property

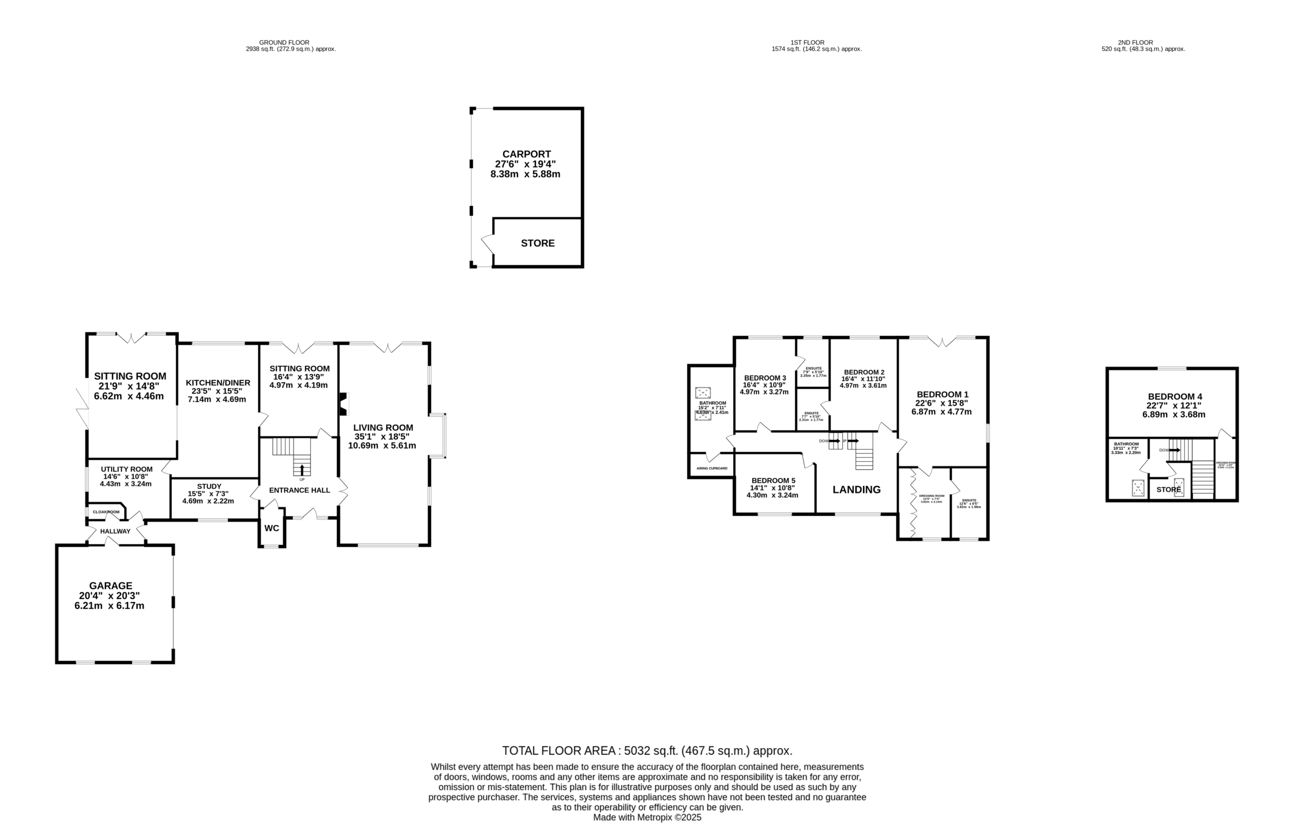
  1. A beautiful five bedroom, five bathroom home in Whitmore sat on a generous plot with contemporary details throughout and NO UPWARD CHAIN.
  2. Five double bedrooms and five bathrooms across the first and second floor allow plenty of room to relax and unwind.
  3. On the ground floor find an open plan luxury kitchen/diner, three large living areas, a study, utility room and cloakroom.
  4. Outside, enjoy a large garden with charming onward views, a sheltered carport, store, two gated driveways and an integral garage for seamless parking.
  5. Located in Whitmore, enjoy great local amenities and a Primary School close by, along with M6 and A500 connections a short drive away.

About this property

Budding with high-quality finishes and luxuriant details throughout, Rose Cottage invites you to plant your roots and watch life bloom, all with the rare bonus of NO UPWARD CHAIN.

Read more

Budding with high-quality finishes and luxuriant details throughout, Rose Cottage invites you to plant your roots and watch life bloom, all with the rare bonus of NO UPWARD CHAIN. Sat on a generous plot, this exceptional detached home offers an impressive blend of contemporary luxury and flexible family living, with five beautifully proportioned bedrooms and five stylish bathrooms.

Step inside and you’ll instantly feel this home coming up roses. A bright, welcoming hallway sets the scene, showcasing a striking glass-panelled oak staircase and sleek tiled flooring that gracefully unfurls through the ground floor. Four immaculately presented reception rooms offer space to grow, gather and unwind, including expansive open-plan living areas finished with hardwood flooring, modern lighting and characterful fireplaces or wood-burning stoves. Large windows, sliding doors and French doors flood every room with natural light, seamlessly opening out to the garden and creating a wonderfully fresh, airy feel throughout. At the heart of the home, the show-stopping Neptune kitchen and dining space truly steals the bouquet. Designed for both everyday living and entertaining, it features a substantial central island, integrated appliances and elegant tile detailing. Bathed in natural light with direct garden views, this space is perfect for everything from casual family breakfasts to hosting in full flourish. The ground floor also benefits from a dedicated office space, a practical utility room tucked neatly beside the kitchen, a cloakroom and plentiful storage, all thoughtfully planted for modern living.

Upstairs, the accommodation continues to blossom across the first and second floors. Five beautifully designed bedrooms are paired with five luxurious bathrooms, many featuring walk-in showers, freestanding baths, heated towel rails and sleek contemporary finishes. Four bedrooms sit on the first floor, including the impressive principal suite, complete with a dressing room, en-suite bathroom and a Juliet balcony that opens up to sweeping rural views. The second floor is a private retreat of its own, offering a bedroom, bathroom, dressing room and handy store room, ideal for teenagers, guests or multigenerational living.

Outside, Rose Cottage truly comes into bloom. The expansive landscaped garden enjoys tranquil countryside views, a generous patio for outdoor entertaining and a detached outbuilding that can serve as a carport, sheltered entertaining space or additional storage. Multiple access points from the house blur the lines between indoors and out, encouraging an effortless indoor-outdoor lifestyle. A double garage, extensive gravel driveway and ample off-road parking ensure practicality, while two gated entrances provide easy access and flexible parking options. The covered outdoor area, with its rustic wooden beams and ambient lighting, is perfect for alfresco dining and evening gatherings. With its attractive brick façade, modern windows and elegant balcony, kerb appeal is well and truly in full flower.

Perfectly positioned in Whitmore, the property enjoys excellent local amenities, a nearby primary school and convenient access to the M6 and A500, making it as well connected as it is peaceful.

Sow the seeds of your dream lifestyle today, book your viewing and watch your future blossom at Rose Cottage.

Location
Whitmore/Baldwins Gate sits just minutes drive from Newcastle-Under-Lyme and within easy access of junction 15 of the M6 motorway making it a rural village with excellent commuter links. The village is equipped with a pub and post office/shop whilst there are large attractions near by such as Slaters Craft Village with a range of boutique shops, tea rooms and restaurants. The A53 runs through the centre of the village giving connections Shropshire and to the A51 leading to into Cheshire.

Council Tax Band: G

Tenure: Freehold

Additional Information

Useful Links
Broadband and mobile phone coverage checker - https://checker.ofcom.org.uk/

Floor Plans
Please note that floor plans are provided to give an overall impression of the accommodation offered by the property. They are not to be relied upon as a true, scaled and precise representation. Whilst we make every attempt to ensure the accuracy of the floor plan, measurements of doors, windows, rooms and any other item are approximate. This plan is for illustrative purposes only and should only be used as such by any prospective purchaser.

Agent's Notes
Although we try to ensure accuracy, these details are set out for guidance purposes only and do not form part of a contract or offer. Please note that some photographs have been taken with a wide-angle lens. A final inspection prior to exchange of contracts is recommended. No person in the employment of James Du Pavey Ltd has any authority to make any representation or warranty in relation to this property.

ID Checks
Please note we charge £50 inc VAT for ID Checks and verification for each person financially involved with the transaction when purchasing a property through us.

Referrals
We can recommend excellent local solicitors, mortgage advice and surveyors as required. At no time are you obliged to use any of our services. We recommend Gent Law Ltd for conveyancing, they are a connected company to James Du Pavey Ltd but their advice remains completely independent. We can also recommend other solicitors who pay us a referral fee of £240 inc VAT. For mortgage advice we work with RPUK Ltd, a superb financial advice firm with discounted fees for our clients. RPUK Ltd pay James Du Pavey 25% of their fees. RPUK Ltd is a trading style of Retirement Planning (UK) Ltd, Authorised and Regulated by the Financial Conduct Authority. Your Home is at risk if you do not keep up repayments on a mortgage or other loans secured on it. We receive £120 inc VAT for each survey referral.

Lee Davies

Lee Davies MNAEA

Eccleshall Branch

01785 851886