The Seesall, Gnosall, ST20

£445,000

5 reasons we love this property

  1. Spacious and versatile 1960's family home set on a generous plot, offering multiple reception rooms, flexible living space, and an abundance of natural light throughout
  2. Bright and inviting lounge with feature fireplace, large front window, and French doors opening onto the rear patio, perfect for relaxing evenings or entertaining guests
  3. Sociable kitchen/breakfast room with ample unit space, room for dining, and three rear windows, complemented by a separate dining room with serving hatch for easy hosting
  4. Four well-proportioned bedrooms including a master with ensuite and fitted wardrobes, plus a modern family bathroom and additional study/storage space in bedroom four
  5. Impressive rear garden with full-width patio, mature planting, and enclosed privacy, alongside a large front garden, driveway, and double garage with electric door and loft storage

About this property

Spacious 4-bed 1960s home with solar panels, multiple receptions, double garage, large gardens, and versatile family living in a desirable location.

Read more

Perfectly designed with family life in mind, this substantial and versatile home offers an exciting opportunity to secure a spacious, light-filled property in a highly desirable setting. With privately owned, highest feed-in tariff, energy-efficient solar panels installed on the roof, generous proportions, and multiple reception areas, this is a home where growing families can truly spread out, entertain, and create lasting memories.

Set within a generous plot, this impressive home offers a wonderful sense of space, light, and versatility throughout, ideal for modern family living. A welcoming enclosed porch, framed by double glazed windows to the front and both sides, creates a bright and practical entrance, with a further double glazed door opening into the main hallway. The entrance hall immediately sets the tone, featuring stylish wood-effect laminate flooring and a staircase rising to the first floor, while doors lead seamlessly to the principal ground floor rooms.

The heart of the home is the spacious lounge, beautifully illuminated by a large double glazed window to the front and complemented by French doors that open out onto the rear patio, flanked by additional windows. A feature fireplace and dual ceiling light points add warmth and character, making this a perfect space for both relaxing and entertaining.

To the front, the dining room enjoys a bright outlook through a double glazed window and benefits from a convenient serving hatch into the kitchen, enhancing the flow for hosting and family meals. The kitchen/breakfast room itself is a fantastic, sociable space, fitted with a range of wall and base units with roll-top work surfaces over, and offering room for a dining table and chairs. Three rear-facing windows flood the room with natural light, while there is ample space for appliances including a cooker, dishwasher, and washing machine, alongside a one-and-a-half bowl ceramic sink with swan neck mixer tap.

A further sitting room to the rear provides additional flexible living space, with direct access to the garden via a double glazed door and window, along with a useful storage cupboard. The ground floor is completed by a utility room and WC, fitted with additional units, sink, and appliance space, with internal access leading directly into the double garage.

Upstairs, the landing is bright and airy, with a front-facing window, loft access, and doors to all principal rooms. The main bedroom is a generous retreat, complete with triple wardrobes and its own ensuite shower room. Bedroom two is particularly light-filled, benefiting from dual-aspect windows to the front and side. Bedrooms three and four both enjoy rear aspects, with fitted wardrobes, while bedroom four also incorporates a useful desk area and airing cupboard.

The family bathroom is well-appointed with a modern three-piece suite, including a distinctive pear-shaped bath with shower over, complemented by fully tiled walls and excellent natural light from two privacy windows.

Externally, the property continues to impress. To the rear, a substantial flagged patio spans the full width of the house, creating a superb outdoor entertaining area, surrounded by mature shrubs, hedging, and trees for a private, enclosed feel. Timber fencing borders the garden, with convenient side access on both sides leading to the front, where additional sheds provide useful storage.

The front elevation features a large lawned garden and a gravel driveway leading to the double garage, complete with an electric up-and-over door and additional loft storage within the roof space.

Altogether, this is a substantial and well-balanced home, blending its solid 1960s steel frame construction with generous living spaces, added energy efficiency from solar panels, and a layout perfectly suited to family life.

Location
Nestled in the heart of the Staffordshire countryside, Gnosall is a charming and highly sought-after village that’s particularly popular with families. Offering a wonderful balance of rural tranquillity and everyday convenience, it boasts a strong community feel, well-regarded local schools, scenic canal-side walks, and easy access to nearby towns such as Stafford. With its mix of green open spaces, family-friendly amenities, and excellent transport links, Gnosall provides an idyllic setting for those looking to enjoy a relaxed yet connected lifestyle.

Council Tax Band: E

Tenure: Freehold

Additional Information

Useful Links
Broadband and mobile phone coverage checker - https://checker.ofcom.org.uk/

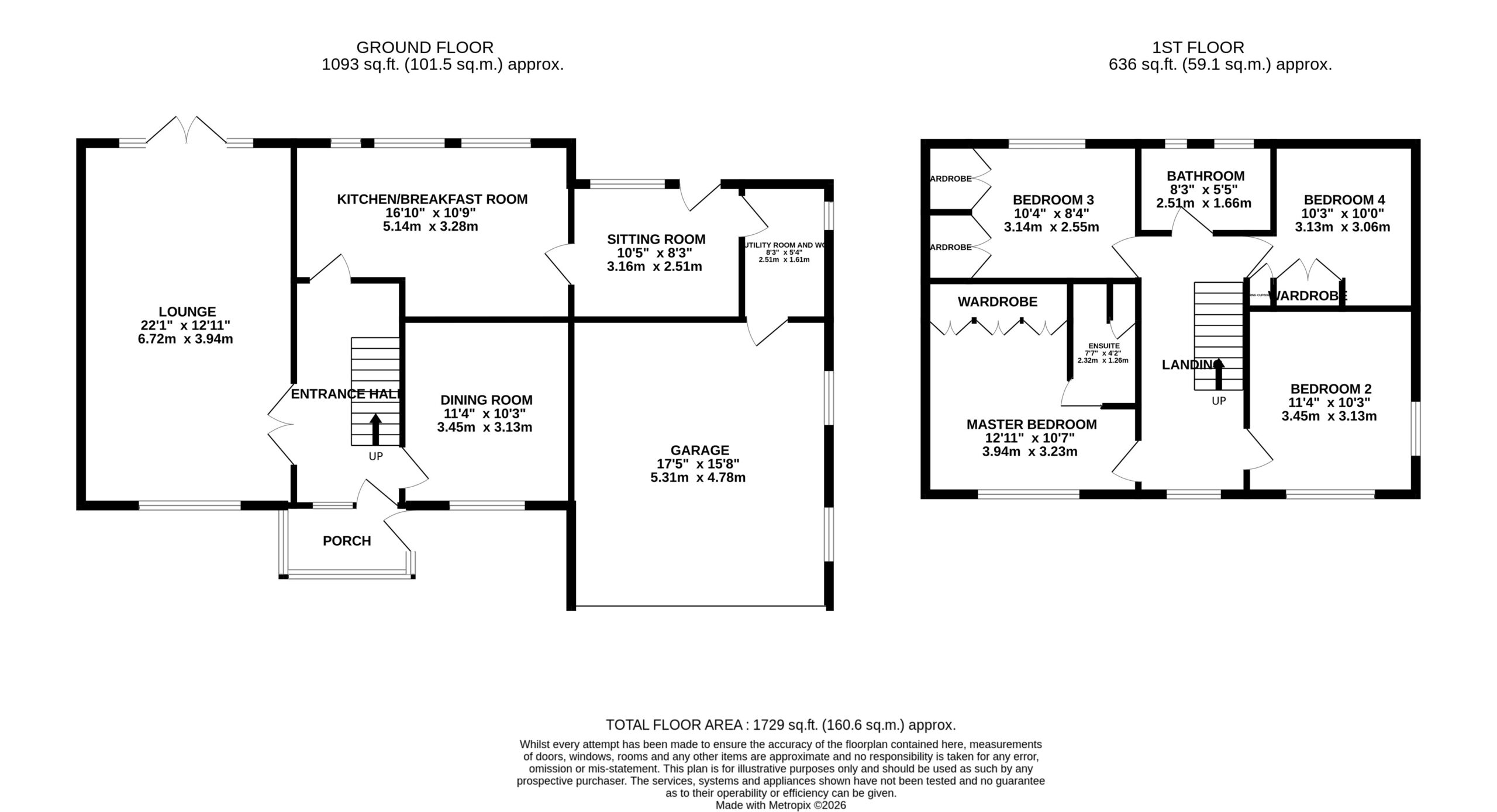
Floor Plans
Please note that floor plans are provided to give an overall impression of the accommodation offered by the property. They are not to be relied upon as a true, scaled and precise representation. Whilst we make every attempt to ensure the accuracy of the floor plan, measurements of doors, windows, rooms and any other item are approximate. This plan is for illustrative purposes only and should only be used as such by any prospective purchaser.

Agent's Notes
Although we try to ensure accuracy, these details are set out for guidance purposes only and do not form part of a contract or offer. Please note that some photographs have been taken with a wide-angle lens. A final inspection prior to exchange of contracts is recommended. No person in the employment of James Du Pavey Ltd has any authority to make any representation or warranty in relation to this property.

ID Checks
Please note we charge £50 inc VAT for ID Checks and verification for each person financially involved with the transaction when purchasing a property through us.

Referrals
We can recommend excellent local solicitors, mortgage advice and surveyors as required. At no time are you obliged to use any of our services. We recommend Gent Law Ltd for conveyancing, they are a connected company to James Du Pavey Ltd but their advice remains completely independent. We can also recommend other solicitors who pay us a referral fee of £240 inc VAT. For mortgage advice we work with RPUK Ltd, a superb financial advice firm with discounted fees for our clients. RPUK Ltd pay James Du Pavey 25% of their fees. RPUK Ltd is a trading style of Retirement Planning (UK) Ltd, Authorised and Regulated by the Financial Conduct Authority. Your Home is at risk if you do not keep up repayments on a mortgage or other loans secured on it. We receive £120 inc VAT for each survey referral.

Lee Davies

Lee Davies MNAEA

Eccleshall Branch

01785 851886