Wilkes Wood, Stafford, ST18

£265,000

5 reasons we love this property

  1. A charming corner plot with stunning rural views, your own slice of la dolce vita, perfect for sunsets, serenity and soaking up the scenery.
  2. On the ground floor find a bright dual-aspect living room, kitchen and scenic sun room with seamless garden access.
  3. On the first floor find three good sized bedrooms and a family bathroom, allowing plenty of room to relax and unwind.
  4. Outside, enjoy a South-west facing garden, driveway & garage, making sun-filled outdoor living and easy parking.
  5. Located in Creswell, be close by to the M6 for commuter haven, as well as Eccleshall and Stafford for excellent amenities.

About this property

Ciao bella! Welcome to a home that serves up style, space & scenery, this 3 bed semi-detached corner plot is truly molto magnifico, with show-stopping views and garden space that’s simply bellissimo.

Read more

Ciao bella! Welcome to a home that serves up style, space and scenery, this three-bed semi-detached corner plot is truly molto magnifico, with show-stopping views and garden space that’s simply bellissimo.

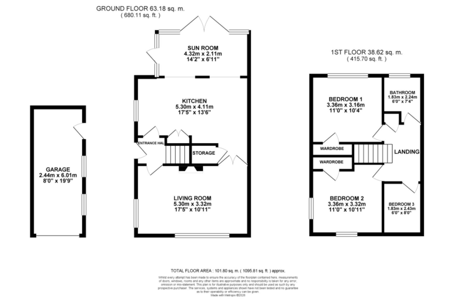
Pull onto the driveway and make your grand entrance through the composite front door. The entrance hall greets you with warmth and easy flow, offering access to the living spaces, kitchen and stairs to the first floor. The living room is a real amore at first sight moment, bright and spacious with dual-aspect windows and a feature gas fireplace that’s giving full-on Roman holiday vibes. Double doors lead you straight into the kitchen, where you’ll find a delicious mix of cabinetry, sleek worktops and integrated appliances. Just beyond, the sunroom is your own slice of the Italian countryside, la dolce vista! With stunning rural views and French doors opening onto the garden, it’s the perfect spot for morning espresso or evening vino.

Upstairs, three well-sized bedrooms await. Bedrooms one and two are generous doubles with built-in storage, while bedroom three is a versatile gem, ideal as a nursery, office or creative nook. The family bathroom completes the floor with a bath and overhead shower, WC, sink and towel radiator, relax, refresh, riposa.

Step outside and prepare to fall head over heels, this south-west facing, corner plot garden is pure countryside chic. With a mix of lawn, patio and planting areas, it’s perfect for entertaining, unwinding or sipping cocktails as the sun sets. To the front, a single garage and driveway keep parking stress-free. Plus, leased solar panels add an extra sprinkle of efficiency… Eco, ma elegante.

Set in Cresswell, you’re within easy reach of Stafford and Eccleshall for shops, schools and connections, with the M6 nearby for smooth commuting.

This home isn’t just a place to live, it’s a lifestyle. Give us a call today to book a viewing and begin living your Italian dream!

Location
Located just off Junction 14 of the M6, Creswell is an area that benefits from fantastic commuting links via the motorway with direct access into the County Town of Stafford where there is a high street, retail parks & supermarkets along with excellent schools. Away from Stafford, the road leads directly to the popular rural village of Eccleshall with shops, boutiques, pubs & restaurants with Staffordshire countryside between.

Council Tax Band: B

Tenure: Freehold

Additional Information

Useful Links
Broadband and mobile phone coverage checker - https://checker.ofcom.org.uk/

Floor Plans
Please note that floor plans are provided to give an overall impression of the accommodation offered by the property. They are not to be relied upon as a true, scaled and precise representation. Whilst we make every attempt to ensure the accuracy of the floor plan, measurements of doors, windows, rooms and any other item are approximate. This plan is for illustrative purposes only and should only be used as such by any prospective purchaser.

Agent's Notes
Although we try to ensure accuracy, these details are set out for guidance purposes only and do not form part of a contract or offer. Please note that some photographs have been taken with a wide-angle lens. A final inspection prior to exchange of contracts is recommended. No person in the employment of James Du Pavey Ltd has any authority to make any representation or warranty in relation to this property.

ID Checks
Please note we charge £50 inc VAT for ID Checks and verification for each person financially involved with the transaction when purchasing a property through us.

Referrals
We can recommend excellent local solicitors, mortgage advice and surveyors as required. At no time are you obliged to use any of our services. We recommend Gent Law Ltd for conveyancing, they are a connected company to James Du Pavey Ltd but their advice remains completely independent. We can also recommend other solicitors who pay us a referral fee of £240 inc VAT. For mortgage advice we work with RPUK Ltd, a superb financial advice firm with discounted fees for our clients. RPUK Ltd pay James Du Pavey 25% of their fees. RPUK Ltd is a trading style of Retirement Planning (UK) Ltd, Authorised and Regulated by the Financial Conduct Authority. Your Home is at risk if you do not keep up repayments on a mortgage or other loans secured on it. We receive £120 inc VAT for each survey referral.

Lee Davies

Lee Davies MNAEA

Eccleshall Branch

01785 851886