Acorn Close, Loggerheads, TF9

£210,000

6 reasons we love this property

  1. A delightful two bedroom bungalow is situated in the highly desirable area of Loggerheads. Conveniently situated near transport links, the local public house and an Ofsted "outstanding" rated school.
  2. Upon entry to the home, the kitchen is found to the left with space for integrated white goods and vast amounts of storage, this makes for an ideal amount of room for a couple/small family.
  3. This home offers a comfortable and spacious living room, with plenty of room for dining with family and friends. This room has great natural lighting and benefits from a centrally placed fireplace.
  4. The master bedroom offers a great amount of space and benefits from a built in wardrobes with sliding mirrored doors, great for storage and organisation, overlooking the garden space.
  5. The second bedroom can be used as both a bedroom or an office space, great for those working from home and needing some extra space. This rooms leads out to the well kept garden and private garage.
  6. The family bathroom is conveniently located beside all rooms making it easily accessible and functional for all. With privacy windows, allowing for natural light to fill the room.

About this property

Read more

This delightful two bedroom semi-detached bungalow is located in the highly desirable area of Loggerheads, offering a perfect blend of comfort and convenience for a couple or small family. Upon entering the property, you are greeted by a well-appointed kitchen situated to the left of the entrance, featuring space for integrated white goods and ample storage space that caters to all your culinary and organisational needs. The spacious living room provides a welcoming atmosphere, ideal for both relaxation and entertaining, and benefits from generous natural light as well as a centrally placed fireplace that adds a cosy focal point to the space. The layout of the living room allows for a dedicated dining area, making it perfect for hosting family and friends. The master bedroom is generously sized and features built-in wardrobes with sliding mirrored doors, providing excellent storage solutions and helping to keep the space organised and clutter-free. This bedroom overlooks the garden area, offering a pleasant and peaceful outlook. The second bedroom is versatile and can easily function as either a comfortable guest room or a practical office space, ideal for those who work from home or need additional room for hobbies and activities. This second bedroom also provides direct access to the private garage, ensuring convenience and secure storage. The family bathroom is thoughtfully positioned for easy access from all rooms and features frosted windows that allow for plenty of natural light while maintaining privacy. The property is conveniently located near excellent transport links, the local public house, and a highly regarded Ofsted "outstanding" rated school, making it an excellent choice for families seeking quality education and a vibrant community atmosphere. With its well-designed layout, modern features, and sought-after location, this bungalow presents a wonderful opportunity to enjoy comfortable living in a popular neighbourhood. Whether you are downsizing, looking for your first home, or seeking a property with flexible living options, this home offers everything you need for a relaxed and enjoyable lifestyle. Early viewing is highly recommended to fully appreciate the quality and appeal of this lovely bungalow in Loggerheads.

Agent Note
Please note there is a restriction on the title not permitting any form of business use from this premises.

Council Tax Band: B

Tenure: Freehold

Additional Information

Useful Links
Broadband and mobile phone coverage checker - https://checker.ofcom.org.uk/

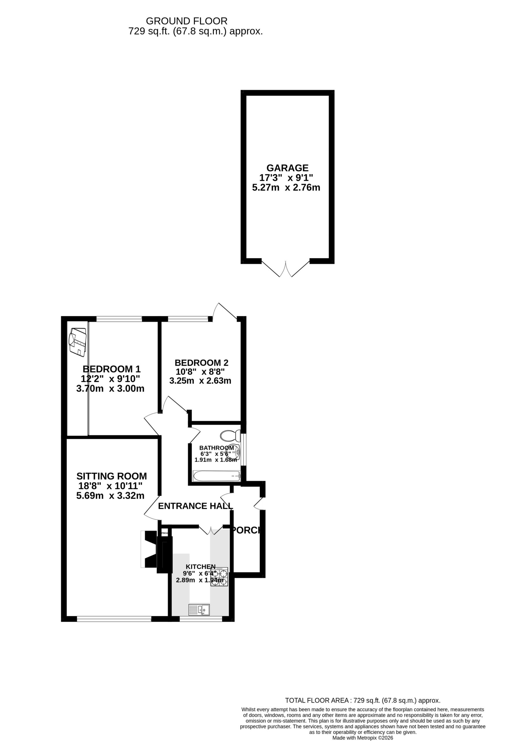
Floor Plans
Please note that floor plans are provided to give an overall impression of the accommodation offered by the property. They are not to be relied upon as a true, scaled and precise representation. Whilst we make every attempt to ensure the accuracy of the floor plan, measurements of doors, windows, rooms and any other item are approximate. This plan is for illustrative purposes only and should only be used as such by any prospective purchaser.

Agent's Notes
Although we try to ensure accuracy, these details are set out for guidance purposes only and do not form part of a contract or offer. Please note that some photographs have been taken with a wide-angle lens. A final inspection prior to exchange of contracts is recommended. No person in the employment of James Du Pavey Ltd has any authority to make any representation or warranty in relation to this property.

ID Checks
Please note we charge £50 inc VAT for ID Checks and verification for each person financially involved with the transaction when purchasing a property through us.

Referrals
We can recommend excellent local solicitors, mortgage advice and surveyors as required. At no time are you obliged to use any of our services. We recommend Gent Law Ltd for conveyancing, they are a connected company to James Du Pavey Ltd but their advice remains completely independent. We can also recommend other solicitors who pay us a referral fee of £240 inc VAT. For mortgage advice we work with RPUK Ltd, a superb financial advice firm with discounted fees for our clients. RPUK Ltd pay James Du Pavey 25% of their fees. RPUK Ltd is a trading style of Retirement Planning (UK) Ltd, Authorised and Regulated by the Financial Conduct Authority. Your Home is at risk if you do not keep up repayments on a mortgage or other loans secured on it. We receive £120 inc VAT for each survey referral.

Lee Davies

Lee Davies MNAEA

Eccleshall Branch

01785 851886