Blears Avenue, Nantwich, CW5

£425,000

5 reasons we love this property

  1. Spacious four-bedroom detached family home in Nantwich.
  2. Large kitchen/diner spanning the width of the property with integrated appliances.
  3. Two ensuite double bedrooms plus a modern family bathroom.
  4. Private rear garden with patio area and side access.
  5. Driveway parking and single integrated garage.

About this property

This beautifully presented four-bedroom detached home in Nantwich offers generous living space, modern conveniences, and a well-designed layout ideal for both family life and entertaining.

Read more

This beautifully presented four-bedroom detached home in Nantwich offers generous living space, modern conveniences, and a well-designed layout ideal for both family life and entertaining.

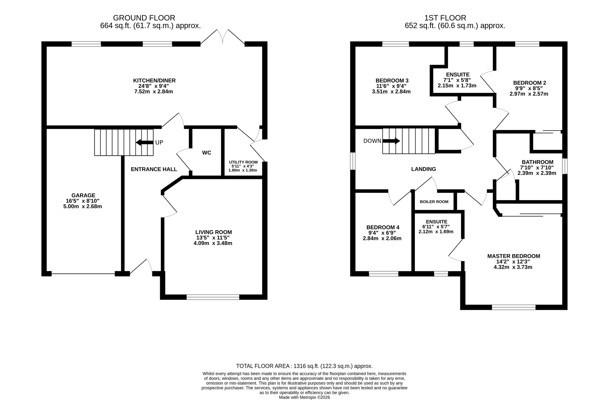
Upon entering the property, you are welcomed by a spacious living room that creates a fantastic environment for relaxing or socialising with family and friends. To the rear of the home, the impressive kitchen/diner stretches the full width of the property, providing an excellent open space for cooking and dining. The kitchen features ample cupboard storage along with integrated appliances including a fridge, freezer, double oven, microwave, five-ring gas hob, and dishwasher. The dining area comfortably accommodates a large dining table, making it perfect for family meals or hosting guests.

A practical utility area sits just off the kitchen, offering dedicated space for both a washing machine and dryer. A convenient downstairs WC completes the ground floor accommodation.

Upstairs, the first floor hosts four well-proportioned bedrooms. The master bedroom benefits from built-in wardrobes spanning an entire wall and an ensuite shower room featuring a modern walk-in shower. Bedroom two is another generous double room, also with built-in wardrobes and its own ensuite with a walk-in shower. Bedroom three is similar in size, providing another comfortable double bedroom, while bedroom four is a single room that could easily function as a home office, study, or hobby room. The main family bathroom includes a bath, perfect for relaxing at the end of the day.

Outside, the rear garden offers a private outdoor retreat with a designated patio area ideal for outdoor seating or dining. There is also convenient side access to the property. To the front, a driveway and single integrated garage provide secure off-road parking and additional storage.

Location

Nantwich is a historic market town located in the county of Cheshire, England. It lies on the banks of the River Weaver and is approximately 5 miles south-west of the larger town of Crewe. Nantwich has a rich history that dates back to Roman times, and it is known for its well-preserved medieval architecture and charming streets.

One of the most prominent features of Nantwich is its black and white timber-framed buildings, which give the town a distinctive character. The town centre is filled with historic structures, including the Nantwich Town Walls, St. Mary's Church, and the Queen's Aid House. The Nantwich Museum, located in a restored Georgian townhouse, offers visitors an opportunity to explore the town's history and heritage.

Nantwich is also famous for its annual food and drink festival, which takes place in September and attracts thousands of visitors. The festival showcases a variety of local and regional produce, including Cheshire cheese, pies, and real ale. Additionally, the town holds a traditional market three times a week, where locals and tourists can browse a range of goods, from fresh produce to antiques.

The River Weaver, which runs through Nantwich, provides opportunities for leisurely walks along the waterfront and offers a picturesque setting for boat trips. The town is surrounded by beautiful Cheshire countryside, with plenty of scenic trails and paths for outdoor enthusiasts to explore.

Nantwich has a thriving community and offers a range of amenities, including shops, restaurants, cafes, and pubs. It also has several primary and secondary schools, making it an attractive place to live for families.

Nantwich is conveniently placed for commuter travel, with excellent road links including access to the M6 motorway network via the A500. Rail travel is offered via Nantwich train station which has direct services to Manchester and Shrewsbury, and Crewe Railway Station which is within 8 miles and provides direct services to a host of major cities including London, Manchester, Liverpool, Birmingham, and Glasgow.

In summary, Nantwich is a charming market town in Cheshire, England, known for its rich history, medieval architecture, annual food festival, and picturesque surroundings. It's a place where visitors can immerse themselves in the past while enjoying the amenities of a vibrant community.

Council Tax Band: E

Tenure: Leasehold

Additional Information

Useful Links
Broadband and mobile phone coverage checker - https://checker.ofcom.org.uk/

Floor Plans
Please note that floor plans are provided to give an overall impression of the accommodation offered by the property. They are not to be relied upon as a true, scaled and precise representation. Whilst we make every attempt to ensure the accuracy of the floor plan, measurements of doors, windows, rooms and any other item are approximate. This plan is for illustrative purposes only and should only be used as such by any prospective purchaser.

Agent's Notes
Although we try to ensure accuracy, these details are set out for guidance purposes only and do not form part of a contract or offer. Please note that some photographs have been taken with a wide-angle lens. A final inspection prior to exchange of contracts is recommended. No person in the employment of James Du Pavey Ltd has any authority to make any representation or warranty in relation to this property.

ID Checks
Please note we charge £50 inc VAT for ID Checks and verification for each person financially involved with the transaction when purchasing a property through us.

Referrals
We can recommend excellent local solicitors, mortgage advice and surveyors as required. At no time are you obliged to use any of our services. We recommend Gent Law Ltd for conveyancing, they are a connected company to James Du Pavey Ltd but their advice remains completely independent. We can also recommend other solicitors who pay us a referral fee of £240 inc VAT. For mortgage advice we work with RPUK Ltd, a superb financial advice firm with discounted fees for our clients. RPUK Ltd pay James Du Pavey 25% of their fees. RPUK Ltd is a trading style of Retirement Planning (UK) Ltd, Authorised and Regulated by the Financial Conduct Authority. Your Home is at risk if you do not keep up repayments on a mortgage or other loans secured on it. We receive £120 inc VAT for each survey referral.

James Latham

James Latham BA (Hons)

Nantwich Branch

01270 445678