Brookhouse Road, Cheadle, ST10

£325,000

5 reasons we love this property

  1. Purr-fect countryside views – Enjoy tail-twitching vistas of rolling hills and open fields at both the front and back, ideal for any curious kitty (or human!).
  2. Single-level “paw-friendly” living – A spacious three-bedroom layout all on one level, making it easy to roam from room to room without any leaps or climbs.
  3. A home to make your own scratching post – With a little updating needed, it’s the ideal chance to shape the space into your own cosy cat kingdom.
  4. A garden made for prowling – A large, secure outdoor space with lawn, patio, and shrubs—perfect for basking in the sun or a gentle wander.
  5. Close to all the cat-nip essentials – Conveniently near shops, schools, and transport links, so everything you need is just a short paw-step away.

About this property

Curiosity killed the cat, or in this case, made it buy a purrrrrfect bungalow to curl up in and make your own.

Read more

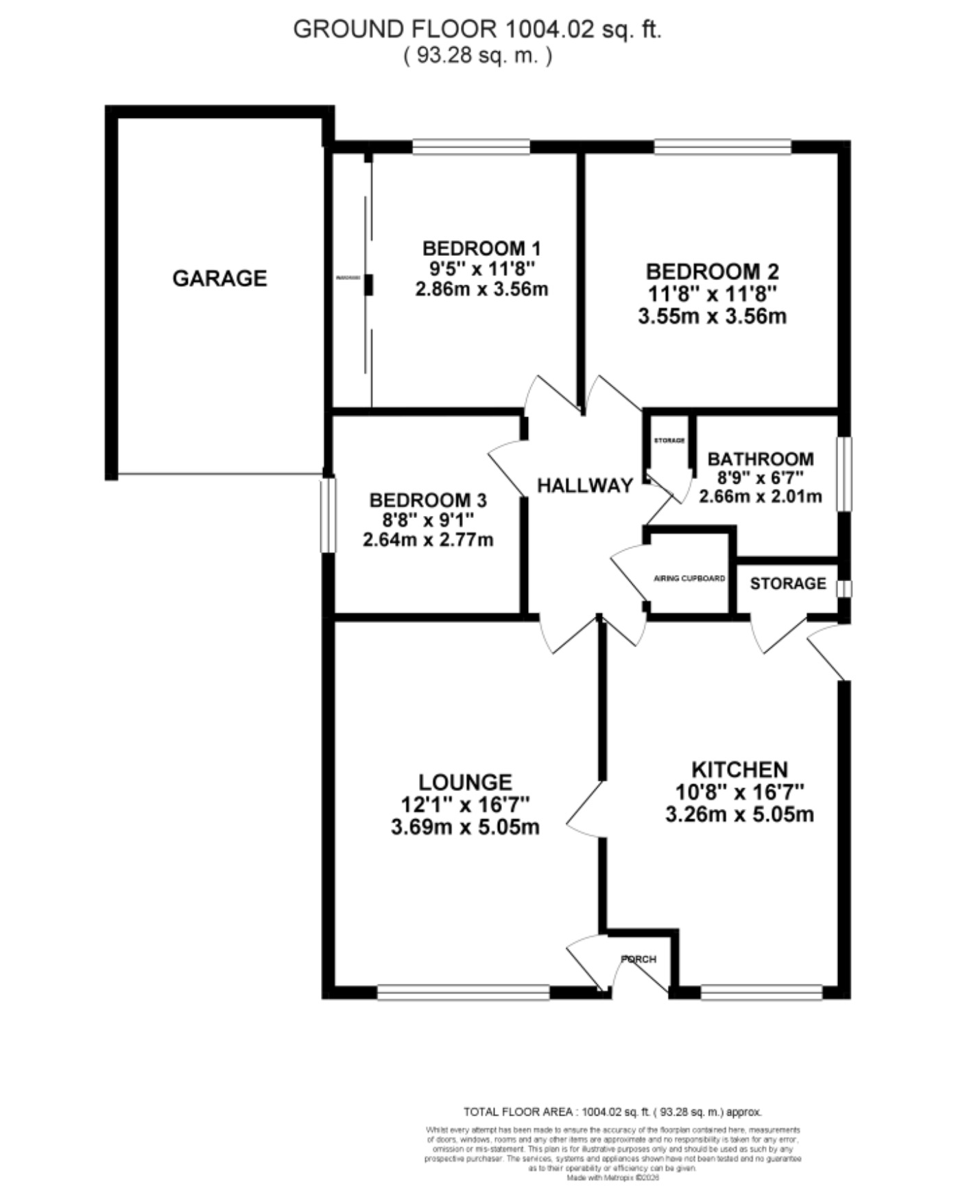
Curiosity killed the cat, or in this case, made it buy a purrrrrfect bungalow to curl up in and make your own! With stunning countryside views of hills and fields both front and rear and lots of space throughout, this three bedroom detached bungalow may just be what you’re looking for. In need of a little updating, this home offers an opportunity to make it your own, and it’s all on one convenient level. As you step through the front door, immediately to the left is the lounge. Spacious, with large windows and far-reaching views of fields, and a well-manicured front lawn, it is a great spot to relax and watch the world pass you by. A gas fire adds a touch more comfort to an already cosy spot. Then, to the right, you have the heart of the home, the kitchen/dining room. An abundance of wood-effect worktops for all your storage needs, and with room for a dining table, you get a full view of the fields beyond whilst eating those firm family favourites. Whip up a treat and enjoy. Then we have three bedrooms: two doubles to the rear overlooking the garden and rolling countryside hills, as well as a versatile, good-sized single room, perfect as a guest bedroom or home office. The home is complete with a family bathroom featuring a shower-over-bath duo. Also on offer is a huge loft space, currently storage but has huge potential for conversion (subject to necessary permissions). To the rear, a large garden which benefits from a mixture of lush green lawn, patio and gravel. Fenced, secure, and trimmed with blooming floral borders and mature shrubs. The warmer days would make this a truly lovely spot to sit out with your favourite tipple. For parking, you have a tandem driveway along with a handy single garage for that extra space, whether that holds a car or more storage, that’s up to you. Located on the outskirts of Cheadle market town in the Staffordshire Moorlands. Whilst its location benefits from rural views and surroundings, you’re just seconds away from modern convenience such as supermarkets, shops, eateries and cafés. There are some fantastic, well-regarded schools in the area, along with strong transport links to the A50 and a selection of bus routes throughout the day, making wider travel a breeze. Think this could be your perfect next home? Book your viewing today.

Buyers Note
Please note this property has an unregistered title. Please contact the office for further information.

Council Tax Band: C

Tenure: Freehold

Additional Information

Useful Links
Broadband and mobile phone coverage checker - https://checker.ofcom.org.uk/

Floor Plans
Please note that floor plans are provided to give an overall impression of the accommodation offered by the property. They are not to be relied upon as a true, scaled and precise representation. Whilst we make every attempt to ensure the accuracy of the floor plan, measurements of doors, windows, rooms and any other item are approximate. This plan is for illustrative purposes only and should only be used as such by any prospective purchaser.

Agent's Notes
Although we try to ensure accuracy, these details are set out for guidance purposes only and do not form part of a contract or offer. Please note that some photographs have been taken with a wide-angle lens. A final inspection prior to exchange of contracts is recommended. No person in the employment of James Du Pavey Ltd has any authority to make any representation or warranty in relation to this property.

ID Checks
Please note we charge £50 inc VAT for ID Checks and verification for each person financially involved with the transaction when purchasing a property through us.

Referrals
We can recommend excellent local solicitors, mortgage advice and surveyors as required. At no time are you obliged to use any of our services. We recommend Gent Law Ltd for conveyancing, they are a connected company to James Du Pavey Ltd but their advice remains completely independent. We can also recommend other solicitors who pay us a referral fee of £240 inc VAT. For mortgage advice we work with RPUK Ltd, a superb financial advice firm with discounted fees for our clients. RPUK Ltd pay James Du Pavey 25% of their fees. RPUK Ltd is a trading style of Retirement Planning (UK) Ltd, Authorised and Regulated by the Financial Conduct Authority. Your Home is at risk if you do not keep up repayments on a mortgage or other loans secured on it. We receive £120 inc VAT for each survey referral.

Jasmine Horsley

Jasmine Horsley BA (Hons)

Cheadle Branch

01538 711400