Etruscan Walk, Barlaston, ST12

£245,000

5 reasons we love this property

  1. Stylish three-bedroom end townhouse in Barlaston, offered with no chain, perfect for first-time buyers, upsizers or downsizers.
  2. Spacious living room with cosy fire, dining room, a well-equipped kitchen leading into a bright conservatory with garden access, and a WC.
  3. Three well-sized bedrooms and a family bathroom with panelled bath, separate shower, WC and vanity wash hand basin.
  4. Low-maintenance South-facing garden with artificial lawn and patio areas, ideal for relaxing or entertaining, plus garage and driveway parking.
  5. Located in Barlaston, a highly desirable area with excellent commuter links, schools, local amenities and green spaces all within easy reach.

About this property

This 3-bedroom end townhouse in Barlaston is a true find, offered with no chain! With living room, dining room, kitchen, conservatory, WC, garden, garage and parking, ideal for first-time buyers, upsizers or downsizers. In a highly desirable area with excellent local amenities.

Read more

Step aside archaeologists… the Ancient Etruscans might have been experts in uncovering treasures, but we’ve just found one that beats them all, right here on Etruscan Walk! And the best part? No digging required.

Sitting proudly in the ever-desirable village of Barlaston, this three-bedroom end townhouse is a rare find and offered with no onward chain. Whether you’re stepping onto the ladder, climbing it or cleverly downsizing, this is one discovery you’ll want to snap up fast.

Step inside and the adventure begins! First stop, the porch. A handy little drop zone for shoes and all the bits of daily life before you press on with your discovery. Take a right turn and you’ll strike gold with a large, welcoming living room, where a sleek inset fire with modern surround steals the spotlight. It’s warm, stylish and made for sinking into after a long day. And just when you think it couldn’t get better… the next space opens. A versatile dining room, currently a playroom but ready to be whatever you need it to be, because this home plays by your rules. And now… the heart of the dig. The kitchen. A proper treasure trove! With wood grain effect cabinetry, contrasting worktops, heaps of storage and space for all your appliances, plus a stainless-steel sink and drainer to keep things shipshape, this is where culinary magic happens. Just when you think you’ve seen it all, you’re led straight into a bright conservatory, with a glazed door opening out to the garden, it’s the perfect spot for morning coffees, evening drinks or showing off your latest find. Tucked neatly away to finish the ground floor is a downstairs WC with vanity wash hand basin.

Climb on up and you’ll discover three well-sized bedrooms, each offering space to rest, recharge or retreat. Whether it’s sleeping quarters, a workspace or something in between, they’ve got you covered. The bathroom is fully equipped for the modern-day adventurer, with a panelled bath, WC, separate shower and vanity wash hand basin, no compromises here.

To the rear lies an incredible low-maintenance, south-facing garden, a true hidden treasure. Laid with artificial lawn and patio areas, it’s the perfect setting for relaxing, entertaining or simply soaking up those gorgeous views beyond. To the front, a pebbled driveway provides ample parking, along with the bonus of a garage and additional space in front on a second tarmacked driveway, because every great discovery deserves practicality too.

The Ancient Etruscans would be proud of this one… now all that’s missing is you.

Buyers note
We understand this property has been historically underpinned, due to mining subsidence, there has been no further issues since. Buyers may want to make their own enquiries.

Council Tax Band: B

Tenure: Freehold

Additional Information

Useful Links
Broadband and mobile phone coverage checker - https://checker.ofcom.org.uk/

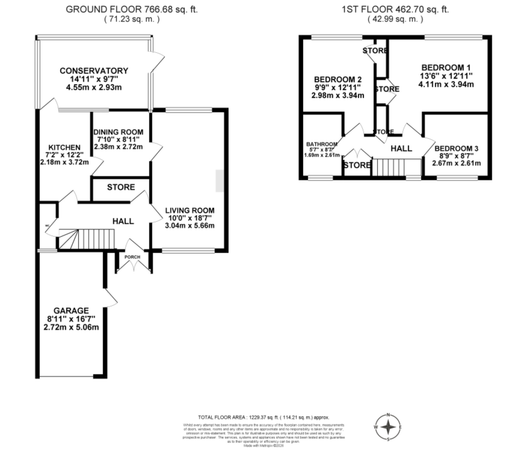
Floor Plans
Please note that floor plans are provided to give an overall impression of the accommodation offered by the property. They are not to be relied upon as a true, scaled and precise representation. Whilst we make every attempt to ensure the accuracy of the floor plan, measurements of doors, windows, rooms and any other item are approximate. This plan is for illustrative purposes only and should only be used as such by any prospective purchaser.

Agent's Notes
Although we try to ensure accuracy, these details are set out for guidance purposes only and do not form part of a contract or offer. Please note that some photographs have been taken with a wide-angle lens. A final inspection prior to exchange of contracts is recommended. No person in the employment of James Du Pavey Ltd has any authority to make any representation or warranty in relation to this property.

ID Checks
Please note we charge £50 inc VAT for ID Checks and verification for each person financially involved with the transaction when purchasing a property through us.

Referrals
We can recommend excellent local solicitors, mortgage advice and surveyors as required. At no time are you obliged to use any of our services. We recommend Gent Law Ltd for conveyancing, they are a connected company to James Du Pavey Ltd but their advice remains completely independent. We can also recommend other solicitors who pay us a referral fee of £240 inc VAT. For mortgage advice we work with RPUK Ltd, a superb financial advice firm with discounted fees for our clients. RPUK Ltd pay James Du Pavey 25% of their fees. RPUK Ltd is a trading style of Retirement Planning (UK) Ltd, Authorised and Regulated by the Financial Conduct Authority. Your Home is at risk if you do not keep up repayments on a mortgage or other loans secured on it. We receive £120 inc VAT for each survey referral.

Catrina Horsley

Catrina Horsley MNAEA

Stone Branch

01785 814917