Orchard Lane, Hyde Lea, ST18

£330,000

5 reasons we love this property

  1. Bright and welcoming living room with a feature cast iron stove and French doors opening onto the rear garden
  2. Charming cottage style kitchen with integrated appliances, stable door, and open access to a versatile conservatory
  3. Three well proportioned bedrooms served by a contemporary family bathroom with separate bath and shower
  4. Generous gravelled driveway, established front garden, and detached garage with additional storage
  5. Beautifully maintained, private rear garden with lawn, hedging, and seating areas perfect for relaxing or entertaining

About this property

Read more

Nestled in a peaceful residential setting, this delightful three bedroom semi detached bungalow offers a wonderful blend of character and modern comfort. Step inside to discover a bright and welcoming living room, where a feature cast iron stove creates a cosy focal point, and French doors open directly onto the rear garden, seamlessly merging indoor and outdoor living. The charming cottage style kitchen is thoughtfully fitted with integrated appliances, a stable door for added character, and open access to a versatile conservatory that can be used as a dining area, home office, or relaxing retreat. Each of the three well proportioned bedrooms is designed for comfort and flexibility, making this home ideal for families or those seeking extra space for guests or hobbies. The contemporary family bathroom is beautifully appointed, featuring both a separate bath and a walk in shower for added convenience. Practicality is further enhanced by a generous gravelled driveway, an established front garden, and a detached garage with additional storage, ensuring there is ample space for vehicles and belongings.

The outside space is equally impressive, offering a beautifully maintained and private rear garden that provides a tranquil escape from the bustle of daily life. A lush lawn is bordered by mature hedging, creating a sense of seclusion and privacy, while thoughtfully arranged seating areas are perfect for relaxing with a book or entertaining friends and family during the warmer months. The established front garden adds to the property’s kerb appeal, with attractive planting and a welcoming approach. The detached garage not only offers secure parking but also benefits from extra storage, making it ideal for gardening equipment, bikes, or seasonal items. Whether you are seeking a peaceful haven to unwind or a sociable space to host gatherings, this property’s outside areas are sure to impress and provide year round enjoyment.

Don’t delay your search a moment longer and get in touch today to arrange your visit to your future home.

Location
This small, friendly village in Hyde Lea is surrounded by open fields, scenic walking routes, and beautiful rural views, yet it’s only a short drive from Stafford’s shops, schools, and rail links to larger cities. Residents enjoy a strong sense of community, quieter roads, and the relaxing atmosphere that comes with village life, while still benefiting from the amenities and opportunities of a thriving market town nearby.

Council Tax Band: D

Tenure: Freehold

Additional Information

Useful Links
Broadband and mobile phone coverage checker - https://checker.ofcom.org.uk/

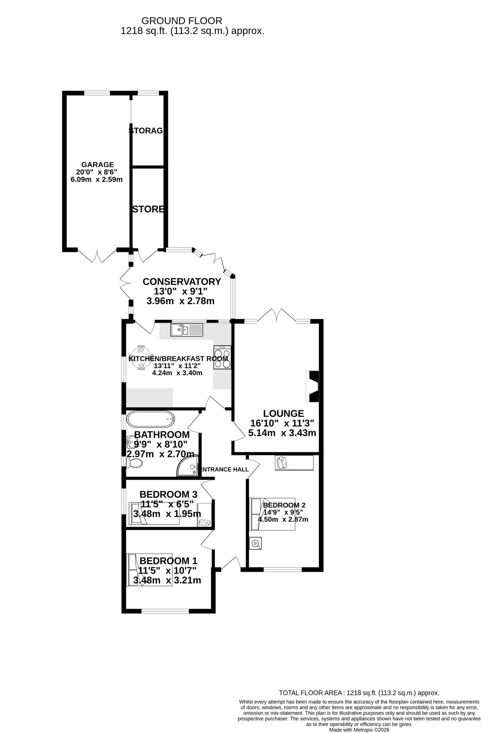
Floor Plans
Please note that floor plans are provided to give an overall impression of the accommodation offered by the property. They are not to be relied upon as a true, scaled and precise representation. Whilst we make every attempt to ensure the accuracy of the floor plan, measurements of doors, windows, rooms and any other item are approximate. This plan is for illustrative purposes only and should only be used as such by any prospective purchaser.

Agent's Notes
Although we try to ensure accuracy, these details are set out for guidance purposes only and do not form part of a contract or offer. Please note that some photographs have been taken with a wide-angle lens. A final inspection prior to exchange of contracts is recommended. No person in the employment of James Du Pavey Ltd has any authority to make any representation or warranty in relation to this property.

ID Checks
Please note we charge £50 inc VAT for ID Checks and verification for each person financially involved with the transaction when purchasing a property through us.

Referrals
We can recommend excellent local solicitors, mortgage advice and surveyors as required. At no time are you obliged to use any of our services. We recommend Gent Law Ltd for conveyancing, they are a connected company to James Du Pavey Ltd but their advice remains completely independent. We can also recommend other solicitors who pay us a referral fee of £240 inc VAT. For mortgage advice we work with RPUK Ltd, a superb financial advice firm with discounted fees for our clients. RPUK Ltd pay James Du Pavey 25% of their fees. RPUK Ltd is a trading style of Retirement Planning (UK) Ltd, Authorised and Regulated by the Financial Conduct Authority. Your Home is at risk if you do not keep up repayments on a mortgage or other loans secured on it. We receive £120 inc VAT for each survey referral.

Lee Davies

Lee Davies MNAEA

Eccleshall Branch

01785 851886