Walton Bank, Eccleshall, ST21

£795,000

5 reasons we love this property

  1. Charming 18th Century farmhouse, thoughtfully extended and enhanced over time, blending original period features with generous, flexible living spaces ideal for modern family life.
  2. Impressive kitchen breakfast room featuring a Range Master cooker, integrated appliances, skylights, and ample dining space, perfectly complemented by a practical adjoining utility room.
  3. Highly versatile layout offering multiple reception rooms, a dedicated home office, boot room, and excellent potential for annex-style living across the upper floors if required.
  4. Exceptional principal bedroom suite with exposed beams, multiple skylights showcasing stunning countryside views, and a well-appointed ensuite creating a luxurious private retreat.
  5. Extensive outdoor space including ample parking, mature gardens, two paddocks spanning approx 5 acres, and stabling, ideal for equestrian enthusiasts or buyers seeking a true countryside lifestyle.

About this property

Charming former farmhouse near Eccleshall and Stafford with spacious, flexible living, original features, ensuite bedrooms, large gardens, paddocks, stables, and stunning countryside views.

Read more

Nestled within a peaceful rural setting, yet conveniently positioned close to both Eccleshall and Stafford, this exceptional former farmhouse dating back to the mid-1700s offers a rare blend of heritage, space, and lifestyle. Once a traditional working farmhouse, the property has been lovingly and thoughtfully evolved over the years into a substantial and versatile family home, all while retaining its original charm and character. From exposed beams and inviting fireplaces to bright, flexible living spaces, every corner of this home tells a story, perfectly suited for modern family life, multi-generational living, or those simply seeking a slice of countryside tranquillity without sacrificing convenience.

At the heart of the home lies a generous kitchen breakfast room, beautifully appointed with a comprehensive range of wall, drawer, and base units complemented by ample work surfaces. A Range Master cooker takes centre stage, alongside integrated appliances including a fridge, freezer, and dishwasher. Natural light pours in through skylights and front-facing windows, while a door provides direct access outside. The breakfast area offers plenty of space for informal dining, with additional room for further refrigeration or storage if desired. A connecting utility room provides practical space for laundry appliances, further cabinetry, and a stainless steel sink.

The dining room is a truly stunning space. A beautiful bay window with built-in seating and storage enhances the room’s charm, creating a perfect setting for family meals and entertaining alike.

The sitting room exudes warmth and character, featuring exposed beams and an open fireplace ideal for cosy evenings. A front-facing window and access to the entrance porch add to its welcoming feel. From here, a door leads into a highly versatile boot room, currently used as a practical transition space but equally suited as a home office, hobby room, or additional utility area. This space connects through to a generously sized office with dual-aspect windows, offering an ideal environment for home working or creative pursuits.

The first floor landing spans the full width of the property, creating an impressive sense of space. With two staircases rising to the top floor, one at each end, the layout offers both character and flexibility. This level hosts well-proportioned bedrooms, both enjoying front-facing windows and ample space for storage. The family bathroom is particularly spacious, fitted with a four-piece suite including a bath, separate shower, WC, and vanity basin with storage.

The top floor continues to impress, offering a range of adaptable living spaces. A superb additional room, ideal as a bedroom, office, or recreation space, features skylights, exposed oak beams, and charming architectural detail, lending itself perfectly to annex-style living if required.

The principal bedroom is a standout feature, boasting multiple skylights that frame breathtaking views across rolling countryside. Exposed beams enhance the character, while a well-appointed ensuite provides a luxurious retreat with bath, separate shower, WC, and basin.

Bedroom two is equally impressive, offering its own ensuite shower room with modern fittings, rainfall shower, and skylight above. A spiral staircase provides a unique connection back to the first floor, adding further charm and individuality.

Externally, the property is set within generous grounds, offering ample parking and a well maintained rear garden, predominantly laid to lawn and enclosed by mature hedgerows and timber fencing. Two useful garden sheds add practicality, while a gated access leads to a separate paddock, ideal for those seeking outdoor space or smallholding potential.

To the front, an additional paddock includes existing stabling, making this an ideal home for equestrian enthusiasts or those wishing to keep animals. Combining countryside living with excellent access to nearby amenities, this is a rare opportunity to acquire a characterful and versatile home in an enviable location.

And finally… whether it’s morning coffee with uninterrupted countryside views, children exploring the gardens, or horses grazing peacefully in your own paddocks, this is more than just a home, it’s a lifestyle. A place where muddy boots are welcome, sunsets are savoured, and every day feels just that little bit more special.

Council Tax Band: F

Tenure: Freehold

Additional Information

Useful Links
Broadband and mobile phone coverage checker - https://checker.ofcom.org.uk/

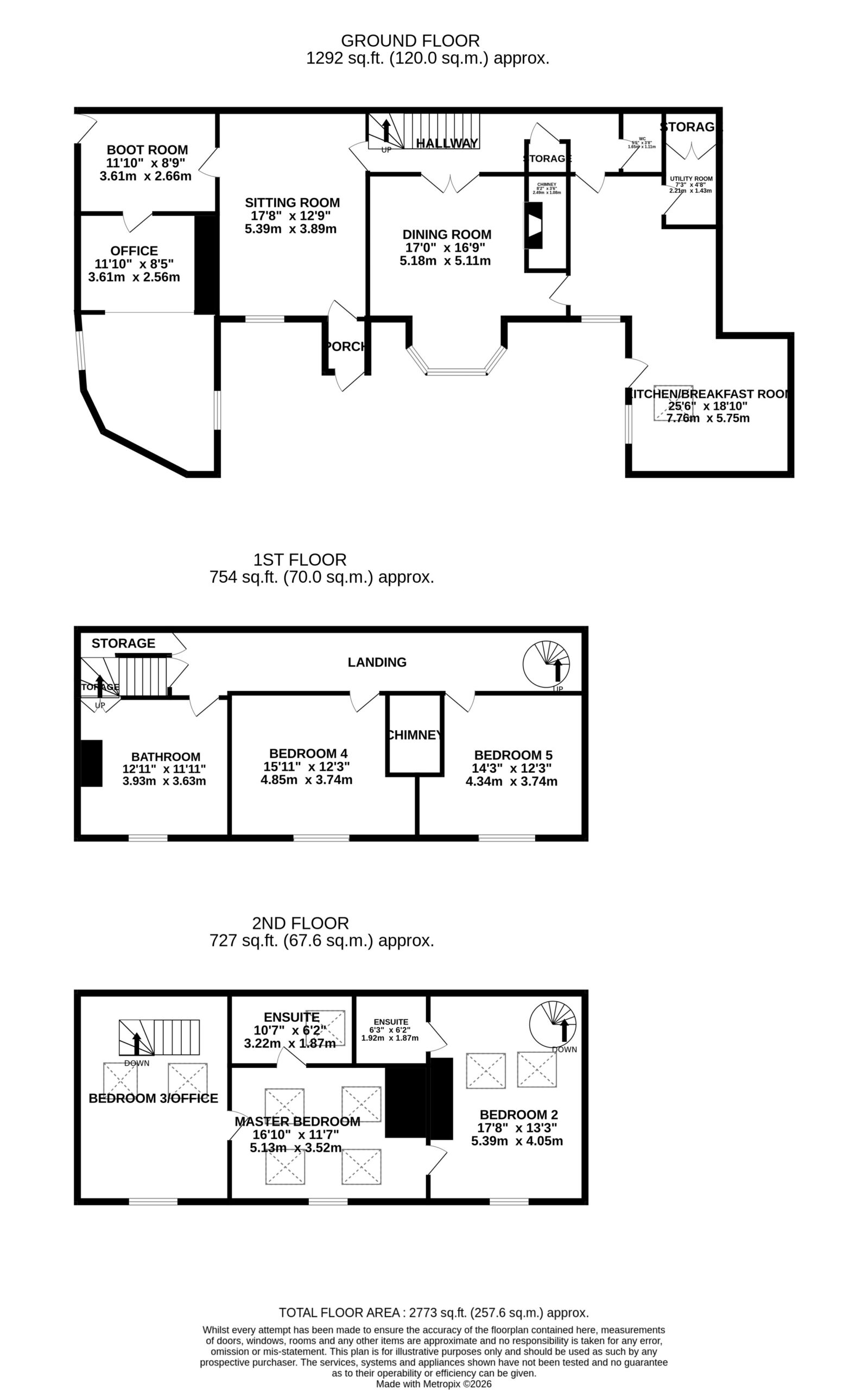
Floor Plans
Please note that floor plans are provided to give an overall impression of the accommodation offered by the property. They are not to be relied upon as a true, scaled and precise representation. Whilst we make every attempt to ensure the accuracy of the floor plan, measurements of doors, windows, rooms and any other item are approximate. This plan is for illustrative purposes only and should only be used as such by any prospective purchaser.

Agent's Notes
Although we try to ensure accuracy, these details are set out for guidance purposes only and do not form part of a contract or offer. Please note that some photographs have been taken with a wide-angle lens. A final inspection prior to exchange of contracts is recommended. No person in the employment of James Du Pavey Ltd has any authority to make any representation or warranty in relation to this property.

ID Checks
Please note we charge £50 inc VAT for ID Checks and verification for each person financially involved with the transaction when purchasing a property through us.

Referrals
We can recommend excellent local solicitors, mortgage advice and surveyors as required. At no time are you obliged to use any of our services. We recommend Gent Law Ltd for conveyancing, they are a connected company to James Du Pavey Ltd but their advice remains completely independent. We can also recommend other solicitors who pay us a referral fee of £240 inc VAT. For mortgage advice we work with RPUK Ltd, a superb financial advice firm with discounted fees for our clients. RPUK Ltd pay James Du Pavey 25% of their fees. RPUK Ltd is a trading style of Retirement Planning (UK) Ltd, Authorised and Regulated by the Financial Conduct Authority. Your Home is at risk if you do not keep up repayments on a mortgage or other loans secured on it. We receive £120 inc VAT for each survey referral.

Lee Davies

Lee Davies MNAEA

Eccleshall Branch

01785 851886