Westsprink Crescent, Stoke-On-Trent, ST3

£185,000

5 reasons we love this property

  1. Set your compass WEST and find this fabulous three bedroom semi-detached home in Westonfields.
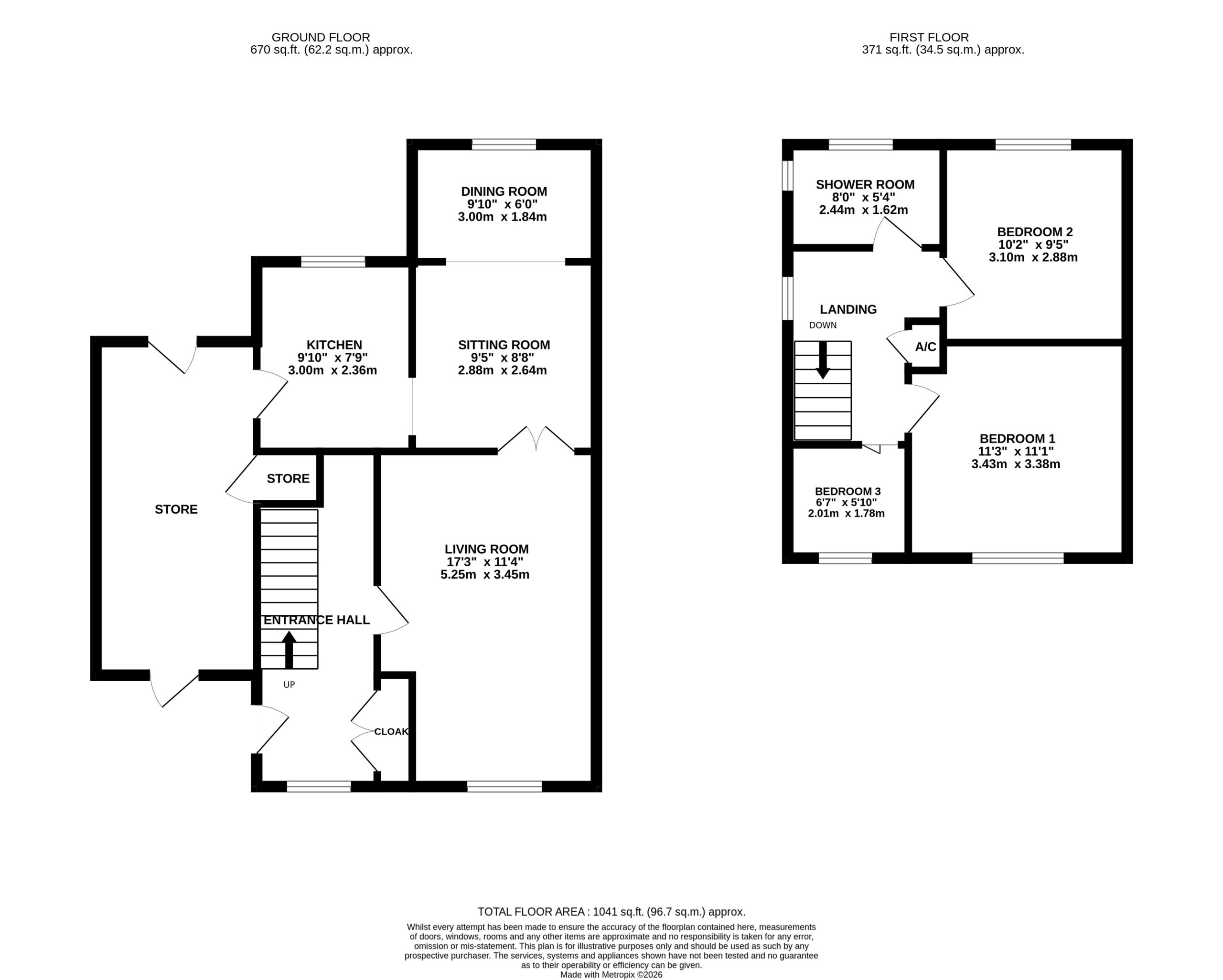
  2. With great living space throughout including a large living room, sitting room opening to a dining room with well-equipped kitchen and store area.
  3. On the first floor we have three generous bedrooms with two doubles and a good sized single along with a modern shower room.
  4. Positioned on a lovely South-West facing plot meaning sun, sun, sun! With large lawn and patio area perfect for al fresco dining.
  5. Located within close proximity to good schools, great amenities and fantastic commuter links.

About this property

Set your compass to WEST and head over to this fabulous three bedroom semi-detached home in Westonfields.

Read more

Set your compass to WEST and head over to this fabulous three bedroom semi-detached home in Westonfields. Every great adventure begins with a single step so step inside and we’ll see where yours unfolds. From the moment you cross the threshold, you’re welcomed by a grand entrance hallway, spacious, light filled and ready to guide you through the journey that waits within. The generous living room offers a perfect gathering space for recounting the day’s tales whether its movie nights, cosy evenings or celebrations with friends and family. Just beyond a charming sitting room flows seamlessly into the dining room, created an open sociable setting designed for shared feasts and memorable moments. The adjoining kitchen stands in the next room, fitted with white gloss cupboards with built-in oven and gas burning hob. A useful storage area is found to the side of the home and could easily be converted to a further reception room or utility if desired. Upstairs, three well-proportioned bedrooms await, these rooms offer flexibility with two doubles and a good sized single. Completing the upper floor is a modern shower room with floor to ceiling tiles and walk in shower with glass screen. Outside the rear garden is perfectly positioned boasting a South-West facing garden meaning sun, sun, sun! A large patio area is ideal for al fresco dining with a generous lawn. To the front is a driveway providing off road parking for multiple vehicles. Westprink Crescent is situated in Westonfields, a sought-after suburb within close proximity to good local schools, an array of shops and amenities. Lovely countryside is just a short driveway with fantastic commuter links right on your doorstep. So come on in, the door is open, are you ready to begin the journey?

Council Tax Band: B

Tenure: Freehold

Additional Information

Useful Links
Broadband and mobile phone coverage checker - https://checker.ofcom.org.uk/

Floor Plans
Please note that floor plans are provided to give an overall impression of the accommodation offered by the property. They are not to be relied upon as a true, scaled and precise representation. Whilst we make every attempt to ensure the accuracy of the floor plan, measurements of doors, windows, rooms and any other item are approximate. This plan is for illustrative purposes only and should only be used as such by any prospective purchaser.

Agent's Notes
Although we try to ensure accuracy, these details are set out for guidance purposes only and do not form part of a contract or offer. Please note that some photographs have been taken with a wide-angle lens. A final inspection prior to exchange of contracts is recommended. No person in the employment of James Du Pavey Ltd has any authority to make any representation or warranty in relation to this property.

ID Checks
Please note we charge £50 inc VAT for ID Checks and verification for each person financially involved with the transaction when purchasing a property through us.

Referrals
We can recommend excellent local solicitors, mortgage advice and surveyors as required. At no time are you obliged to use any of our services. We recommend Gent Law Ltd for conveyancing, they are a connected company to James Du Pavey Ltd but their advice remains completely independent. We can also recommend other solicitors who pay us a referral fee of £240 inc VAT. For mortgage advice we work with RPUK Ltd, a superb financial advice firm with discounted fees for our clients. RPUK Ltd pay James Du Pavey 25% of their fees. RPUK Ltd is a trading style of Retirement Planning (UK) Ltd, Authorised and Regulated by the Financial Conduct Authority. Your Home is at risk if you do not keep up repayments on a mortgage or other loans secured on it. We receive £120 inc VAT for each survey referral.

Jasmine Horsley

Jasmine Horsley BA (Hons)

Cheadle Branch

01538 711400