Mill Lane, Gnosall, ST20

£485,000

5 reasons we love this property

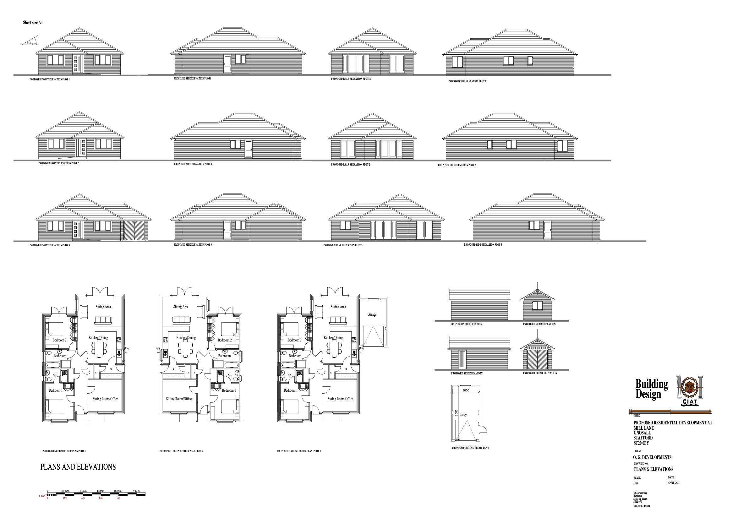
  1. A fantastic opportunity to own one of three custom built bungalows in Gnosall!
  2. Two bedrooms and two bathrooms allows plenty of room to relax and unwind.
  3. An open plan kitchen/diner/family room and an additional sitting room/study are perfect for entertaining.
  4. Each plot enjoys its own rear garden, while off road parking and garages make parking a breeze.
  5. Located in the charming village of Gnosall be close by to excellent amenities and schools, with Stafford, Newport and Eccleshall a short drive away for further needs and national travel links.

About this property

Have you ever found yourself daydreaming about your next home, perhaps a beautifully designed new-build bungalow in the heart of Gnosall? If so, Mill Meadow could be just what you’ve been waiting for.

Read more

Have you been picturing your next home—perhaps a beautifully designed new-build bungalow in the heart of Gnosall? If so, Mill Meadow could be exactly what you’ve been waiting for.

With just three exclusive plots available, this is a rare opportunity to create a home tailored to your lifestyle. Each two-bedroom, two-bathroom bungalow has been thoughtfully designed, featuring a light-filled open-plan kitchen, dining and living space—perfect for both relaxed evenings and entertaining guests. An additional reception room offers valuable flexibility, whether you need a cosy snug, a home office, or even a third bedroom.

Both bedrooms are generous doubles, with the principal bedroom enjoying its own ensuite, while the second is served by a stylish family bathroom.

Designed with the future in mind, these homes are predicted to achieve an impressive EPC rating of A, offering exceptionally low energy bills. Estimated running costs are available, giving you full transparency and confidence. This outstanding efficiency is achieved through high levels of insulation and the inclusion of a 6KW solar system, helping you save money while reducing your environmental impact.

Outside, each home benefits from a private garden—ideal for unwinding or creating your own outdoor retreat. To the front, a garage and driveway provide convenient off-road parking.

Set within the sought-after village of Gnosall, you’ll have easy access to local amenities, well-regarded schools, and excellent transport links, with Stafford just a short drive away for wider connections.

Built by a trusted and experienced developer, these homes will be finished to a high specification throughout, offering quality and peace of mind from day one.

If this sounds like your perfect move, we’d love to hear from you.

Reserve your plot today with a low deposit. Call 01785 851886 to find out more and take the first step towards your new home at Mill Meadow.

Location
Gnosall Heath sits on the outskirts of the bustling village of Gnosall with plenty of amenities including pubs, a Morrisons local with a petrol station, school and post office. The village is within easy access of the County Town of Stafford where there are further shops and supermarkets along with the train station allowing access further afield and motorway links. There is also walks along the canal and a heath centre.

Disclaimer
Please be advised, the images presented in this listing are for illustration purposes only and are meant to give an impression of what you can expect from these wonderful homes.

Agent Note
Please note the document shown as the EPC is the current Predicted Energy Calculations for the property.

Tenure: Freehold

Additional Information

Useful Links
Broadband and mobile phone coverage checker - https://checker.ofcom.org.uk/

Floor Plans
Please note that floor plans are provided to give an overall impression of the accommodation offered by the property. They are not to be relied upon as a true, scaled and precise representation. Whilst we make every attempt to ensure the accuracy of the floor plan, measurements of doors, windows, rooms and any other item are approximate. This plan is for illustrative purposes only and should only be used as such by any prospective purchaser.

Agent's Notes
Although we try to ensure accuracy, these details are set out for guidance purposes only and do not form part of a contract or offer. Please note that some photographs have been taken with a wide-angle lens. A final inspection prior to exchange of contracts is recommended. No person in the employment of James Du Pavey Ltd has any authority to make any representation or warranty in relation to this property.

ID Checks
Please note we charge £50 inc VAT for ID Checks and verification for each person financially involved with the transaction when purchasing a property through us.

Referrals
We can recommend excellent local solicitors, mortgage advice and surveyors as required. At no time are you obliged to use any of our services. We recommend Gent Law Ltd for conveyancing, they are a connected company to James Du Pavey Ltd but their advice remains completely independent. We can also recommend other solicitors who pay us a referral fee of £240 inc VAT. For mortgage advice we work with RPUK Ltd, a superb financial advice firm with discounted fees for our clients. RPUK Ltd pay James Du Pavey 25% of their fees. RPUK Ltd is a trading style of Retirement Planning (UK) Ltd, Authorised and Regulated by the Financial Conduct Authority. Your Home is at risk if you do not keep up repayments on a mortgage or other loans secured on it. We receive £120 inc VAT for each survey referral.

Lee Davies

Lee Davies MNAEA

Eccleshall Branch

01785 851886